Alternative Objekte
Traumhaftes Anwesen mit Privatstrand und Pool
Ferienhaus - 58 Personen - Lille Brogårdsvej - Vestfyn - 5464 - Brenderup
58 Personen
Objekt Nr.: 562-405852
Direkt am Meer gelegenes Anwesen mit Privatstrand, großem Grundstück und vielseitigen Freizeitmöglichkeiten in Brenderup.
- Schlafzimmer 24
- Badezimmer 22
- Wohnfläche 1.141 m²
- Grundstück 25.000 m²
- Haustiere Nicht erlaubt
- Kurzurlaub möglich Ja
- Entfernung Wasser 10 m
- Einkaufen 4.800 m
- Swimmingpool aussen Ja
- Internet Ja
- Wasserblick Ja
- Waschmaschine Ja
- Trockner Ja
- Geschirrspüler Ja
- Nichtraucher Ja
- Ladestation für Elektroauto Ja
Beschreibung
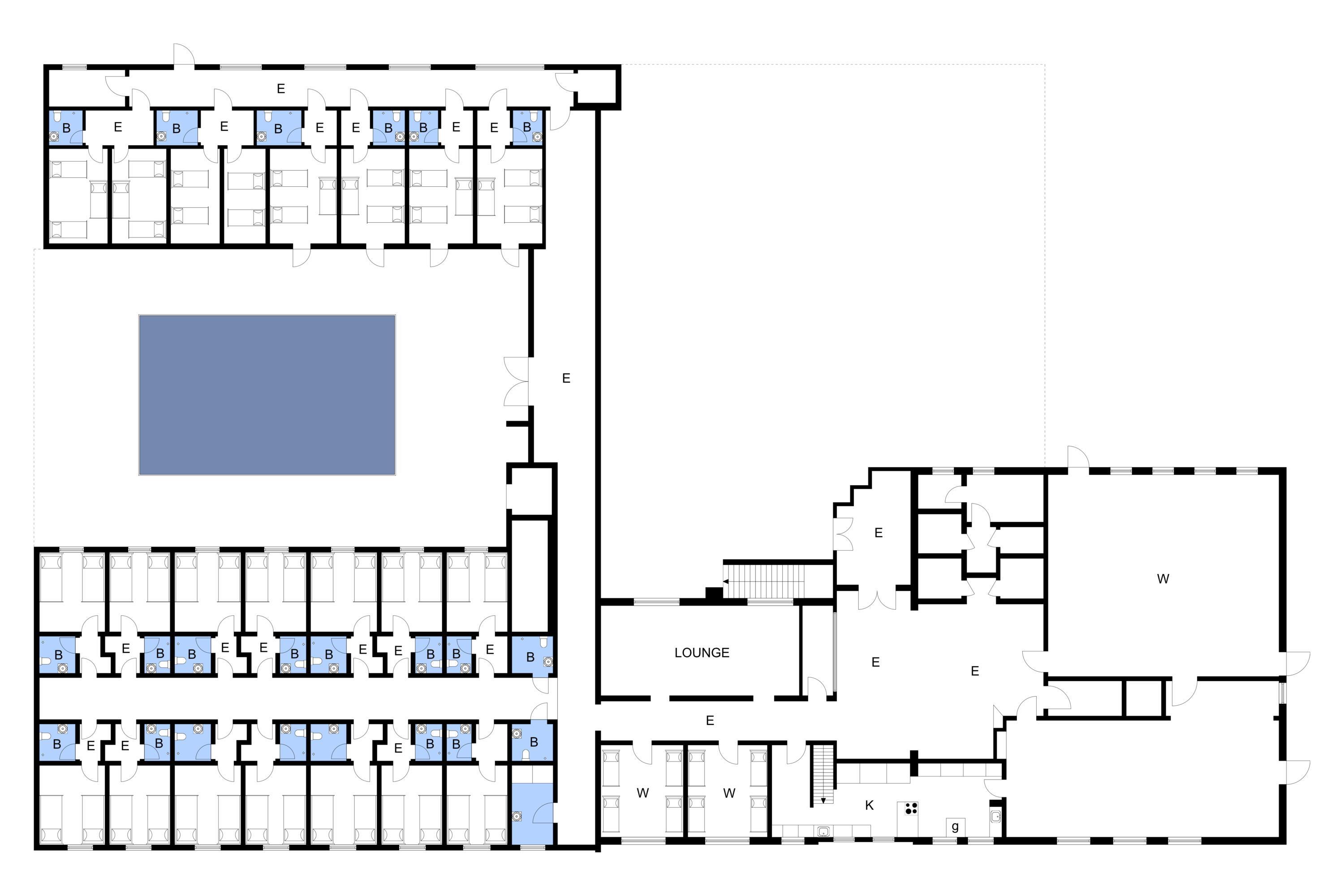
Hier haben Sie die Möglichkeit, das gesamte St. zu mieten, das direkt am Meer liegt. Hier gibt es einen Privatstrand mit guten Angel- und Bademöglichkeiten sowie ein großes Grundstück von 2,5 Hektar. Das Anwesen verfügt über einen großen Speisesaal mit Panoramablick, in dem bis zu 80 Gäste untergebracht werden können, sowie einen großen Seminarraum für 100 Gäste. Gibt es auf der eigentlichen Party mehr Gäste als die 58 Personen, die in St. Knudsborg übernachten dürfen, wird eine Partygebühr von DKK 2.500 erhoben, bei dem Sie auch freien Zugang zu u.a. runde Tische haben.
In Verlängerung des Speisesaals/Bankettraums befindet sich eine gut ausgestattete Industrieküche. Hier steht alles zur Verfügung, was in einer Küche vorhanden sein muss, um für eine große Gesellschaft kochen zu können. In der Küche führt eine Treppe hinunter in den Keller mit Kühl- und Gefrierraum, Speisekammer sowie Heizungsraum. Vom Keller haben Sie außerdem Zugang zum Parkplatz. Große Eingangshalle mit Rezeption und vier Gästetoiletten. Es führt ein Flur hinunter in den “nördlichen und südlichen Flügel” mit insgesamt 24 Schlafzimmern sowie 22 Badezimmern. Vier Schlafzimmer im “Südflügel” haben einen direkten Zugang zu einem Außenpool, der vom 1. Mai bis 30. September genutzt werden kann. Außerdem steht eine Waschküche mit zwei Waschmaschinen und zwei Trocknern zur Verfügung. Ein eigener Eingang zu einer ”krostue” (dt. Barraum) mit gemütlicher Einrichtung, Billardtisch, Dart, TV sowie Bar und einer Toilette.
Das Gebiet
Die kleinen Ferienhausgebiete Bro Strand und Varbjerg Strand liegen direkt nebeneinander und liegen zwischen Middelfart und Bogense. In Bro Strand führt eine Treppe zum Badestrand mit Badesteg hinunter. In Varbjerg gibt es einen kleinen Yachthafen und einen schönen, kinderfreundlichen Sandstrand. Der Ort Brenderup liegt nur 3 km vom Gebiet entfernt mit Einkaufsladen, Pizzeria und einem Bäcker. Die Stadt Middelfart liegt 15 km vom Gebiet entfernt mit einer schönen Fußgängerzone, Restaurants und einer restaurierten Hafenfront. 30 Autominuten vom Gebiet entfernt liegt Odense, die größte Stadt auf Fünen. Zu Odenses großen Attraktionen zählen u.a. der Zoo, das Haus von Hans Christian Andersen und viele interessante Museen. Odense verfügt über ein kilometerlanges Netz an Fußgängerzonen mit vielen Geschäften, Cafés und Restaurants. Von der Innenstadt aus kann man eine idyllische Bootsfahrt auf dem Fluss Odense Å mitmachen.
Bitte beachten: Der Außenpool kann nur vom 1. Mai bis 30. September genutzt werden.
In Verlängerung des Speisesaals/Bankettraums befindet sich eine gut ausgestattete Industrieküche. Hier steht alles zur Verfügung, was in einer Küche vorhanden sein muss, um für eine große Gesellschaft kochen zu können. In der Küche führt eine Treppe hinunter in den Keller mit Kühl- und Gefrierraum, Speisekammer sowie Heizungsraum. Vom Keller haben Sie außerdem Zugang zum Parkplatz. Große Eingangshalle mit Rezeption und vier Gästetoiletten. Es führt ein Flur hinunter in den “nördlichen und südlichen Flügel” mit insgesamt 24 Schlafzimmern sowie 22 Badezimmern. Vier Schlafzimmer im “Südflügel” haben einen direkten Zugang zu einem Außenpool, der vom 1. Mai bis 30. September genutzt werden kann. Außerdem steht eine Waschküche mit zwei Waschmaschinen und zwei Trocknern zur Verfügung. Ein eigener Eingang zu einer ”krostue” (dt. Barraum) mit gemütlicher Einrichtung, Billardtisch, Dart, TV sowie Bar und einer Toilette.
Das Gebiet
Die kleinen Ferienhausgebiete Bro Strand und Varbjerg Strand liegen direkt nebeneinander und liegen zwischen Middelfart und Bogense. In Bro Strand führt eine Treppe zum Badestrand mit Badesteg hinunter. In Varbjerg gibt es einen kleinen Yachthafen und einen schönen, kinderfreundlichen Sandstrand. Der Ort Brenderup liegt nur 3 km vom Gebiet entfernt mit Einkaufsladen, Pizzeria und einem Bäcker. Die Stadt Middelfart liegt 15 km vom Gebiet entfernt mit einer schönen Fußgängerzone, Restaurants und einer restaurierten Hafenfront. 30 Autominuten vom Gebiet entfernt liegt Odense, die größte Stadt auf Fünen. Zu Odenses großen Attraktionen zählen u.a. der Zoo, das Haus von Hans Christian Andersen und viele interessante Museen. Odense verfügt über ein kilometerlanges Netz an Fußgängerzonen mit vielen Geschäften, Cafés und Restaurants. Von der Innenstadt aus kann man eine idyllische Bootsfahrt auf dem Fluss Odense Å mitmachen.
Bitte beachten: Der Außenpool kann nur vom 1. Mai bis 30. September genutzt werden.
Ausstattung
-
Über das Haus
-
Baujahr1928
-
Grundstücksgröße25000
-
Hausareal1141
-
Entfernung Strand10 m
-
Abstand Einkauf4,8 km
-
Entfernung Restaurant9 km
-
Meerblick
-
Angeschlossener Bankettsaal
-
Renovierungsjahr2014
-
Anzahl Etagen1
-
Entfernung zum Golfplatz13,5 km
-
Panoramablick
-
Preis für den Partyraum kr.2.500,00
-
-
Heizung
-
Zentralheizung
-
-
Schlafzimmer
-
Anzahl der Schlafräume24
-
Einzelbetten 80x200 cm58
-
-
Küche
-
Mikrowelle
-
Gefriertruhe, Liter300
-
Kapselgeschirrspüler
-
Kaffeemaschine - Filter 10+ Liter
-
Wasserkocher
-
Abzugshaube
-
Industrieofen1
-
Anzahl der Geschirrspüler1
-
Anzahl der Kühlschränke2
-
Anzahl der Kochplatten6
-
-
Badezimmer
-
WC26
-
Anzahl Badezimmer22
-
Duschkabine22
-
Gästetoilette4
-
-
Multimedien
-
Radio
-
CD Gerät
-
Internetzugang
-
Dän. TV-Kanäle
-
Anzahl der Fernseher3
-
-
Draußen
-
Gartenmöbel
-
Swimmingpool, draussen
-
Terrasse
-
Laden von Elektroautos erlaubt
-
Ladegerät für Elektroautos mit CEE-Stecker ohne Kabel
-
Kohlegrill1
-
-
Extra
-
Waschmaschine
-
Wäschetrockner
-
Hochstuhl1
-
Billardbord
-
Kinderbett1
-
Anzahl der Waschmaschinen2
-
Anzahl der Trockner2
-
Platz für die ganze Familie
-
-
Im Preis inbegriffen
-
Reinigung inklusive
-
-
Verbrauchsabrechnung
-
Strom pr. kWh
-
Vand pr. m³
-
Heizung pro Tag
-
-
Einrichtung
-
Nichtraucher
-
Max. Anzahl Personen58
-
Kurzurlaub
Zur Zeit werden keine Kurzulaube angeboten. Das bedeutet meistens, dass ein Kurzurlaub in der Hochsaison nicht möglich ist.
Preise und Kalender
Kalender
Dauer
Preis
Zeitraum
- Ankunft
- Abreise
- Dauer
- 2 Übernachtungen
Personen
Bis zu 58 Personen
Bitte beachten
Ankunftszeit wurde nicht ausgewählt.