Alternative Objekte
Gemütliches Bauernhaus mit großem Garten in Dänemark
Ferienhaus - 6 Personen - Kukkenbjerg - Svanninge - 5600 - Faaborg
6 Personen
Objekt Nr.: 121-71-1014
Gemütliches ehemaliges Bauernhaus in Svanninge Bakker mit großem Garten und Nähe zu Natur, Golf und Faaborg.
- Schlafzimmer 1
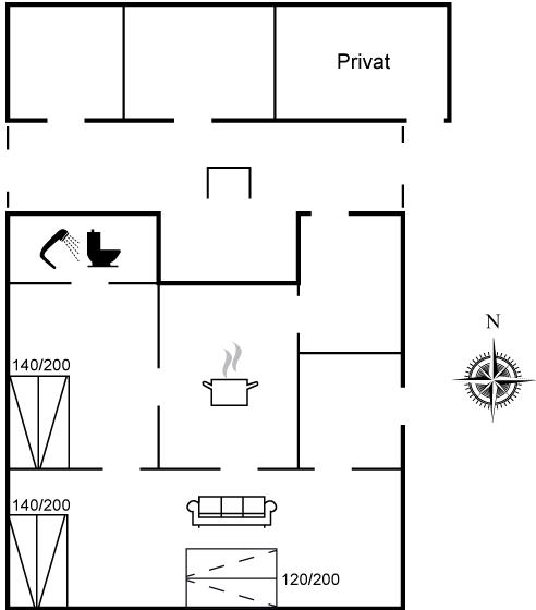
- Badezimmer 1
- Wohnfläche 70 m²
- Grundstück 640 m²
- Haustiere 2
- Kurzurlaub möglich Ja
- Entfernung Wasser 4 km
- Einkaufen 2.500 m
- Internet Ja
- Satelliten-/Kabel TV Ja
- Waschmaschine Ja
- Trockner Ja
- Nichtraucher Ja
- Ladestation für Elektroauto Ja
- Klimafreundlich Ja
Beschreibung
Nahezu am Fuße des Naturgebiets Svanninge Bakker liegt dieses gemütliche Haus - in unmittelbarer Nähe der wunderschönen Natur die dieses Gebiet anzubieten hat. Das Haus ist gemütlich eingerichtet und hinter dem Haus gibt es einen kleinen, gemütlichen Innenhof und einen ungestörten Garten.Hier hast du also die Möglichkeit, Stunden im Freien zu genießen – mit einer guten Tasse Kaffee, einem spannenden Buch oder an der Feuerschale.
Es stehen dir ein Sonnenschirm, Auflagen und Sonnenliegen sowie Outdoor- und Indoor-Spiele zur Verfügung.
Vom Haus aus ist es nicht weit nach Faaborg oder zum Wasser, und wenn du die Natur magst, kanns du im gesamten Gebiet ”Svanninge Bakker” auf Entdeckung gehen! Nicht weit vom Haus entfernt gibt es außerdem einen Golfplatz.
Übrigens: Zwei der Schlafplätze befinden sich auf einer Doppelschlafcouch im Wohnzimmer. Es besteht die Möglichkeit, dass 3–4 normale Autos am Haus parken können.
Einrichtung
Dieser ehemalige Bauernhof eignet sich für 6 Personen sowie 1 Kleinkind bis zu 3 Jahren. Die Ferienunterkunft hat eine Wohnfläche von 70 m² und wurde 1898 gebaut. Es ist erlaubt 2 Haustiere mitzubringen. Die Ferienunterkunft ist mit einer energiefreundlichen Luft-Wasser-Wärmepumpe ausgestattet. Die Ferienunterkunft verfügt über einen Waschtrockner. Tiefkühlmöglichkeit mit 50 Liter Nutzinhalt. Für die jüngsten Feriengäste sind 2 Kinderhochstühle vorhanden.
Draußen
Die Ferienunterkunft liegt auf einem 640 m² großen Gartengrundstück. Die Entfernung zum Meer beträgt 4000 m. Die nächste Einkaufsmöglichkeit liegt 2500 m entfernt. In einem Abstand von 1200 m gibt es einen Golfplatz. Es steht ein geschlossenes Terrassenareal zur Verfügung. Die Entfernung zu einem Spielplatz beträgt 1500 m.Lagerfeuerstelle. Es steht ein Grill zur Verfügung. Es ist ein Ladestecker für Elektroautos installiert. Ladestecker Typ 2. Parkplatz auf dem Grundstück.
Schlafverhältnisse
Es gibt einen Schlafraum. 4 Schlafplätze in Doppelbetten. 2 Schlafplätze auf einer Doppelschlafcouch. 4 von diesen Schlafplätzen befinden sich im Wohnzimmer. Ferner stehen 2 Kinderbetten zur Verfügung.
Küche
Die Küche ist mit Kühlschrank ausgestattet. Außerdem gibt es 4 Keramik-Kochfelder, Umluftofen, Mikrowelle.
WC und Bad
Es gibt 1 Badezimmer mit Duschnische und 1 Toilette.
Multimedien
In der Ferienunterkunft gibt es 1 Fernseher mit Smart-TV. Mindestens 4 dänische Fernsehsender. 1-3 schwedische Fernsehsender. 1-3 norwegische Fernsehsender. Mindestens 4 deutsche Fernsehsender. Es steht kabellose Internetverbindung zur Verfügung.
Wissenswertes
Keine Vermietung an Jugendgruppen, in denen alle 15-25 Jahre sind. Rauchen ist nicht zugelassen. Bei Nichtbeachtung dieses Verbots wird eine Gebühr von mindestens EUR 420,- erhoben.
Es stehen dir ein Sonnenschirm, Auflagen und Sonnenliegen sowie Outdoor- und Indoor-Spiele zur Verfügung.
Vom Haus aus ist es nicht weit nach Faaborg oder zum Wasser, und wenn du die Natur magst, kanns du im gesamten Gebiet ”Svanninge Bakker” auf Entdeckung gehen! Nicht weit vom Haus entfernt gibt es außerdem einen Golfplatz.
Übrigens: Zwei der Schlafplätze befinden sich auf einer Doppelschlafcouch im Wohnzimmer. Es besteht die Möglichkeit, dass 3–4 normale Autos am Haus parken können.
Einrichtung
Dieser ehemalige Bauernhof eignet sich für 6 Personen sowie 1 Kleinkind bis zu 3 Jahren. Die Ferienunterkunft hat eine Wohnfläche von 70 m² und wurde 1898 gebaut. Es ist erlaubt 2 Haustiere mitzubringen. Die Ferienunterkunft ist mit einer energiefreundlichen Luft-Wasser-Wärmepumpe ausgestattet. Die Ferienunterkunft verfügt über einen Waschtrockner. Tiefkühlmöglichkeit mit 50 Liter Nutzinhalt. Für die jüngsten Feriengäste sind 2 Kinderhochstühle vorhanden.
Draußen
Die Ferienunterkunft liegt auf einem 640 m² großen Gartengrundstück. Die Entfernung zum Meer beträgt 4000 m. Die nächste Einkaufsmöglichkeit liegt 2500 m entfernt. In einem Abstand von 1200 m gibt es einen Golfplatz. Es steht ein geschlossenes Terrassenareal zur Verfügung. Die Entfernung zu einem Spielplatz beträgt 1500 m.Lagerfeuerstelle. Es steht ein Grill zur Verfügung. Es ist ein Ladestecker für Elektroautos installiert. Ladestecker Typ 2. Parkplatz auf dem Grundstück.
Schlafverhältnisse
Es gibt einen Schlafraum. 4 Schlafplätze in Doppelbetten. 2 Schlafplätze auf einer Doppelschlafcouch. 4 von diesen Schlafplätzen befinden sich im Wohnzimmer. Ferner stehen 2 Kinderbetten zur Verfügung.
Küche
Die Küche ist mit Kühlschrank ausgestattet. Außerdem gibt es 4 Keramik-Kochfelder, Umluftofen, Mikrowelle.
WC und Bad
Es gibt 1 Badezimmer mit Duschnische und 1 Toilette.
Multimedien
In der Ferienunterkunft gibt es 1 Fernseher mit Smart-TV. Mindestens 4 dänische Fernsehsender. 1-3 schwedische Fernsehsender. 1-3 norwegische Fernsehsender. Mindestens 4 deutsche Fernsehsender. Es steht kabellose Internetverbindung zur Verfügung.
Wissenswertes
Keine Vermietung an Jugendgruppen, in denen alle 15-25 Jahre sind. Rauchen ist nicht zugelassen. Bei Nichtbeachtung dieses Verbots wird eine Gebühr von mindestens EUR 420,- erhoben.
Unsere Gästebewertungen Externe Bewertungen
Ausstattung
-
Bitte beachten
-
Keine Jugendgruppen auf Anfrage
-
Rauchen ist verboten
-
-
Draußen
-
Feuerstelle
-
Geschlossene Terrasse
-
Geschäft2,5 km
-
Golfplatz1,2 km
-
Grill1
-
Größe des Grundstücks640 m²
-
Ladebuchse Typ 2
-
Ladegerät für Elektroautos
-
Landschaftsgarten
-
Meer4 km
-
Parkplatz beim Haus
-
Spielplatz1500
-
Terrasse
-
-
Einrichtung
-
Anzahl Erwachsene inkl. 4-11 Jahre6
-
Anzahl Kinder (0-3 Jahre)1
-
Baujahr1898
-
Bebaute Fläche70 m²
-
Ehemaliger Bauernhof
-
Gefrierkapazität (Anzahl Liter)50
-
Haustiere2
-
Hochstuhl2
-
Waschmaschine1
-
Wärmepumpe
-
Wärmepumpe Luft zu Luft
-
Wäschetrockner1
-
-
Küche
-
Anzahl der Keramikkochplatten4
-
Heißluftofen1
-
Kühlschrank1
-
Mikrowelle1
-
-
Multimedien
-
> 3 deutsche Sender
-
> 3 dänische Sender
-
0-3 norwegische Kanäle
-
0-3 schwedische Kanäle
-
Anzahl der Fernseher1
-
Herunterladen300
-
Hochladen300
-
Internet drahtlos
-
Smart TV1
-
-
Schlafverhältnisse
-
Anzahl der Schlafzimmer1
-
Doppelbett (Anzahl der Schlafplätze)4
-
Kinderbett2
-
Schlafmöglichkeit nicht im Schlafzimmer
-
Schlafsofa, Doppelbett (Anzahl der Schlafplätze)2
-
-
WC und Bad
-
Anzahl der Badezimmer1
-
Duschkabine
-
Toiletten1
-
-
Zugang zur Ferienunterkunft
-
Schlüsselkasten mit Code
-
Kurzurlaub
Es besteht eine begrenzte Möglichkeit das ganze Jahr einen Kurzurlaub zu machen, typischerweise ausserhalb der Hochsaison.
Preise und Kalender
Kalender
Dauer
Preis
Zeitraum
- Ankunft
- Abreise
- Dauer
- 1 Woche
Personen
Bis zu 6 Personen
Bitte beachten
Ankunftszeit wurde nicht ausgewählt.