Ferienhaus mit Wasserblick an Südjütlands Ostküste

Ferienhaus - 4 Personen - Brunbjerg - Halk Strand - 6100 - Haderslev

4 Personen
Objekt Nr.: 130-F07455
Charmantes Ferienhaus direkt am Wasser mit Panoramablick an der Ostküste Südjütlands.
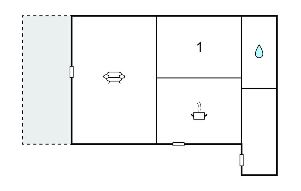
  • Schlafzimmer 1
  • Badezimmer 1
  • Wohnfläche 39 m²
  • Grundstück 500 m²
  • Haustiere Nicht erlaubt
  • Kurzurlaub möglich Ja
  • Entfernung Wasser 5 m
  • Einkaufen 175 m
  • Internet Ja
  • Gute Angelmöglichkeiten Ja
  • Wasserblick Ja
  • Klimaanlage Ja
  • Nichtraucher Ja
  • Klimafreundlich Ja

Beschreibung

Freuen Sie sich auf einen Urlaub in diesem charmanten kleinen Ferienhaus direkt am Wasser.

Willkommen an der schönen Ostküste Südjütlands in diesem wunderbaren Haus. Hier können Sie ein paar friedliche Tage genießen und den Alltag hinter sich lassen. Innen ist das Haus in warmen Holztönen gehalten, ergänzt durch helle Details und Sprossenfenster. Machen Sie es sich am Esstisch gemütlich und nehmen Sie sich Zeit für eine Tasse Kaffee, während Sie den Blick über die fantastische Umgebung schweifen lassen. Wenn Sie die Tür zur Terrasse öffnen, liegt das blaue Panorama direkt vor Ihnen, der ideale Rahmen für sommerliche Mahlzeiten. Wenn Sie abends von Ihren Ausflügen zurückkehren, lauschen Sie hier auch dem Rauschen der Wellen.

Gestalten Sie Ihre Tage mit kleinen Abstechern zum Strand, um zu baden oder einfach in Ruhe die Gedanken schweifen zu lassen. Sie haben leichten Zugang zu Südjütlands schöner Natur und spannenden kulturellen Angeboten. Unternehmen Sie einen Ausflug nach Haderslev und entdecken Sie die Geschichte der Stadt und die schöne Domkirche. Planen Sie auch einen Tagesausflug nach Aarø ein. Dort können Sie die Insel zu Fuß erkunden oder den Naturspielplatz besuchen.

Raumaufteilung

  • Ferienunterkunft
    • Schlafzimmer, 2 Personen
      • 2 x Einzelbett
    • Badezimmer
      • WC mit warmem und kaltem Wasser, Dusche
    • Wohnzimmer, 2 Personen
      • 2 x Einzelcouch
    • Terrasse
      • Offene Terrasse

Unsere Gästebewertungen Externe Bewertungen

Keine eigene Gästebewertungen
3,7
3 externe Bewertungen
3,0
august 2025
Einchecken:
5
Reinigung:
2
Komfort:
3
Einrichtungen:
4
Lage:
4
Preis-Leistung:
3
Allgemein:
Viel zu viele Insekten dort, da es mitten in Hagebuttensträuchern liegt. Wir konnten deswegen kein mal draußen sitzen während der ganzen Woche.Die Hagebuttensträucher versperren auch die Sicht aufs Meer.
5,0
juli 2025
Einchecken:
5
Reinigung:
5
Komfort:
3
Einrichtungen:
5
Lage:
5
Preis-Leistung:
4
3,0
juli 2025
Einchecken:
5
Reinigung:
4
Komfort:
3
Einrichtungen:
2
Lage:
4
Preis-Leistung:
2
Allgemein:
Das Haus liegt wunderschön direkt am Strand, leider wirkt es so, als wenn einmal schnell ein Feriendomizil kreiert werden sollte.Die Einrichtung ist o.k, es fehlt hier maßgeblich an Unterbringungsmöglichkeiten für Kleidung (nur 4 Haken im Bad und keine Schränke). Des Weiteren wäre es schön, wenn es zumidest einen kleinen Handfeger geben würde. Man schleppt immer Sand hinein, es gibt keinen Außenwasserhahn, so dass man sich mit dem Besen den Sand von den Füßen entfernen könnte. Auch Liegestühle wären m.E. anstelle der vielen Sitzmöglichkeiten auf der Terrasse sinnvoll. Die Außenbank an der Seite konnte auf Grund des starken Gartenwuchses leider nicht benutzt werden.Spannend auch, die spezielle Türverriegelung, die zwar innen deklariert war, jedoch war die Tür bereits beim Einräumen ins Schloss gefallen und nur mit Hilfe der Notrufnummer von novasol konnte ein Ersatzschlüssel im 15 km entfernten Supermarkt organisiert werden.Das Auto kann nur auf einem kleinen Strandwegabzweig geparkt werden und man darf sein Gepäck einige Meter am Strand entlang transportieren. Der Parkplatz ist leider nicht für das Haus deklariert, so dass hier auch schon mal andere Personen parken.Das Haus hat ein gutes Potential, es gibt jedoch einiges, was verbessert werden könnte. Das Preis - Leistungsverhältnis ist aktuell in keinster Weise angemessen.

Ausstattung

  • Aktivitäten

    • Angelmöglichkeit, Meer
  • Badezimmer

    • TOILETTE. Heißes und kaltes Wasser
  • Diverse

    • 1. Dünenkette
    • Alternative Heizung, Wärmepumpe
    • Anzahl kostenloser Kinder (<4 Jahre)
      1
    • Anzahl Sonnenliegen
      2
    • Baujahr
      1931
    • Baumaterial: Holz
    • Ferienhaus
      39 m²
    • Ganzjähriges Haus
    • Haustiere Nr
    • Heizung, Elektroheizung
    • Panoramablick auf das Wasser
    • Renoviert
      2025
    • Self-Service-Check-in
    • Staubsauger
    • Strom und Heizung exkl.
    • Wasser inkl.
    • Winterfest
  • Draußen

    • Gartenmöbel
    • Grill
    • Kostenloser Parkplatz in der Nähe
      2
    • Kugelgrill
    • Naturgrundstück/Garten
      500 m²
    • Offenes Gelände
  • Drinnen

    • Energiesparendes Heizsystem
    • Fußbodenheizung im Badezimmer
    • Klimaanlage
  • Elektrogeräte

    • Internet (drahtlos)
    • Smart TV
  • In der Nähe

    • Die nächste Stadt
      15 km
    • Entfernung Einkauf
      175 m
    • Entfernung zu Angelmöglichkeiten
      5 m
    • Nächstes Restaurant
      15 km
    • Schwimmbad
      15 km
    • Sek. zum nächsten Wasser/Bad
      5 m
  • Konzepte

    • Rauchfreies Haus
  • Küche

    • Die Küche verfügt über Warmwasser
    • Elektroherd
      4 Kochfelder
    • Gefriertruhe
      20 l
    • Kaffeemaschine
    • Kühlschrank
    • Mikrowelle
  • Notiz

    • Nicht an Institutionen vermietet
    • Nicht geeignet für Personen mit Gehbehinderung
    • Nur für Ferienaufenthalte vermietet
    • Wird nicht an Jugendgruppen vermietet

Kurzurlaub

Sie haben das ganze Jahr die Möglichkeit einen Kurzurlaub zu machen.

Preise und Kalender

Kalender

Ankunft
Nächster Monat
  • März 2026
    MoDiMiDoFrSaSo
    91
    102345678
    119101112131415
    1216171819202122
    1323242526272829
    143031
  • April 2026
    MoDiMiDoFrSaSo
    1412345
    156789101112
    1613141516171819
    1720212223242526
    1827282930
    19
   Verfügbarkeit am ausgewählten Datum prüfen
Frei
Nicht frei
   Ankunft möglich
Dauer

Preis

Zeitraum
Ankunft
Abreise
Dauer
1 Woche
Personen
Bis zu 4 Personen

Bitte beachten

Ankunftszeit wurde nicht ausgewählt.
Vertrags- und Mietbedingungen