Alternative Objekte
Ferienhaus mit Sauna und Meerblick nahe Strand
Ferienhaus - 6 Personen - Strandgårdsvej - Bro Strand - 5464 - Brenderup
6 Personen
Objekt Nr.: 121-73-0032
Modernes Ferienhaus mit Meerblick, Sauna und Whirlpool nahe Bro Strand in Dänemark.
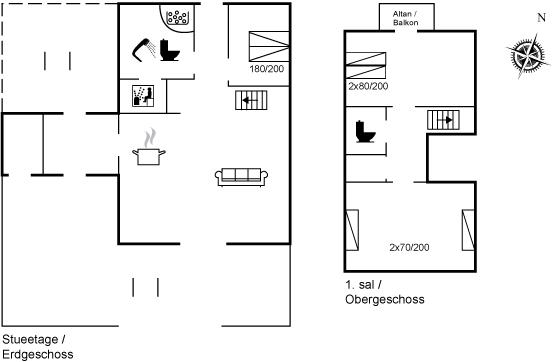
- Schlafzimmer 3
- Badezimmer 1
- Wohnfläche 100 m²
- Grundstück 300 m²
- Haustiere 1
- Kurzurlaub möglich Ja
- Entfernung Wasser 250 m
- Einkaufen 4 km
- Whirlpool Ja
- Sauna Ja
- Internet Ja
- Satelliten-/Kabel TV Ja
- Kaminofen Ja
- Wasserblick Ja
- Waschmaschine Ja
- Trockner Ja
- Geschirrspüler Ja
- Nichtraucher Ja
- Ladestation für Elektroauto Ja
- Klimafreundlich Ja
Beschreibung
Tolles Ferienhaus im beliebten Urlaubsgebiet bei Bro Strand. Das Haus ist hübsch und außen wie innen äußerst gepflegt. Vom Balkon im 1. Stock haben Sie einen schönen Blick über das südliche Kattegat – ein idealer Platz, um den Tag ausklingen zu lassen, während die Sonne langsam im Wasser versinkt.
Zum Gemeinschaftsbereich gehören unter anderem Spielplätze, Beachvolleyballfeld, Tennisplatz, Bouleplatz, Outdoor-Fitness und weitere Angebote, die von den Gästen genutzt werden können. Am Strand, der nur 250 m vom Haus entfernt ist, steht im Sommer ein Badesteg zur Verfügung.
Einrichtung
Das Ferienhaus eignet sich für 6 Personen sowie 1 Kleinkind bis zu 3 Jahren. Die Ferienunterkunft hat eine Wohnfläche von 100 m², ist 2-stöckig, und wurde 2006 gebaut. Es ist erlaubt 1 Haustier mitzubringen. Die Ferienunterkunft ist mit energiefreundlicher Luft-Luft- Wärmepumpe ausgestattet. Die Ferienunterkunft ist mit Waschmaschine ausgestattet. Wäschetrockner. Tiefkühlmöglichkeit mit 60 Liter Nutzinhalt. Es gibt außerdem einen Kaminofen. Für die jüngsten Feriengäste ist 1 Kinderhochstuhl vorhanden.
Draußen
Die Ferienunterkunft liegt auf einem 300 m² großen Naturgrundstück. Die Entfernung zum Meer beträgt 250 m. Die nächste Einkaufsmöglichkeit liegt 4000 m entfernt. Es steht ein offenes Terrassenareal zur Verfügung.Balkon im Obergeschoss. Geräteraum. Die Entfernung zu einem Spielplatz beträgt 50 m. Es steht ein Grill zur Verfügung. Es ist ein Ladestecker für Elektroautos installiert. Ladestecker Typ 2. Mit einer Ladeleistung von 22 kW. Parkplatz auf dem Grundstück.
Schlafverhältnisse
Die Schlafplätze verteilen sich auf 3 Schlafräume. 2 Schlafplätze in einem Doppelbett. 4 Schlafplätze in Einzelbetten. Ferner steht ein Kinderbett zur Verfügung.
Küche
Die Küche ist mit Kühlschrank ausgestattet. Außerdem gibt es 4 Keramik-Kochfelder, Umluftofen, Mikrowelle sowie Geschirrspüler.
WC und Bad
Es gibt 1 Badezimmer mit Duschnische und 2 Toiletten, davon 1 Gästetoilette. Fußbodenheizung in 1 Badezimmer. Es steht eine Sauna zur Verfügung in der Sie sich so richtig entspannen können.
Whirlpool
Entspannen Sie sich im Innen-Durchlauf-Whirlpool für 2 Personen.
Multimedien
In der Ferienunterkunft gibt es einen Fernseher. Radio. Mindestens 4 dänische Fernsehsender. 1-3 norwegische Fernsehsender. Mindestens 4 deutsche Fernsehsender. 1-3 englische Fernsehsender. Es steht kabellose Internetverbindung zur Verfügung.
Wissenswertes
Keine Vermietung an Jugendgruppen, in denen alle 15-25 Jahre sind. Rauchen ist nicht zugelassen. Bei Nichtbeachtung dieses Verbots wird eine Gebühr von mindestens EUR 420,- erhoben. Kabel zum Aufladen eines Elektroautos an der hauseigenen Ladestation muss mitgebracht werden.
Einrichtung
Das Ferienhaus eignet sich für 6 Personen sowie 1 Kleinkind bis zu 3 Jahren. Die Ferienunterkunft hat eine Wohnfläche von 100 m², ist 2-stöckig, und wurde 2006 gebaut. Es ist erlaubt 1 Haustier mitzubringen. Die Ferienunterkunft ist mit energiefreundlicher Luft-Luft- Wärmepumpe ausgestattet. Die Ferienunterkunft ist mit Waschmaschine ausgestattet. Wäschetrockner. Tiefkühlmöglichkeit mit 60 Liter Nutzinhalt. Es gibt außerdem einen Kaminofen. Für die jüngsten Feriengäste ist 1 Kinderhochstuhl vorhanden.
Draußen
Die Ferienunterkunft liegt auf einem 300 m² großen Naturgrundstück. Die Entfernung zum Meer beträgt 250 m. Die nächste Einkaufsmöglichkeit liegt 4000 m entfernt. Es steht ein offenes Terrassenareal zur Verfügung.Balkon im Obergeschoss. Geräteraum. Die Entfernung zu einem Spielplatz beträgt 50 m. Es steht ein Grill zur Verfügung. Es ist ein Ladestecker für Elektroautos installiert. Ladestecker Typ 2. Mit einer Ladeleistung von 22 kW. Parkplatz auf dem Grundstück.
Schlafverhältnisse
Die Schlafplätze verteilen sich auf 3 Schlafräume. 2 Schlafplätze in einem Doppelbett. 4 Schlafplätze in Einzelbetten. Ferner steht ein Kinderbett zur Verfügung.
Küche
Die Küche ist mit Kühlschrank ausgestattet. Außerdem gibt es 4 Keramik-Kochfelder, Umluftofen, Mikrowelle sowie Geschirrspüler.
WC und Bad
Es gibt 1 Badezimmer mit Duschnische und 2 Toiletten, davon 1 Gästetoilette. Fußbodenheizung in 1 Badezimmer. Es steht eine Sauna zur Verfügung in der Sie sich so richtig entspannen können.
Whirlpool
Entspannen Sie sich im Innen-Durchlauf-Whirlpool für 2 Personen.
Multimedien
In der Ferienunterkunft gibt es einen Fernseher. Radio. Mindestens 4 dänische Fernsehsender. 1-3 norwegische Fernsehsender. Mindestens 4 deutsche Fernsehsender. 1-3 englische Fernsehsender. Es steht kabellose Internetverbindung zur Verfügung.
Wissenswertes
Keine Vermietung an Jugendgruppen, in denen alle 15-25 Jahre sind. Rauchen ist nicht zugelassen. Bei Nichtbeachtung dieses Verbots wird eine Gebühr von mindestens EUR 420,- erhoben. Kabel zum Aufladen eines Elektroautos an der hauseigenen Ladestation muss mitgebracht werden.
Unsere Gästebewertungen Externe Bewertungen
Ausstattung
-
Ausblick
-
Meerblick vom Ferienhaus
-
-
Bitte beachten
-
Keine Arbeiter auf Anfrage
-
Keine Jugendgruppen auf Anfrage
-
Rauchen ist verboten
-
-
Draußen
-
Balkon
-
Geschäft4 km
-
Grill1
-
Größe des Grundstücks300 m²
-
KW Leistung22
-
Ladebuchse Typ 2
-
Ladegerät für Elektroautos
-
Meer250 m
-
Naturstandort
-
Parkplatz beim Haus
-
Spielplatz50
-
Terrasse
-
Werkzeugschuppen
-
-
Einrichtung
-
2 Ebenen
-
Anzahl Erwachsene inkl. 4-11 Jahre6
-
Anzahl Kinder (0-3 Jahre)1
-
Baujahr2006
-
Bebaute Fläche100 m²
-
Ferienhaus
-
Gefrierkapazität (Anzahl Liter)60
-
Haustiere1
-
Hochstuhl1
-
Holzofen1
-
Waschmaschine1
-
Wärmepumpe
-
Wärmepumpe Luft zu Luft
-
Wäschetrockner1
-
-
Küche
-
Anzahl der Keramikkochplatten4
-
Heißluftofen1
-
Kühlschrank1
-
Mikrowelle1
-
Spülmaschine1
-
-
Multimedien
-
> 3 deutsche Sender
-
> 3 dänische Sender
-
0-3 englische Kanäle
-
0-3 norwegische Kanäle
-
Anzahl der Fernseher1
-
Herunterladen300
-
Hochladen300
-
Internet drahtlos
-
Radio
-
-
Schlafverhältnisse
-
Anzahl der Schlafzimmer3
-
Doppelbett (Anzahl der Schlafplätze)2
-
Einzelbett (Anzahl der Schlafplätze)4
-
Kinderbett1
-
-
WC und Bad
-
Anzahl der Badezimmer1
-
Anzahl der Gästebäder1
-
Duschkabine
-
Fußbodenheizung1
-
Sauna
-
Toiletten2
-
-
Whirlpool
-
Innen-Whirlpool (Anzahl Personen)2
-
-
Zugang zur Ferienunterkunft
-
Schlüsselkasten mit Code
-
Kurzurlaub
Es besteht eine begrenzte Möglichkeit das ganze Jahr einen Kurzurlaub zu machen, typischerweise ausserhalb der Hochsaison.
Preise und Kalender
Kalender
Dauer
Preis
Zeitraum
- Ankunft
- Abreise
- Dauer
- 1 Woche
Personen
Bis zu 6 Personen
Bitte beachten
Ankunftszeit wurde nicht ausgewählt.