Ferienhaus mit Meerblick und Kamin in Vejers

Ferienhaus - 6 Personen - Nordvej - Vejers Nordstrand - 6853 - Vejers Strand

6 Personen
Objekt Nr.: 333-563881
Gemütliches Ferienhaus in Vejers Strand mit Meerblick, Kamin und moderner Ausstattung, nur 200 Meter vom Strand entfernt.
  • Schlafzimmer 4
  • Badezimmer 1
  • Wohnfläche 100 m²
  • Grundstück 1.750 m²
  • Haustiere Nicht erlaubt
  • Kurzurlaub möglich Nein
  • Entfernung Wasser 200 m
  • Einkaufen 500 m
  • Internet Ja
  • Satelliten-/Kabel TV Ja
  • Kaminofen Ja
  • Wasserblick Ja
  • Waschmaschine Ja
  • Geschirrspüler Ja
  • Nichtraucher Ja
  • Klimafreundlich Ja

Beschreibung

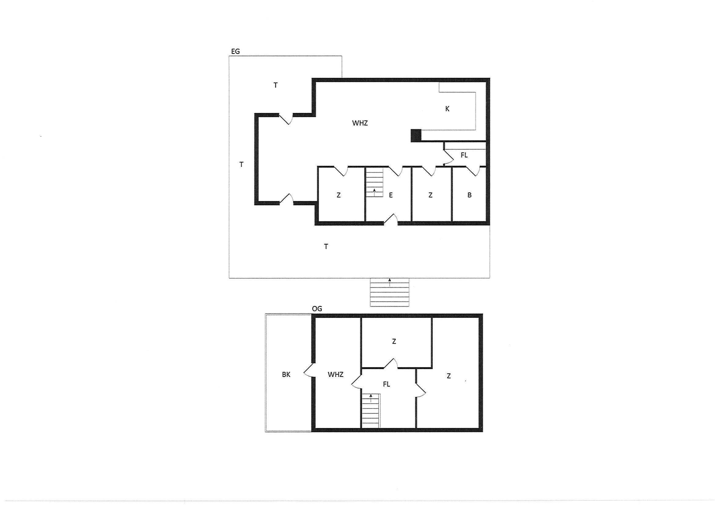
Gemütliches Ferienhaus mit dem Namen ”Kaka” auf einer Düne in Mitten der Dünenlandschaft gelegen. Das Ferienhaus ist für 6 Personen ausgestattet. Die Räumlichkeiten sind auf 2 Etagen verteilt. Der Strand ist nur sage und schreibe 200 Meter vom Haus entfernt. Über einen Treppenaufgang gelangen Sie zum Ferienhaus. Im Erdgeschoss befindet sich das Wohnzimmer, das Esszimmer, die Küche, das Badezimmer und zwei Schlafzimmer. 4 Schlafzimmer DB + DB + B + B. Im Obergeschoss sind dann weitere zwei Schlafbereiche, die mit je einem Doppelbett ausgestattet sind. Im gefliesten Eingangsbereich befindet sich eine steile Treppe zum Obergeschoss. Das Wohnzimmer verfügt über einen Kamin der an der Wand angebracht ist, also hängend. Das ist ein besonderer Blickfang. Es befindet sich eine Warmepumpe im Ferienhaus. Mit dieser Warmepumpe haben sie die Möglichkeit die Stromkosten zu senken, denn die Warmepumpe ist energiesparend.  Das deutsche Fernsehprogramm empfangen Sie über eine Parabolantenne. Chromecast. Ein gemütliches Sofa lädt zum Verweilen und relaxen ein. Angrenzend am Wohnbereich ist der Küchenbereich. Dazwischen ist eine kleiner Esstisch mit Stühlen aufgestellt. Ein weiterer Essbereich mit zwei Tischen und Stühlen stehen den Gästen zur Verfügung. Von hier ist auch ein Ausgang zur Terrasse. Die Küche ist einfach und mit einem Herd mit Cerankochfeld, einem Backofen, einer Geschirrspülmaschine, einer Mikrowelle und eine Kühl- und Gefrierkombination ausgestattet. Das Badezimmer verfügt über ein WC, ein Handwaschbecken und eine Dusche. Die Waschmaschine ist hier im Badezimmer untergebracht.Vom Balkon im Obergeschoss haben Sie einen wunderschönen Panoramablick, teilweise sogar einen Meeresblick. Das Ferienhaus verfügt über einen Internetanschluss (W-Lan). Ihr Fahrzeug findet in der Garage unter dem Ferienhaus seinen Platz. Das Rauchen ist nicht gestattet. Haustiere sind nicht erlaubt. Das Ferienhaus wurde 1957 erbaut und laufend Instand gehalten.

 

HAUSTIERE:
Haustiere sind nicht erlaubt.

GUT ZU WISSEN:
Keine Vermietung an Jugendgruppen.
Kostenlose Parkplätze vor dem Haus.
Geschlossene Terrasse.
Verbrauchsabrechnung nach Ablesung.
Der Wasserverbrauch ist im Preis inbegriffen.
Die Reinigung ist im Preis inbegriffen.
4 Schlafzimmer. 2 mit Doppelbett 180x200 cm. 2 mit 1 Einzelbett (je 90x200 cm).
Es ist möglich, ein Kinderbett und einen Hochstuhl im Büro zu leihen.
Bettwäsche ist nicht inbegriffen, kann aber gekauft werden.

NÄCHSTE EINKÄUFE:
Bäckerei 850 m vom Ferienhaus entfernt. Supermarkt "Storkøb" 750 m vom Ferienhaus entfernt.

ÖFFENTLICHE VERKEHRSMITTEL:
Der nächstgelegene Bahnhof befindet sich in Oksbøl, ca. 10 km von Vejers entfernt.

Ausstattung

  • Schlafzimmer

    • Anzahl Schlafzimmer
      4
    • Schlafzimmer 1: Anzahl Doppelbetten
      1
    • Schlafzimmer 2: Anzahl Doppelbetten
      1
    • Schlafzimmer 3: Anzahl Einzelbetten
      1
    • Schlafzimmer 4: Anzahl Einzelbetten
      1
  • Küchen-und Haushaltsgeräte

    • Mikrowelle
    • Spülmaschine
    • Anzahl der Küchen
      1
  • Wellness-, Dusch- und WC-Anlagen

    • Waschmaschine
    • Anzahl Badezimmer
      1
    • Badezimmer mit Toilette, Dusche und Waschbecken
  • Multimedien

    • Internetzugang
    • Sat-TV
    • DVD-player
    • TV
    • Dt. TV Kanäle
    • Google Chrome Cast
  • Hausinfo

    • Meerblick
    • HAUSTIER NICHT ERLAUBT
    • Rauchen NICHT erlaubt
    • Baujahr
      1957
    • Haus m²
      100
    • Renoviert
      1976
    • Max. Anzahl Personen
      6
    • Keine Jugendgruppen erlaubt
    • Wasserverbrauch im Mietpreis inbegriffen
    • Power-Management-Haus
    • Grundstücksgröße
      1750
  • Draußen

    • Geschlossene Terrasse
  • Entfernung zu:

    • Entfernung Strand
      200 m
    • Entfernung Einkauf
      500 m
    • Entfernung Restaurant
      500 m
  • Segmente

    • Slow-Life
  • Urlaubskonzepte

    • Anreisetag Samstag
    • Preisregulierung +/- 15%
  • Wärmequellen

    • Kaminofen
    • Klimaanlage mit Heizung
    • Fußbodenheizung im Bad
  • Wohnzimmer

    • Anzahl der Räume
      1
  • Einrichtung

    • Doppelzimmer
      2
    • Schlafzimmer mit 1 Einzelbett
      2
    • Personenzahl
      6

Preise und Kalender

Kalender

Ankunft
Vorheriger Monat Nächster Monat
  • April 2026
    MoDiMiDoFrSaSo
    1412345
    156789101112
    1613141516171819
    1720212223242526
    1827282930
    19
  • Mai 2026
    MoDiMiDoFrSaSo
    18123
    1945678910
    2011121314151617
    2118192021222324
    2225262728293031
    23
   Verfügbarkeit am ausgewählten Datum prüfen
Frei
Nicht frei
   Ankunft möglich
Dauer

Preis

Zeitraum
Ankunft
Abreise
Dauer
1 Woche
Personen
Bis zu 6 Personen

Bitte beachten

Ankunftszeit wurde nicht ausgewählt.
Vertrags- und Mietbedingungen