Alternative Objekte
Gemütliches Sommerhaus mit Meerblick und Gästehaus
Ferienhaus - 6 Personen - Birkevænget - Sortsö - 4850 - Stubbeköbing
6 Personen
Objekt Nr.: 121-83-1017
Charmantes Sommerhaus mit Meerblick, Gästehaus und Spielplatz nahe Strand und Angelmole in Stubbekøbing.
- Schlafzimmer 2
- Badezimmer 1
- Wohnfläche 53 m²
- Grundstück 805 m²
- Haustiere Nicht erlaubt
- Kurzurlaub möglich Ja
- Entfernung Wasser 100 m
- Einkaufen 4 km
- Internet Ja
- Satelliten-/Kabel TV Ja
- Kaminofen Ja
- Wasserblick Ja
- Geschirrspüler Ja
- Nichtraucher Ja
- Klimafreundlich Ja
Beschreibung
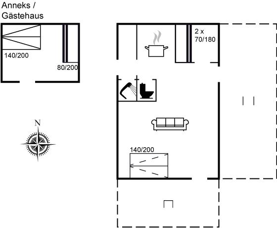
Gemütliches und charmantes kleines Sommerhaus - gelegen auf einem schönen, teils umschlossenen Grundstück direkt am Wasser mit Aussicht auf den Sund sowohl vom Haus als auch vom Grundstück aus. Zum Haus gehört ein Gästehaus mit 4 Schlafplätzen. Außerdem zusätzliche Schlafplätze auf dem Bettsofa im Wohnzimmer oder im zimmer mit 2 Etagenbett-Plätzen. Separates WC und Bad im Haus. Das Haus liegt in einer schönen Umgebung nahe dem Strand mit Badebrücke und nicht weit einer Mole für die Angelbegeisterten mit Möglichkeit, ein Boot zu Wasser zu lassen. Im Gebiet gibt es einen gemeinschaftlichen Spielplatz.
Einrichtung
Das Ferienhaus eignet sich für 6 Personen sowie 1 Kleinkind bis zu 3 Jahren. 2 der Schlafplätze eignen sich jedoch nur für größere Kinder (4-11 Jahre). Die Ferienunterkunft hat eine Wohnfläche von 53 m² und wurde 1967 gebaut. Haustiere dürfen nicht mitgebracht werden. Die Ferienunterkunft ist mit energiesparender Wärmepumpe ausgestattet. Tiefkühlmöglichkeit mit 10 Liter Nutzinhalt. Es gibt außerdem einen Kaminofen. Für die jüngsten Feriengäste ist 1 Kinderhochstuhl vorhanden.
Draußen
Die Ferienunterkunft liegt auf einem 805 m² großen Gartengrundstück. Die Entfernung zum Meer beträgt 100 m. Die nächste Einkaufsmöglichkeit liegt 4000 m entfernt. Es steht ein 15 m² Terrassenareal zur Verfügung. Außerdem gibt es 12 m² überdachte Terrasse. Schaukel. Sandkasten. Kinderspielhaus. Fußballtor.Lagerfeuerstelle. Es steht ein Carport zur Verfügung. Parkplatz auf dem Grundstück.
Schlafverhältnisse
Die Schlafplätze verteilen sich auf 2 Schlafräume. 2 Schlafplätze in einem Doppelbett. 4 Schlafplätze in Etagenbetten. 2 Schlafplätze auf einer Doppelschlafcouch. 2 von diesen Schlafplätzen befinden sich im Gästehaus und 2 befinden sich im Wohnzimmer. Ferner steht ein Kinderbett zur Verfügung.
Küche
Die Küche ist mit Kühlschrank ausgestattet. Außerdem gibt es 4 Keramik-Kochfelder, Umluftofen, Mikrowelle sowie Geschirrspüler.
WC und Bad
Es gibt 1 Badezimmer mit Duschnische und 1 Toilette., davon 1 Gästetoilette.
Multimedien
In der Ferienunterkunft gibt es einen Fernseher. Radio. Mindestens 4 dänische Fernsehsender. 1-3 deutsche Fernsehsender. Es steht kabellose Internetverbindung zur Verfügung.
Wissenswertes
Keine Vermietung an Jugendgruppen, in denen alle 15-25 Jahre sind. Rauchen ist nicht zugelassen. Bei Nichtbeachtung dieses Verbots wird eine Gebühr von mindestens EUR 420,- erhoben.
Einrichtung
Das Ferienhaus eignet sich für 6 Personen sowie 1 Kleinkind bis zu 3 Jahren. 2 der Schlafplätze eignen sich jedoch nur für größere Kinder (4-11 Jahre). Die Ferienunterkunft hat eine Wohnfläche von 53 m² und wurde 1967 gebaut. Haustiere dürfen nicht mitgebracht werden. Die Ferienunterkunft ist mit energiesparender Wärmepumpe ausgestattet. Tiefkühlmöglichkeit mit 10 Liter Nutzinhalt. Es gibt außerdem einen Kaminofen. Für die jüngsten Feriengäste ist 1 Kinderhochstuhl vorhanden.
Draußen
Die Ferienunterkunft liegt auf einem 805 m² großen Gartengrundstück. Die Entfernung zum Meer beträgt 100 m. Die nächste Einkaufsmöglichkeit liegt 4000 m entfernt. Es steht ein 15 m² Terrassenareal zur Verfügung. Außerdem gibt es 12 m² überdachte Terrasse. Schaukel. Sandkasten. Kinderspielhaus. Fußballtor.Lagerfeuerstelle. Es steht ein Carport zur Verfügung. Parkplatz auf dem Grundstück.
Schlafverhältnisse
Die Schlafplätze verteilen sich auf 2 Schlafräume. 2 Schlafplätze in einem Doppelbett. 4 Schlafplätze in Etagenbetten. 2 Schlafplätze auf einer Doppelschlafcouch. 2 von diesen Schlafplätzen befinden sich im Gästehaus und 2 befinden sich im Wohnzimmer. Ferner steht ein Kinderbett zur Verfügung.
Küche
Die Küche ist mit Kühlschrank ausgestattet. Außerdem gibt es 4 Keramik-Kochfelder, Umluftofen, Mikrowelle sowie Geschirrspüler.
WC und Bad
Es gibt 1 Badezimmer mit Duschnische und 1 Toilette., davon 1 Gästetoilette.
Multimedien
In der Ferienunterkunft gibt es einen Fernseher. Radio. Mindestens 4 dänische Fernsehsender. 1-3 deutsche Fernsehsender. Es steht kabellose Internetverbindung zur Verfügung.
Wissenswertes
Keine Vermietung an Jugendgruppen, in denen alle 15-25 Jahre sind. Rauchen ist nicht zugelassen. Bei Nichtbeachtung dieses Verbots wird eine Gebühr von mindestens EUR 420,- erhoben.
Ausstattung
-
Ausblick
-
Meerblick vom Ferienhaus
-
Meerblick vom Standort
-
-
Bitte beachten
-
Keine Jugendgruppen auf Anfrage
-
Rauchen ist verboten
-
-
Draußen
-
Carport
-
Feuerstelle
-
Fußballtor
-
Geschäft4 km
-
Größe des Grundstücks805 m²
-
Landschaftsgarten
-
Meer100 m
-
Parkplatz beim Haus
-
Sandkasten
-
Schwingen
-
Spielhaus
-
Terrasse15 m²
-
Überdachte Terrasse12 m²
-
-
Einrichtung
-
Anzahl der Kinder 4-11 Jahre2
-
Anzahl Erwachsene inkl. 4-11 Jahre6
-
Anzahl Kinder (0-3 Jahre)1
-
Baujahr1967
-
Bebaute Fläche53 m²
-
Ferienhaus
-
Gefrierkapazität (Anzahl Liter)10
-
Hochstuhl1
-
Holzofen1
-
Wärmepumpe
-
-
Küche
-
Anzahl der Keramikkochplatten4
-
Heißluftofen1
-
Kühlschrank1
-
Mikrowelle1
-
Spülmaschine1
-
-
Multimedien
-
> 3 dänische Sender
-
0-3 deutsche Sender
-
Anzahl der Fernseher1
-
Internet drahtlos
-
Radio
-
-
Schlafverhältnisse
-
Anhang (Anzahl der Schlafplätze)
-
Anzahl der Schlafzimmer2
-
Doppelbett (Anzahl der Schlafplätze)2
-
Etagenbett (Anzahl der Schlafplätze)4
-
Kinderbett1
-
Schlafmöglichkeit nicht im Schlafzimmer
-
Schlafsofa, Doppelbett (Anzahl der Schlafplätze)2
-
-
WC und Bad
-
Anzahl der Badezimmer1
-
Anzahl der Gästebäder1
-
Duschkabine
-
Toiletten1
-
-
Zugang zur Ferienunterkunft
-
Schlüsselkasten mit Code
-
Kurzurlaub
Es besteht eine begrenzte Möglichkeit das ganze Jahr einen Kurzurlaub zu machen, typischerweise ausserhalb der Hochsaison.
Preise und Kalender
Kalender
Dauer
Preis
Zeitraum
- Ankunft
- Abreise
- Dauer
- 1 Woche
Personen
Bis zu 6 Personen
Bitte beachten
Ankunftszeit wurde nicht ausgewählt.