Alternative Objekte
Großzügiges Ferienhaus mit Schwimmhalle in Tranekær
Ferienhaus - 16 Personen - Østerhusevej - Lohals - 5953 - Tranekär
16 Personen
Objekt Nr.: 121-75-6030
Großes Ferienhaus in Tranekær mit Schwimmhalle, Sauna und Dachterrasse, ideal für Familien und Gruppen nahe dem Strand.
- Schlafzimmer 6
- Badezimmer 3
- Wohnfläche 247 m²
- Grundstück 2.836 m²
- Haustiere Nicht erlaubt
- Kurzurlaub möglich Ja
- Entfernung Wasser 525 m
- Einkaufen 1.450 m
- Swimmingpool innen Ja
- Sauna Ja
- Internet Ja
- Satelliten-/Kabel TV Ja
- Kaminofen Ja
- Spiel- und Sportzimmer Ja
- Gute Angelmöglichkeiten Ja
- Waschmaschine Ja
- Trockner Ja
- Geschirrspüler Ja
- Nichtraucher Ja
- Klimafreundlich Ja
Beschreibung
Ein großes und gut ausgestattetes Ferienhaus mit eigener Schwimmhalle!
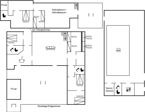
In der schönen Gegend Østerhuse östlich von Lohals auf Nordlangeland befindet sich dieses neu renovierte, große Ferienhaus. Das zweistöckige Haus verfügt im Erdgeschoss über mehrere Zimmer, wobei eines als großes Kinder-/Jugendzimmer mit zwei großen Etagenbetten, mit einem Doppelbett als unterste ”Koje”, eingerichtet ist. Darüber hinaus gibt es eine neue große Küche, ein großes Wohnzimmer und zwei Badezimmer.
Das Obergeschoss umfasst 2 Zimmer, eine Gästetoilette und einen Aktivitätsraum mit verschiedenen Aktivitäten. Von hier aus gelangt man auf eine große, schöne Dachterrasse mit luxuriösen Loungemöbeln, von wo aus man sowohl den Sonnenaufgang als auch den Sonnenuntergang sowie einen Blick auf das Wasser genießen kann.
Hinter dem Haus gibt es eine große Terrassenfläche und von dort aus gelangt man in den großen Garten, der unter anderem viele alte schöne Bäume, einen großen Lagerfeuerplatz, einen Spielturm mit Rutsche, Schaukeln, einen Sandkasten und viel Platz für Aktivitäten im Freien bietet.
Neben dem Haus befindet sich die große Schwimmhalle, in dem sich unter anderem der große Pool befindet. Beachte, daß der Pool in dem einen Ende 2,5 Meter tief ist und daher Kinder nicht unbeaufsichtigt gelassen werden dürfen. Die Schwimmhalle umfasst auch eine Sauna und ein Badezimmer.
Die gesamte Schwimmhalle wurde Anfang 2026 im Innenbereich vollständig renoviert, sodass nun alles ganz neu erscheint. Das Gebäude wurde außerdem umfassend energetisch optimiert, mit Dämmung im Boden und in den Außenwänden, neuen dreifach verglasten Energiescheiben und Türen, einem neuen Entfeuchter usw., weshalb der Energieverbrauch im Vergleich zu früher voraussichtlich deutlich reduziert ist.
Fußläufig vom Haus entfernt liegt ein schöner Badestrand, an dem in der Sommersaison ein Badesteg aufgestellt ist.
Beachte, dass eines der Zimmer im Erdgeschoss als Durchgangszimmer zum hinteren Zimmer dient.
Einrichtung
Dieser ehemalige Bauernhof eignet sich für 16 Personen sowie 2 Kleinkinder bis zu 3 Jahren. Die Ferienunterkunft hat eine Wohnfläche von 247 m² und wurde 1885 gebaut. 2023 wurde die Ferienunterkunft renoviert. Haustiere dürfen nicht mitgebracht werden. Die Ferienunterkunft ist mit 1 energiefreundlichen Luft-Wasser-Wärmepumpe ausgestattet. Die Ferienunterkunft ist mit Waschmaschine ausgestattet. Wäschetrockner. Tiefkühlmöglichkeit mit 100 Liter Nutzinhalt.Es gibt außerdem einen Kamin. Für die jüngsten Feriengäste sind 2 Kinderhochstühle vorhanden.
Draußen
Die Ferienunterkunft liegt auf einem 2836 m² großen Gartengrundstück. Die Entfernung zum Meer beträgt 525 m. Es gibt einen Badesteg in der Nähe. Die nächste Einkaufsmöglichkeit liegt 1450 m entfernt. Es steht ein offenes Terrassenareal zur Verfügung.Balkon im Obergeschoss. Schaukel. Sandkasten. Spielturm. Rutsche.Lagerfeuerstelle. Es stehen 2 Grill zur Verfügung. Parkplatz auf dem Grundstück.
Swimmingpool
Im Swimmingpool können sich Jung und Alt gemeinsam Vergnügen. Der Swimmingpool misst bis zu 5 m in der Breite, 10 m in der Länge und von 0,8 m bis 2,5 m in der Tiefe. Fußbodenheizung in der Swimmingpool-Abteilung.
Hobbyraum
Hobbyraum mit: Pooltisch. Dart. Tischfußball.
Schlafverhältnisse
Die Schlafplätze verteilen sich auf 6 Schlafräume. 6 Schlafplätze in Doppelbetten. 6 Schlafplätze in Einzelbetten. 4 Schlafplätze in Etagenbetten. Ferner stehen 2 Kinderbetten zur Verfügung.
Küche
Die Küche ist mit 2 Kühlschränke ausgestattet . Außerdem gibt es 5 Induktions-Kochzonen, 2 Umluftöfen, Mikrowelle sowie Geschirrspüler.
WC und Bad
Es gibt 3 Badezimmer mit Duschnische und 4 Toiletten. Fußbodenheizung in 2 Badezimmern. Es steht eine Sauna zur Verfügung in der Sie sich so richtig entspannen können.
Multimedien
In der Ferienunterkunft gibt es 3 Fernseher, davon 1 mit Smart-TV. 3 Chromecasts. Radio. Mindestens 4 dänische Fernsehsender. 1-3 schwedische Fernsehsender. 1-3 norwegische Fernsehsender. Mindestens 4 deutsche Fernsehsender. Es steht kabellose Internetverbindung zur Verfügung.
Wissenswertes
Keine Vermietung an Jugendgruppen, in denen alle 15-25 Jahre sind. Rauchen ist nicht zugelassen. Bei Nichtbeachtung dieses Verbots wird eine Gebühr von mindestens EUR 420,- erhoben.
Einrichtung
Dieser ehemalige Bauernhof eignet sich für 16 Personen sowie 2 Kleinkinder bis zu 3 Jahren. Die Ferienunterkunft hat eine Wohnfläche von 247 m² und wurde 1885 gebaut. 2023 wurde die Ferienunterkunft renoviert. Haustiere dürfen nicht mitgebracht werden. Die Ferienunterkunft ist mit 1 energiefreundlichen Luft-Wasser-Wärmepumpe ausgestattet. Die Ferienunterkunft ist mit Waschmaschine ausgestattet. Wäschetrockner. Tiefkühlmöglichkeit mit 100 Liter Nutzinhalt.Es gibt außerdem einen Kamin. Für die jüngsten Feriengäste sind 2 Kinderhochstühle vorhanden.
Draußen
Die Ferienunterkunft liegt auf einem 2836 m² großen Gartengrundstück. Die Entfernung zum Meer beträgt 525 m. Es gibt einen Badesteg in der Nähe. Die nächste Einkaufsmöglichkeit liegt 1450 m entfernt. Es steht ein offenes Terrassenareal zur Verfügung.Balkon im Obergeschoss. Schaukel. Sandkasten. Spielturm. Rutsche.Lagerfeuerstelle. Es stehen 2 Grill zur Verfügung. Parkplatz auf dem Grundstück.
Swimmingpool
Im Swimmingpool können sich Jung und Alt gemeinsam Vergnügen. Der Swimmingpool misst bis zu 5 m in der Breite, 10 m in der Länge und von 0,8 m bis 2,5 m in der Tiefe. Fußbodenheizung in der Swimmingpool-Abteilung.
Hobbyraum
Hobbyraum mit: Pooltisch. Dart. Tischfußball.
Schlafverhältnisse
Die Schlafplätze verteilen sich auf 6 Schlafräume. 6 Schlafplätze in Doppelbetten. 6 Schlafplätze in Einzelbetten. 4 Schlafplätze in Etagenbetten. Ferner stehen 2 Kinderbetten zur Verfügung.
Küche
Die Küche ist mit 2 Kühlschränke ausgestattet . Außerdem gibt es 5 Induktions-Kochzonen, 2 Umluftöfen, Mikrowelle sowie Geschirrspüler.
WC und Bad
Es gibt 3 Badezimmer mit Duschnische und 4 Toiletten. Fußbodenheizung in 2 Badezimmern. Es steht eine Sauna zur Verfügung in der Sie sich so richtig entspannen können.
Multimedien
In der Ferienunterkunft gibt es 3 Fernseher, davon 1 mit Smart-TV. 3 Chromecasts. Radio. Mindestens 4 dänische Fernsehsender. 1-3 schwedische Fernsehsender. 1-3 norwegische Fernsehsender. Mindestens 4 deutsche Fernsehsender. Es steht kabellose Internetverbindung zur Verfügung.
Wissenswertes
Keine Vermietung an Jugendgruppen, in denen alle 15-25 Jahre sind. Rauchen ist nicht zugelassen. Bei Nichtbeachtung dieses Verbots wird eine Gebühr von mindestens EUR 420,- erhoben.
Unsere Gästebewertungen Externe Bewertungen
Ausstattung
-
Bitte beachten
-
Aktivitätshaus
-
Anglerhaus
-
Keine Jugendgruppen auf Anfrage
-
Rauchen ist verboten
-
-
Details f. Anglerhäuser
-
Indoor-Tisch mit Schneidebrett
-
-
Draußen
-
Balkon
-
Feuerstelle
-
Geschäft1,5 km
-
Gleiten
-
Grill1
-
Größe des Grundstücks2836 m²
-
Holzsteg
-
Landschaftsgarten
-
Meer525 m
-
Parkplatz beim Haus
-
Sandkasten
-
Schwingen
-
Spielturm
-
Terrasse
-
-
Einrichtung
-
Anzahl Erwachsene inkl. 4-11 Jahre16
-
Anzahl Kinder (0-3 Jahre)2
-
Baujahr1885
-
Bebaute Fläche247 m²
-
Ehemaliger Bauernhof
-
Gefrierkapazität (Anzahl Liter)100
-
Hochstuhl2
-
Kamin1
-
Renovierung2023
-
Waschmaschine1
-
Wärmepumpe
-
Wärmepumpenluft zu Wasser
-
Wäschetrockner1
-
-
Hobbyraum
-
Billardtisch
-
Dart
-
Sportraum
-
Tischfussball
-
-
Küche
-
Anzahl der Induktionskochplatten5
-
Heißluftofen2
-
Kühlschrank2
-
Mikrowelle1
-
Spülmaschine1
-
-
Multimedien
-
> 3 deutsche Sender
-
> 3 dänische Sender
-
0-3 norwegische Kanäle
-
0-3 schwedische Kanäle
-
Anzahl der Fernseher3
-
Chromecast3
-
Internet drahtlos
-
Radio
-
Smart TV2
-
-
Schlafverhältnisse
-
Anzahl der Schlafzimmer6
-
Doppelbett (Anzahl der Schlafplätze)6
-
Einzelbett (Anzahl der Schlafplätze)6
-
Etagenbett (Anzahl der Schlafplätze)4
-
Kinderbett2
-
-
Swimmingpool
-
Fußbodenheizung
-
Hallenbad
-
Schwimmbadbreite5
-
Schwimmbadlänge10
-
Schwimmbadtiefe0,8
-
-
WC und Bad
-
Anzahl der Badezimmer3
-
Duschkabine
-
Fußbodenheizung2
-
Sauna
-
Toiletten4
-
-
Zugang zur Ferienunterkunft
-
Schlüsselkasten mit Code
-
Kurzurlaub
Es besteht eine begrenzte Möglichkeit das ganze Jahr einen Kurzurlaub zu machen, typischerweise ausserhalb der Hochsaison.
Preise und Kalender
Kalender
Dauer
Preis
Zeitraum
- Ankunft
- Abreise
- Dauer
- 1 Woche
Personen
Bis zu 16 Personen
Bitte beachten
Ankunftszeit wurde nicht ausgewählt.