Helles Ferienhaus nahe Strand und Stadt Løkken

Ferienhaus - 6 Personen - Søndergade 91 A lejl. - 9480 - Lökken

6 Personen
Objekt Nr.: 122-LK2139
7 Übernachtungen
Ab EUR 370,-
Inkl. Endreinigung und Versicherung
6 Personen
Helles und modernes Ferienhaus nahe Strand und Stadt Løkken mit Pool und Kaminofen für entspannte Urlaubstage.
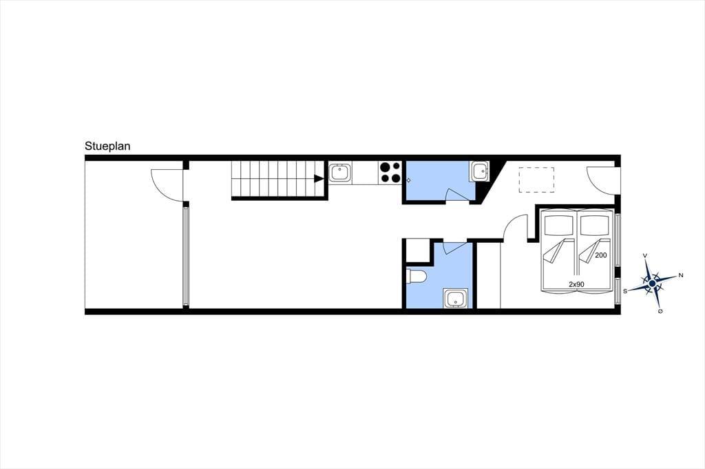
  • Schlafzimmer 3
  • Badezimmer 1
  • Wohnfläche 62 m²
  • Grundstück 200 m²
  • Haustiere 1
  • Kurzurlaub möglich Ja
  • Entfernung Wasser 600 m
  • Einkaufen 610 m
  • Swimmingpool aussen Ja
  • Internet Ja
  • Kaminofen Ja
  • Klimaanlage Ja
  • Geschirrspüler Ja
  • Nichtraucher Ja
  • Klimafreundlich Ja

Beschreibung

Suchen Sie nach einem Ferienhaus, in das viel Licht strömt und das Ihnen die Möglichkeit bietet, sich in einer schönen Umgebung zu entspannen? Dann ist dieses Haus in Løkken Strandgaard die perfekte Wahl. Mit seiner fantastischen Lage, in der Nähe sowohl der gemütlichen Stadt als auch des breiten Sandstrandes, ist dieses Ferienhaus ideal für Entspannung und Aktivitäten.

Willkommen in deinem Ferienhaus
Wenn du dieses helle und einladende Ferienhaus betrittst, wirst du von einem offenen und geräumigen Wohnbereich empfangen, der sowohl zum Entspannen als auch zum gemeinsamen Beisammensein einlädt. Die Küche ist offen und modern, und hier kannst du Mahlzeiten zubereiten, während du gleichzeitig an Gesprächen im Wohnzimmer teilnimmst. Die großen Fenster bieten einen fantastischen Lichteinfall und schaffen eine angenehme, helle Atmosphäre den ganzen Tag über. Im Wohnzimmer kannst du vor dem Kaminofen entspannen, der die perfekte Stimmung für einen gemütlichen Abend schafft. Das Ferienhaus bietet drei schöne Schlafzimmer, die zum Ausruhen und Entspannen einladen, und mit einem Badezimmer sowie einem zusätzlichen WC ist ausreichend Platz für die ganze Familie.

Genieße das Leben im Freien
Draußen gibt es viele Möglichkeiten, die milden Sommertage zu genießen. Das Ferienhaus ist Teil eines Gebiets mit einem großen gemeinsamen Pool, in dem sowohl Erwachsene als auch Kinder ein erfrischendes Bad nehmen oder die Sonne rund um den Pool genießen können. Es gibt auch viele Gelegenheiten, einen Spaziergang am Strand zu machen, der nur wenige Gehminuten vom Ferienhaus entfernt ist. Mit der charmanten Stadt Løkken in der Nähe gibt es zahlreiche Möglichkeiten, Zeit im Freien zu verbringen, sei es beim Einkaufen in den lokalen Geschäften, beim Genießen eines Cafébesuchs im Sonnenschein oder bei einem langen Spaziergang entlang der schönen Küste.

Entdecke deine Umgebung
Løkken bietet viele Erlebnisse, sowohl für Wasserfreunde als auch für diejenigen, die die lokale Kultur erleben möchten. Die Strände sind bekannt für ihre weiten Sandflächen und bieten perfekte Bedingungen sowohl zum Entspannen als auch für Wassersportarten. Mache einen Spaziergang am Wasser entlang, genieße den Ausblick auf die beeindruckenden Dünen oder sei mutig und wage einen Sprung in das frische Nordsee-Wasser. Løkken ist auch Heimat vieler gemütlicher Geschäfte und Restaurants, in denen du dich mit einem Abendessen oder einem Drink mit Blick auf das Meer verwöhnen lassen kannst. Wenn du Natur und Abenteuer liebst, kannst du die schönen Umgebungen der Region erkunden – darunter die Rubjerg Knude, die einen beeindruckenden Ausblick bietet.

Vergiss nicht, dass du bei uns von Løkken immer Handwagen, Kinderstühle und Kinderbetten ausleihen kannst. Du kannst sie direkt bei uns im Büro abholen und nach deinem Urlaub wieder zurückbringen.

Ausstattung

  • Hausinfo.

    • Anzahl Erw.
      6
    • Anzahl Haustiere
      1
    • Aussen Pool
      Es gibt einen überdachten, unbeheizten Pool, der von Ostern bis etwa Woche 42 zur Verfügung steht.
    • Baujahr
      1976
    • Dusche
    • Grundstücksgröße
      200 m²
    • Hausareal
      62 m²
    • Renovierungsjahr
      2015
    • WC
  • Entfernungen

    • Entfernung Einkauf / Ganzjahresgeschäft
      610 m
    • Entfernung Restaurant
      650 m
    • Entfernung Strand
      600 m
    • Entfernung zum Golfplatz
      1,9 km
  • Energie/Heizung

    • Elektroheizung
    • Kaminofen
    • Wärmepumpe / Mit Kühlung
  • Küchengeräte

    • Abzugshaube
    • Backofen
    • Herd
    • Kaffeemaschine
    • Kühlschrank m/Gefrierfach
      170/18L
    • Spülmaschine
    • Wasserkocher
  • Multimedien

    • Chromecast
    • TV
    • WI-FI
  • Extra

    • Golf-Urlaub
  • Draußen

    • Gartenmöbel
    • Gemeinsamer Parkplatz
    • Grill
      Kohle
    • Liegestühle
      2
    • Sonnenschirm
      1
    • Terrasse
  • Diverse

    • 2 x Etagenbett 2x90x200
    • 4 x Fußbodenheizung
    • Doppelbett 2x90x200
  • Regeln

    • Aufladung von Elektroautos nicht erlaubt
    • Haustiere: alle Arten erlaubt
    • Rauchen verboten
  • Preis inbegriffen

    • Endreinigung inkl.
    • Wasser inkl.

Kurzurlaub

Es besteht eine begrenzte Möglichkeit das ganze Jahr einen Kurzurlaub zu machen, typischerweise ausserhalb der Hochsaison.

Preise und Kalender

Kalender

Ankunft
Vorheriger Monat Nächster Monat
   Verfügbarkeit am ausgewählten Datum prüfen
Frei
Nicht frei
   Ankunft möglich
Dauer
Personen

Preis

Zeitraum
Ankunft
Abreise
Dauer
1 Woche
Personen
Keine Personen ausgewählt

Bitte beachten

Ankunftszeit wurde nicht ausgewählt.
Es wurden keine Personen ausgewählt.
Vertrags- und Mietbedingungen