Modernes Ferienhaus mit Garten und Strandnähe

Ferienhaus - 6 Personen - Stenten 3 B - Gedesby - 4874 - Gedser

6 Personen
Objekt Nr.: 103-M294
Modernes Ferienhaus in Gedesby mit Terrasse, Garten und Elektroauto-Ladestation, nur 500 m vom Strand entfernt.
  • Schlafzimmer 3
  • Badezimmer 1
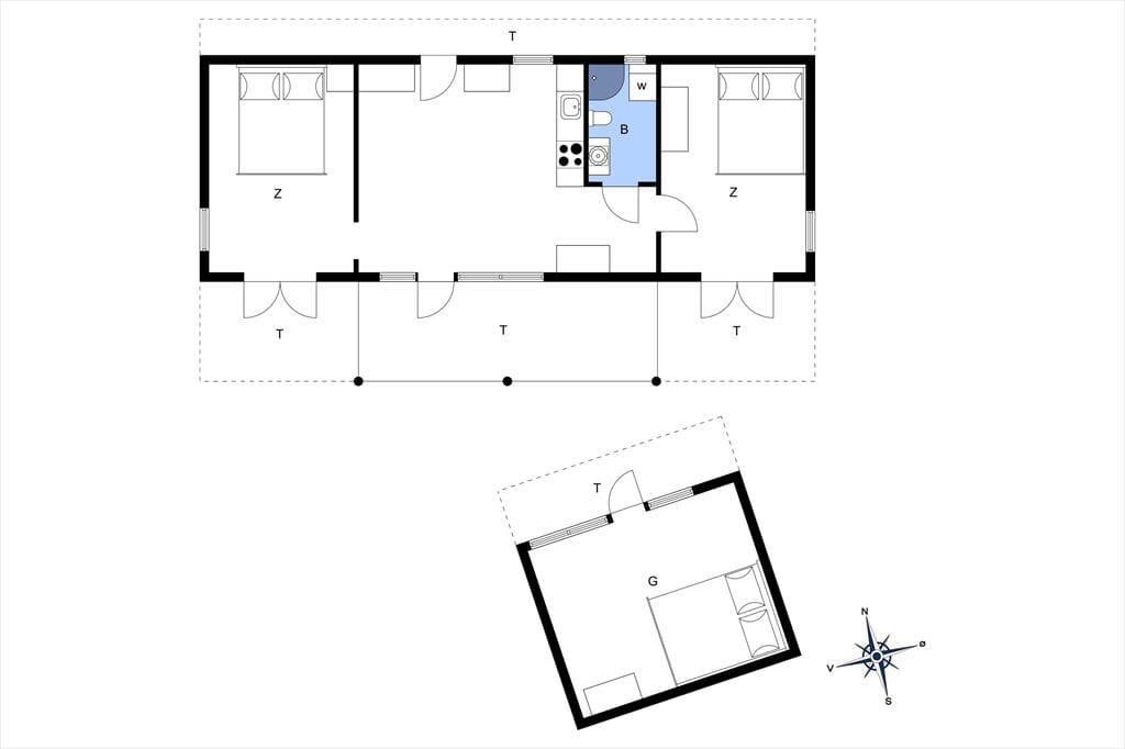
  • Wohnfläche 50 m²
  • Grundstück 1.627 m²
  • Haustiere 1
  • Kurzurlaub möglich Ja
  • Entfernung Wasser 500 m
  • Einkaufen 4 km
  • Highspeed Internet Ja
  • Klimaanlage Ja
  • Waschmaschine Ja
  • Geschirrspüler Ja
  • Nichtraucher Ja
  • Ladestation für Elektroauto Ja
  • Klimafreundlich Ja

Beschreibung

Einrichtung
Ein gut eingerichtetes Ferienhaus aus dem Jahr 2022 mit 50 m², in gutem und gemütlichem Holzstil, das eine gute Wohnküche mit einem Sofabereich auf der einen Seite, einem Essbereich in der Mitte und der Küche auf der anderen Seite bietet . Darüber hinaus gibt es ein schönes Badezimmer und zwei gute Schlafzimmer, die sich an gegenüberliegenden Enden des Hauses befinden und beide direkten Zugang zur Terrasse haben.

Von der Wohn-/Essküche aus gelangt man auch auf die schöne Holzterrasse, die teilweise überdacht ist, sodass sie bei jedem Wetter genutzt werden kann.

Von der Terrasse aus ist es nur ein kurzer Spaziergang durch den Garten zum Nebengebäude/Studio der Unterkunft, das über ein gutes Schlafsofa und Stauraum sowie einen Schreibtisch zum ungestörten Arbeiten verfügt.

Außenbereich
Im Außenbereich bietet das Anwesen eine schöne Holzterrasse, einen großen Garten mit Naturgrundstück und einen Carport für das Auto, wo es auch eine Ladestation für das Elektroauto gibt.

Lage
Mit einer guten Lage im Zentrum von Gedesby und nur einem kurzen Spaziergang von etwa 500 Metern vom schönen Badestrand entfernt.


Raumaufteilung

  • Schlafzimmer
    • Doppelbett
  • Schlafzimmer
    • Doppelbett

Unsere Gästebewertungen Externe Bewertungen

4,0
Bezogen auf 2 Bewertungen
Letzte Bewertung ist vom 04.05.2024
5
(0)
4
(2)
3
(0)
2
(0)
1
(0)
Kommentare
1 Bewertung hat einen Kommentar auf Deutsch.
3 Erwachsene 0 Kinder 1 Haustier 9 Übernachtungen 2024 März
Klein aber fein. Für 4 Personen schon eine Herausforderung aber für 6 Personen- no way. Wenn dann im Sommer wenn sich alle draußen aufhalten können. Aber bei schlechtem Wetter , nein! Alles sehr einfach und geschmackvoll. Alles da was man benötigt. Ich fände es noch gut wenn man an die Eingangstür und dem großen Küchenfenster einen Rollo installieren würde denn man sitzt schon sehr auf dem Präsentierteller.

Ausstattung

  • Hausinfo.

    • Annexgrösse
      20 m²
    • Anzahl Erw.
      6
    • Anzahl Haustiere
      1
    • Baujahr
      2022
    • Dusche
    • Grundstück / Naturgrund
      1627 m²
    • Hausareal
      50 m²
    • WC
  • Entfernungen

    • Entfernung Einkauf / Ganzjahresgeschäft
      4 km
    • Entfernung Strand / Sandstrand
      500 m
  • Energie/Heizung

    • Wärmepumpe / Mit Kühlung
  • Küchengeräte

    • Abzugshaube
    • Backofen
    • Kaffeemaschine
    • Kochplatten
    • Kühlschrank m/Gefrierfach
    • Spülmaschine
    • Waschmaschine
    • Wasserkocher
  • Multimedien

    • Deutsche Kanäle
    • Dän. TV
    • Gratis Wi-Fi - Über 20 Mbit
    • Norw. TV
    • Schwedisches TV
    • TV
  • Draußen

    • Carport
    • Gartenmöbel
    • Grill
    • Liegestühle
    • Parken auf dem Grundstück
    • Terrasse
  • Diverse

    • Doppel-Schlafsofa
  • Regeln

    • Aufladen des Elektroautos erlaubt / Ladegerät für Elektroauto verfügbar (Typ 2 Stecker, inkl. Kabel)
    • Rauchen verboten
  • Preis inbegriffen

    • Endreinigung inkl.

Kurzurlaub

Sie haben das ganze Jahr die Möglichkeit einen Kurzurlaub zu machen.

Preise und Kalender

Kalender

Ankunft
Vorheriger Monat Nächster Monat
   Verfügbarkeit am ausgewählten Datum prüfen
Frei
Nicht frei
   Ankunft möglich
Dauer

Preis

Zeitraum
Ankunft
Abreise
Dauer
1 Woche
Personen
Bis zu 6 Personen

Bitte beachten

Ankunftszeit wurde nicht ausgewählt.
Vertrags- und Mietbedingungen