Gemütliches Blockhaus nahe Dyngby Strand

Ferienhaus - 5 Personen - Engagervej - Dyngby - 8300 - Odder

5 Personen
Objekt Nr.: 014-30569
Gemütliches Holzferienhaus nahe Dyngby Strand mit Terrasse, Kaminofen und Spielmöglichkeiten für Kinder.
  • Schlafzimmer 3
  • Badezimmer 1
  • Wohnfläche 71 m²
  • Grundstück 820 m²
  • Haustiere Nicht erlaubt
  • Kurzurlaub möglich Ja
  • Entfernung Wasser 300 m
  • Einkaufen 4.500 m
  • Highspeed Internet Ja
  • Kaminofen Ja
  • Eingezäunter Bereich Ja
  • Waschmaschine Ja
  • Geschirrspüler Ja
  • Nichtraucher Ja
  • Ladestation für Elektroauto Ja
  • Klimafreundlich Ja

Beschreibung

Dieses ansprechende, nur 300 Meter vom Strand entfernt gelegene Blockhaus, ist der Inbegriff von Gemütlichkeit. Es eignet sich sehr gut für Familien, da unter anderem ein Kinderbett, eine Schaukel und eine Sandkiste zur Verfügung stehen.

Einrichtung
Das Urlaubsdomizil wurde ausschließlich aus Holz erbaut und besticht daher mit einer überaus gemütlichen Atmosphäre. Gleichzeitig präsentiert es sich angenehm hell und einladend. Das Herzstück des Hauses ist der Wohnraum, der einen Esstisch mit Platz für alle Mitreisenden sowie ein Sofa und Lehnstühle beinhaltet. In diesem Raum genießen Sie wertvolle gemeinsame Stunden beim Essen, und während geselliger Spieleabende.

Zusätzlich zu dem TV-Abo im Haus ist es möglich eigene TV- und Streamingdienste über den Chromecast des Hauses und Ihr eigenes Tablet/Smartphone zu verfolgen.

Ein Maximum an echter dänischer Ferienhausgemütlichkeit garantiert der Kaminofen, der durch eine Wärmepumpe und Elektroheizkörper unterstützt wird. Die Fenster offenbaren einen schönen Ausblick in den Garten. Durch Terrassentüren treten Sie von Wohnraum und Essbereich hinaus auf die überdachte Terrasse. Vom Wohnraum gelangen Sie in die kleine aber feine Ferienhausküche, die alles bietet, was Sie für die Zubereitung Ihrer Mahlzeiten benötigen. Unter anderem stehen ein Geschirrspüler, ein Backofen, ein Herd und eine Kaffeemaschine für Sie bereit. Das Küchenfenster verwöhnt mit Licht und einem Ausblick ins Grüne.

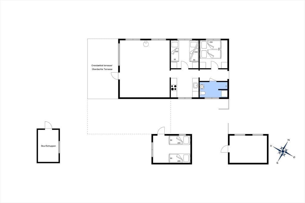
Prägend sind in diesem Haus die weißen Türrahmen, Fenster und Schränke, die dem gemütlichen, klassischen Blockhaus eine helle, moderne Ausstrahlung verleihen. Über einen kleinen Flur betreten Sie die beiden Schlafzimmer und das Badezimmer. Einer der Schlafräume beinhaltet ein Einzelbett und ein Etagenbett, einen Schrank und ein Fenster, das dem gemütlichen Raum einen guten Tageslichteinfall verleiht. Der danebenliegende zweite Schlafraum ist mit einem Doppelbett und ausreichend Schrankfläche versehen. Gegenüber der Schlafräume befindet sich das Badezimmer mit einem WC und einer Dusche. Es verfügt über einen gefliesten Boden mit einer Fußbodenheizung. Das Badezimmer ist gut und funktionell. Im Freien treffen Sie auf ein im Jahr 2023 renoviertes, helles Nebengebäude mit zwei zusätzlichen, guten Schlafplätzen. Das Nebengebäude ist über die Terrasse mit dem Haupthaus verbunden. Es wird mit einem Elektroheizkörper beheizt.

Insgesamt eignet sich dieses Urlaubsdomizil bestens für eine Familie mit Kindern, da es ein Kinderbett, einen Hochstuhl und schöne Spielmöglichkeiten im Freien bietet.

Außenbereich
Das Urlaubsdomizil befindet sich in einem schön geschlossenen Garten, der von Büschen und Bäumen eingerahmt ist. Auf dem Grundstück halten Sie sich angenehm ungestört auf. Die große Rasenfläche bietet gute Möglichkeiten zum Ballspielen und Umhertollen. Mit einer Sandkiste und einem Schaukel- und Klettergerüst eignet sich der Garten sehr gut für eine Familie mit Kindern. In den ansprechenden Hochbeeten gedeihen in der Saison Blumen und Kräuter. Zum Haus gehört eine große Holzterrasse, die direkt vom Wohnraum zugänglich ist. Sie ist unmittelbar vor dem Wohnraum überdacht und mit komfortablen Korbmöbeln versehen. Mit Blick auf den Garten werden Sie sich hier bestens entspannen. Bei schönem Wetter können Sie am Gartentisch die ein oder andere Mahlzeit im Freien genießen. Die Terrasse erstreckt sich weiter entlang der Südseite des Ferienhauses, wo Sie auf einen kleinen geschlossenen und windgeschützten Innenhof mit einem Grill treffen. Die Holzterrasse verbindet das Ferienhaus mit dem Nebengebäude, in dem zwei Schlafplätze zur Verfügung stehen.
Es gibt einen Fußweg direkt vom Haus zum Strand.

Laden von Elektroautos erlaubt. Ladegerät vorhanden, Typ 2 Stecker, inklusive Kabel.

Lage
Dyngby Strand ist ein ansprechendes Ferienhausgebiet an Jütlands Ostküste, das einen schönen, kinderfreundlichen Sandstrand sein Eigen nennt. Ein Kiosk und sanitäre Einrichtungen sind am Dyngby Strand nicht vorhanden. Dafür geht es hier überaus friedvoll zu und Sie dürfen sich auf hochqualitatives Badewasser freuen. Nach wenigen Kilometern erreichen Sie den populären Saksild Strand mit Eisläden, einem Kiosk, einem Restaurant und einer Minigolfanlage. Entlang der Ostküste treffen Sie auf zahlreiche schöne Sandstrände mit ruhigem Wasser, wodurch sich die dieser Teil Jütlands hervorragend für einen Badeurlaub mit Kindern eignet. Ans Herz legen möchten wir Ihnen einen Besuch bei Fru Møllers Mølleri - einem rund fünf Kilometer entfernten landwirtschaftlichen Betrieb mit einem grandiosen Hofladen, einer Schlachterei, einer Meierei, einer Eismanufaktur, einem Restaurant und vielem mehr. Ihre Kinder dürfen sich auf Kühe, Schweine, Hühner und dergleichen freuen.

Rund eine Viertelstunde Fahrzeit trennt Sie von der lebendigen Kleinstadt Odder, die mit sehr guten Einkaufsmöglichkeiten zu glänzen weiß. In der beschaulichen Fußgängerzone reihen sich kleine Geschäfte und Cafés aneinander. Odder bietet darüber hinaus eine Schwimmhalle, ein Bowlingcenter und ein Museum.

Nördlich von Dyngby liegt Norsminde. Im malerischen Hafenort treffen Sie unter anderem aus den renommierten Landgasthof Norsminde Kro, der Ihren Gaumen mit kulinarischen Hochgenüssen verwöhnt. Die rund 30 Kilometern entfernte Großstadt Aarhus bietet neben bestem Shoppingvergnügen zahllose Restaurants und Cafés sowie beeindruckende Sehenswürdigkeiten wie das Freilichtmuseum "Den Gamle By" und das ARoS Kunstmuseum.


Raumaufteilung

  • Schlafzimmer
    • Einzelbett - 90 x 200
    • Einzelbett - 90 x 200
  • Schlafzimmer
    • Einzelbett - 80 x 200
    • Etagenbett - 2 x 90 x 200
  • Schlafzimmer
    • Doppelbett - 180 x 200

Unsere Gästebewertungen Externe Bewertungen

5,0
Bezogen auf 1 Bewertung
Bewertung ist vom 17.08.2025
5
(1)
4
(0)
3
(0)
2
(0)
1
(0)
Kommentare
1 Bewertung hat einen Kommentar auf Deutsch.
2 Erwachsene 2 Kinder 0 Haustiere 7 Übernachtungen 2025 August
Sehr gemütlich und urig

Ausstattung

  • Hausinfo.

    • Anzahl Erw.
      5
    • Anzahl Etagen
      1
    • Baujahr
      1980
    • Dusche
    • Grundstücksgröße
      820 m²
    • Hausareal
      71 m²
    • Renovierungsjahr
      2025
    • Teilw. renoviert im Jahr
      1992
    • WC
  • Entfernungen

    • Entfernung Bus
      4,5 km
    • Entfernung Einkauf / Ganzjahresgeschäft
      4,5 km
    • Entfernung Küste
      300 m
    • Entfernung Meer
      300 m
    • Entfernung Restaurant
      4,5 km
    • Entfernung Schwimmhalle
      9 km
    • Entfernung Strand / Sandstrand
      300 m
    • Entfernung zum Golfplatz
      13 km
  • Energie/Heizung

    • 3 x Elektroheizung
    • Kaminofen
    • Wärmepumpe
  • Küchengeräte

    • Abzugshaube
    • Backofen
    • Kaffeemaschine
    • Kochplatten
    • Kühlschrank
    • Kühlschrank m/Gefrierfach
    • Mikrowelle
    • Spülmaschine
    • Waschmaschine
    • Wasserkocher
  • Multimedien

    • Chromecast
      TV-Paket + eigene TV- und Streaming-Dienste über den Chromecast des Hauses
    • Deutsche Kanäle
      Min.: ZDF, ARD
    • Dän. TV
      Min .: DR freie Kanäle, TV2
    • Kostenloses WLAN - mehr als 100 Mbit
    • Norw. TV
      Min.: NRK1
    • Schwedisches TV
      Min.: SVT1
    • TV
  • Extra

    • Hochstuhl
  • Draußen

    • Dusche im Freien
      Außendusche gibt es nur mit kaltem Wasser
    • Gartenmöbel
    • geschlossener Garten/Grund
    • Grill
      Gasgrill
    • Lagerfeuerplatz
    • Liegestühle
      2
    • Offene Terrasse
    • Parken auf dem Grundstück
    • Sandkiste
    • Schaukel
    • Sonnenschirm
      1
    • Überdachte Terrasse
  • Diverse

    • 6 x Holz-/Parkettboden
    • Fliessen-/Plattenboden
    • Fußbodenheizung
  • Regeln

    • Aufladen des Elektroautos erlaubt / Ladegerät für Elektroauto verfügbar (Typ 2 Stecker, inkl. Kabel)
    • HAUSTIER NICHT ERLAUBT
    • Rauchen verboten
  • Preis inbegriffen

    • Endreinigung inkl.
  • ALT

    • 2 x Vinyl-/Linoleum-/Laminat-/Korkboden

Kurzurlaub

Es besteht eine begrenzte Möglichkeit das ganze Jahr einen Kurzurlaub zu machen, typischerweise ausserhalb der Hochsaison.

Preise und Kalender

Kalender

Ankunft
Vorheriger Monat Nächster Monat
   Verfügbarkeit am ausgewählten Datum prüfen
Frei
Nicht frei
   Ankunft möglich
Dauer
Personen

Preis

Zeitraum
Ankunft
Abreise
Dauer
1 Woche
Personen
Keine Personen ausgewählt

Bitte beachten

Ankunftszeit wurde nicht ausgewählt.
Es wurden keine Personen ausgewählt.
Vertrags- und Mietbedingungen