Gemütliches Ferienhaus mit Sauna nahe Strand

Ferienhaus - 5 Personen - Skovløbervej - Bisserup - 4243 - Rude

5 Personen
Objekt Nr.: 042-SL360
Gemütliches Ferienhaus in Bisserup mit Sauna, Kamin und nur 300 m zum Strand.
  • Schlafzimmer 2
  • Badezimmer 1
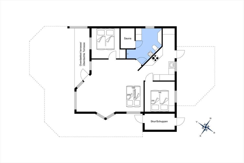
  • Wohnfläche 80 m²
  • Grundstück 1.110 m²
  • Haustiere Nicht erlaubt
  • Kurzurlaub möglich Ja
  • Entfernung Wasser 300 m
  • Einkaufen 2.200 m
  • Sauna Ja
  • Highspeed Internet Ja
  • Kaminofen Ja
  • Klimaanlage Ja
  • Waschmaschine Ja
  • Geschirrspüler Ja
  • Nichtraucher Ja
  • Klimafreundlich Ja

Beschreibung

Ferienhaus in Bisserup, Südwestseeland, mit Platz für 5 Erwachsene. Es erwartet Sie eine gemütliche Einrichtung mit u.a. Kamin, darüber hinaus sind Waschmaschine und Spülmaschine in dieser Unterkunft vorhanden.
Wenn Sie diese Ferienunterkunft mieten, stehen Ihnen Sauna und Internet zur Verfügung. Es sind 300 Meter bis zum nächsten Strand und 2.200 Meter bis zur nächsten Einkaufsmöglichkeit.
Diese Unterkunft hat eine Fläche von 80 m² und befindet sich auf einem 1.110 m² Grundstück.

Raumaufteilung

  • Schlafzimmer
    • Doppelbett
  • Schlafzimmer
    • Doppelbett

Ausstattung

  • Hausinfo.

    • Anzahl Erw.
      5
    • Baujahr
      2005
    • Dusche
    • Grundstück / Gartengrund
      1110 m²
    • Hausareal
      80 m²
    • Naturblick
    • Sauna
    • WC
  • Entfernungen

    • Entfernung Einkauf / Ganzjahresgeschäft
      2,2 km
    • Entfernung Küste
      300 m
    • Entfernung Restaurant
      2,9 km
    • Entfernung Schwimmhalle
      22,4 km
    • Entfernung Strand
      300 m
    • Entfernung zum Golfplatz
      17,2 km
  • Energie/Heizung

    • 2 x Elektroheizung
    • Kaminofen
    • Wärmepumpe / Mit Kühlung
  • Küchengeräte

    • Abzugshaube
    • Backofen
    • Kaffeemaschine
    • Kochplatten
    • Kühlschrank m/Gefrierfach
    • Mikrowelle
    • Spülmaschine
    • Waschmaschine
    • Wasserkocher
  • Multimedien

    • Apple TV
      Mit kostenlos Zugang zur Norlys Play App(für andere Stream-Dienste ist eine sep Anmeld erforderlich)
    • Deutsche Kanäle
      NDR, ZDF und ARD über die Norlys Play App
    • Dän. TV
    • Gratis Wi-Fi - Über 20 Mbit
    • Norw. TV
      NRK1, TV2 Norwegen
    • Schwedisches TV
      SVT1, SVT2, TV4 Schweden
    • TV
  • Draußen

    • Gartenmöbel
    • Grill
    • Parken auf dem Grundstück
    • Teilw. überdachte Terrasse
    • Terrasse
  • Diverse

    • 2 x Fliesenboden
    • 5 x Holz-/Parkettboden
    • Doppel-Schlafsofa
    • Fußbodenheizung
    • Offene Küche
  • Regeln

    • Aufladung von Elektroautos nicht erlaubt
    • HAUSTIER NICHT ERLAUBT
    • Rauchen verboten
  • Preis inbegriffen

    • Endreinigung inkl.
    • Wasser inkl.

Kurzurlaub

Sie haben das ganze Jahr die Möglichkeit einen Kurzurlaub zu machen.

Preise und Kalender

Kalender

Ankunft
Nächster Monat
   Verfügbarkeit am ausgewählten Datum prüfen
Frei
Nicht frei
   Ankunft möglich
Dauer

Preis

Zeitraum
Ankunft
Abreise
Dauer
1 Woche
Personen
Bis zu 5 Personen

Bitte beachten

Ankunftszeit wurde nicht ausgewählt.
Vertrags- und Mietbedingungen