Gemütliches Ferienhaus mit Meerblick und großer Terrasse

Ferienhaus - 4 Personen - Oluf Ravns Vej - Binderup - 6091 - Bjert

4 Personen
Objekt Nr.: 555-SJ279
7 Übernachtungen
Ab EUR 475,-
Inkl. Endreinigung
4 Personen
Dieses gemütliche Ferienhaus in Binderup Strand bietet Meerblick, eine große Terrasse und moderne Ausstattung für entspannte Urlaubstage.
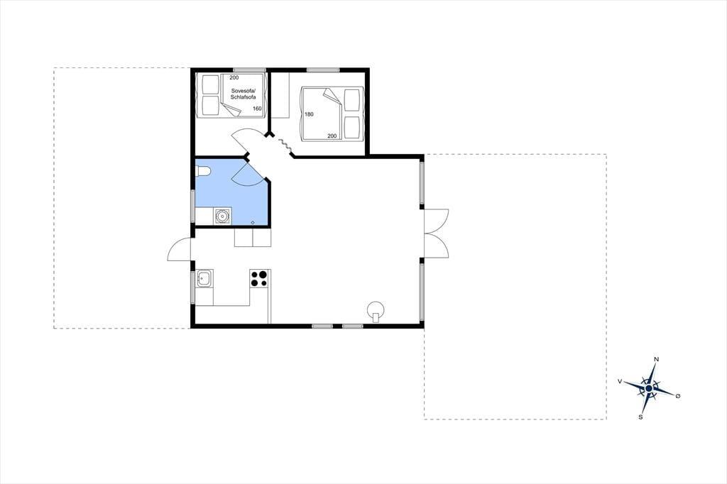
  • Schlafzimmer 2
  • Badezimmer 1
  • Wohnfläche 56 m²
  • Grundstück 475 m²
  • Haustiere Nicht erlaubt
  • Kurzurlaub möglich Ja
  • Entfernung Wasser 200 m
  • Einkaufen 6.900 m
  • Highspeed Internet Ja
  • Kaminofen Ja
  • Wasserblick Ja
  • Klimaanlage Ja
  • Waschmaschine Ja
  • Geschirrspüler Ja
  • Nichtraucher Ja
  • Klimafreundlich Ja

Beschreibung

Träumst du von einem Urlaub in malerischer Umgebung mit dem Meer in Sichtweite? Dieses Ferienhaus in der Oluf Ravns Vej 29 am Binderup Strand bietet eine großartige Lage und eine große Terrasse auf mehreren Ebenen, die zu gemütlichen Stunden im Freien einlädt. Hier findest du ein Urlaubsparadies, das sowohl Erholung als auch Aktivitäten in den Mittelpunkt stellt.

Willkommen in deinem Ferienhaus

Das Ferienhaus empfängt dich mit einer hellen und einladenden Atmosphäre, in der große Fensterfronten für einen schönen Lichteinfall und einen herrlichen Blick aufs Meer sorgen. Der offene Wohn- und Küchenbereich schafft eine entspannte und großzügige Atmosphäre, und mit der Küche direkt verbunden mit dem Wohnzimmer ist alles für gesellige Momente mit der Familie vorbereitet – sei es beim Kochen oder beim gemeinsamen Essen. Die einfache, nordische Einrichtung mit modernen Details sorgt dafür, dass du dich sofort wie zu Hause fühlst.

Genieße das Leben im Freien

Das Leben draußen spielt sich auf der großen Terrasse ab, die in mehreren Ebenen gestaltet ist und verschiedene Ecken für Entspannung und Geselligkeit bietet. Hier kannst du den Tag mit einer Tasse Kaffee beginnen, während du den Blick aufs Meer genießt, und am Abend bietet die Terrasse die perfekte Kulisse für gemütliche Grillabende unter freiem Himmel. Mit der ruhigen Umgebung in einer kleinen, geschlossenen Straße und einem grünen Hintergrund gibt es sowohl Platz für Spiel als auch für Erholung. Die Gegend rund um das Ferienhaus lädt zu langen Spaziergängen ein, bei denen du die frische Luft und die schöne Natur genießen kannst.

Entdecke deine Umgebung

Binderup Strand und die umliegende Gegend bieten zahlreiche Naturerlebnisse und spannende Ausflugsziele. Der Strand eignet sich perfekt zum Baden, Spielen und Entspannen, und die nahegelegenen Wanderwege bieten Möglichkeiten für Radtouren und Spaziergänge entlang der Küste. In der Nähe findest du auch charmante Attraktionen wie das Koldinghus, die UNESCO-Weltkulturerbestätten von Christiansfeld und die historische Umgebung der Skamlingsbanke. Für alle, die gerne shoppen und Cafés besuchen, ist Kolding ein tolles Ziel, während die kleinen örtlichen Dörfer mit gemütlichen Hofläden und authentischen Erlebnissen locken.


Raumaufteilung

  • Schlafzimmer
    • Doppelbett - 180x200

Ausstattung

  • Hausinfo.

    • Anzahl Erw.
      4
    • Baujahr
      2000
    • Dusche
    • Grundstück / Gartengrund
      475 m²
    • Hausareal
      56 m²
    • Meerblick
    • Renovierungsjahr
      2021
    • WC
  • Entfernungen

    • Entfernung Einkauf / Ganzjahresgeschäft
      6,9 km
    • Entfernung Restaurant
      700 m
    • Entfernung Strand / Sandstrand
      200 m
    • Entfernung zum Golfplatz
      17 km
  • Energie/Heizung

    • Kaminofen
    • Wärmepumpe / Mit Kühlung
  • Küchengeräte

    • Abzugshaube
    • Herd
    • Kaffeemaschine
    • Kühlschrank m/Gefrierfach
      Kühlschrank 165 L, Gefrierschrank 42 L
    • Mikrowelle
    • Spülmaschine
    • Waschmaschine
    • Wasserkocher
  • Multimedien

    • Gratis Wi-Fi - Über 20 Mbit
    • TV
  • Draußen

    • Gartenmöbel
    • Grill
    • Liegestühle
      2
    • Offene Terrasse
      60 m²
    • Parken auf dem Grundstück
    • Sonnenschirm
  • Diverse

    • Doppel-Schlafsofa
      160x200
  • Regeln

    • Aufladung von Elektroautos nicht erlaubt
    • HAUSTIER NICHT ERLAUBT
    • Rauchen verboten
  • Preis inbegriffen

    • Endreinigung inkl.
    • Wasser inkl.

Kurzurlaub

Es besteht eine begrenzte Möglichkeit das ganze Jahr einen Kurzurlaub zu machen, typischerweise ausserhalb der Hochsaison.

Preise und Kalender

Kalender

Ankunft
Nächster Monat
  • April 2026
    MoDiMiDoFrSaSo
    1412345
    156789101112
    1613141516171819
    1720212223242526
    1827282930
    19
  • Mai 2026
    MoDiMiDoFrSaSo
    18123
    1945678910
    2011121314151617
    2118192021222324
    2225262728293031
    23
   Verfügbarkeit am ausgewählten Datum prüfen
Frei
Nicht frei
   Ankunft möglich
Dauer
Personen

Preis

Zeitraum
Ankunft
Abreise
Dauer
1 Woche
Personen
Keine Personen ausgewählt

Bitte beachten

Ankunftszeit wurde nicht ausgewählt.
Es wurden keine Personen ausgewählt.
Vertrags- und Mietbedingungen