Alternative Objekte
Ferienhaus in Ballum bei Wattenmeer und Rømø
Ferienhaus - 4 Personen - Byvej - Ballum - 6261 - Bredebro
4 Personen
Objekt Nr.: 121-29-4062
Gemütliches Ferienhaus in Ballum nahe Wattenmeer und Sandstrand der Insel Rømø.
- Schlafzimmer 2
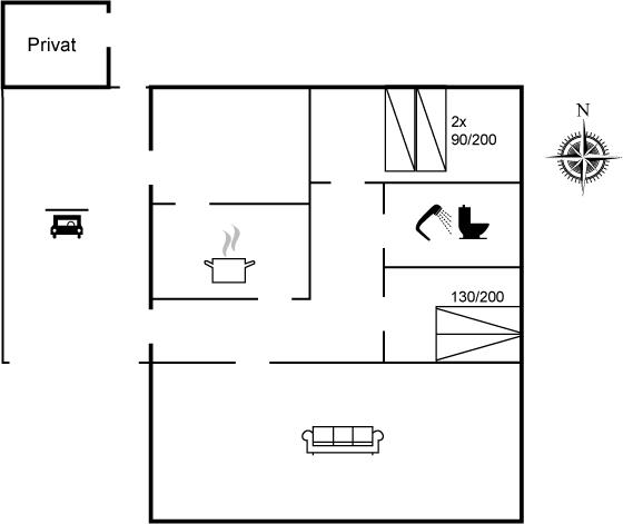
- Badezimmer 1
- Wohnfläche 90 m²
- Grundstück 800 m²
- Haustiere Nicht erlaubt
- Kurzurlaub möglich Ja
- Entfernung Wasser 1.200 m
- Einkaufen 400 m
- Internet Ja
- Waschmaschine Ja
- Trockner Ja
- Geschirrspüler Ja
- Nichtraucher Ja
- Ladestation für Elektroauto Ja
- Klimafreundlich Ja
Beschreibung
Mitten im Dorf Ballum in der Nähe des Nationalparks Wattenmeer und der Natur Südjütlands liegt dieses gut ausgestattete Ferienhaus.
Mach einen Ausflug zur Ferieninsel Rømø mit ihrem breiten Sandstrand, der nur ca. 20 km vom Haus entfernt liegt, oder besuche Møgeltønder mit dem Schloss.
Einrichtung
Das Ferienhaus eignet sich für 4 Personen sowie 1 Kleinkind bis zu 3 Jahren. Die Ferienunterkunft hat eine Wohnfläche von 90 m² und wurde 1992 gebaut. Haustiere dürfen nicht mitgebracht werden. In der Ferienunterkunft ist eine energiesparender Luft zu Luft Wärmepumpe installiert. Die Ferienunterkunft ist mit Waschmaschine ausgestattet. Wäschetrockner. Tiefkühlmöglichkeit mit 30 Liter Nutzinhalt. Für die jüngsten Feriengäste ist 1 Kinderhochstuhl vorhanden.
Draußen
Die Ferienunterkunft liegt auf einem 800 m² großen Gartengrundstück. Die Entfernung zum Meer beträgt 20000 m.Die Entfernung zum Wattenmeer beträgt 1200 m. Die nächste Einkaufsmöglichkeit liegt 400 m entfernt. In einem Abstand von 25000 m gibt es einen Golfplatz. Es steht ein Grill zur Verfügung. Es ist ein Ladestecker für Elektroautos installiert. Ladestecker Typ 2. Mit einer Ladeleistung von 11 kW. Parkplatz auf dem Grundstück.
Schlafverhältnisse
Die Schlafplätze verteilen sich auf 2 Schlafräume. 2 Schlafplätze in einem Doppelbett.2 Schlafplätze in elektrisch verstellbaren Betten. Ferner steht ein Kinderbett zur Verfügung.
Küche
Die Küche ist mit Kühlschrank ausgestattet. Außerdem gibt es 4 Induktions-Kochzonen, Minibackofen, Umluftofen, Mikrowelle sowie Geschirrspüler.
WC und Bad
Es gibt 1 Badezimmer mit Duschnische und 1 Toilette.. Fußbodenheizung in 1 Badezimmer.
Multimedien
In der Ferienunterkunft gibt es 1 Fernseher mit Smart-TV.1 Chromecast. DVD-Player. Radio. 1-3 dänische Fernsehsender. Mindestens 4 deutsche Fernsehsender. Es steht kabellose Internetverbindung zur Verfügung.
Wissenswertes
Keine Vermietung an Jugendgruppen, in denen alle 15-25 Jahre sind. Rauchen ist nicht zugelassen. Bei Nichtbeachtung dieses Verbots wird eine Gebühr von mindestens EUR 420,- erhoben.
Einrichtung
Das Ferienhaus eignet sich für 4 Personen sowie 1 Kleinkind bis zu 3 Jahren. Die Ferienunterkunft hat eine Wohnfläche von 90 m² und wurde 1992 gebaut. Haustiere dürfen nicht mitgebracht werden. In der Ferienunterkunft ist eine energiesparender Luft zu Luft Wärmepumpe installiert. Die Ferienunterkunft ist mit Waschmaschine ausgestattet. Wäschetrockner. Tiefkühlmöglichkeit mit 30 Liter Nutzinhalt. Für die jüngsten Feriengäste ist 1 Kinderhochstuhl vorhanden.
Draußen
Die Ferienunterkunft liegt auf einem 800 m² großen Gartengrundstück. Die Entfernung zum Meer beträgt 20000 m.Die Entfernung zum Wattenmeer beträgt 1200 m. Die nächste Einkaufsmöglichkeit liegt 400 m entfernt. In einem Abstand von 25000 m gibt es einen Golfplatz. Es steht ein Grill zur Verfügung. Es ist ein Ladestecker für Elektroautos installiert. Ladestecker Typ 2. Mit einer Ladeleistung von 11 kW. Parkplatz auf dem Grundstück.
Schlafverhältnisse
Die Schlafplätze verteilen sich auf 2 Schlafräume. 2 Schlafplätze in einem Doppelbett.2 Schlafplätze in elektrisch verstellbaren Betten. Ferner steht ein Kinderbett zur Verfügung.
Küche
Die Küche ist mit Kühlschrank ausgestattet. Außerdem gibt es 4 Induktions-Kochzonen, Minibackofen, Umluftofen, Mikrowelle sowie Geschirrspüler.
WC und Bad
Es gibt 1 Badezimmer mit Duschnische und 1 Toilette.. Fußbodenheizung in 1 Badezimmer.
Multimedien
In der Ferienunterkunft gibt es 1 Fernseher mit Smart-TV.1 Chromecast. DVD-Player. Radio. 1-3 dänische Fernsehsender. Mindestens 4 deutsche Fernsehsender. Es steht kabellose Internetverbindung zur Verfügung.
Wissenswertes
Keine Vermietung an Jugendgruppen, in denen alle 15-25 Jahre sind. Rauchen ist nicht zugelassen. Bei Nichtbeachtung dieses Verbots wird eine Gebühr von mindestens EUR 420,- erhoben.
Ausstattung
-
Bitte beachten
-
Keine Arbeiter auf Anfrage
-
Keine Jugendgruppen auf Anfrage
-
Rauchen ist verboten
-
-
Draußen
-
Das Wattenmeer1,2 km
-
Geschäft400 m
-
Golfplatz25 km
-
Grill1
-
Größe des Grundstücks800 m²
-
KW Leistung11
-
Ladebuchse Typ 2
-
Ladegerät für Elektroautos
-
Landschaftsgarten
-
Meer20 km
-
Parkplatz beim Haus
-
-
Einrichtung
-
Anzahl Erwachsene inkl. 4-11 Jahre4
-
Anzahl Kinder (0-3 Jahre)1
-
Baujahr1992
-
Bebaute Fläche90 m²
-
Ferienhaus
-
Gefrierkapazität (Anzahl Liter)30
-
Hochstuhl1
-
Waschmaschine1
-
Wärmepumpe
-
Wärmepumpe Luft zu Luft
-
Wäschetrockner1
-
-
Küche
-
Anzahl der Induktionskochplatten4
-
Heißluftofen1
-
Kühlschrank1
-
Mikrowelle1
-
Mini-Ofen1
-
Spülmaschine1
-
-
Multimedien
-
> 3 deutsche Sender
-
0-3 dänische Kanäle
-
Anzahl der Fernseher1
-
Chromecast1
-
DVD1
-
Herunterladen100
-
Hochladen100
-
Internet drahtlos
-
Radio
-
Smart TV1
-
-
Schlafverhältnisse
-
Anzahl der Schlafzimmer2
-
Doppelbett (Anzahl der Schlafplätze)2
-
Kinderbett1
-
Verstellbares Bett (Anzahl der Schlafplätze)2
-
-
WC und Bad
-
Anzahl der Badezimmer1
-
Duschkabine
-
Fußbodenheizung1
-
Toiletten1
-
-
Zugang zur Ferienunterkunft
-
Schlüsselkasten mit Code
-
Kurzurlaub
Es besteht eine begrenzte Möglichkeit das ganze Jahr einen Kurzurlaub zu machen, typischerweise ausserhalb der Hochsaison.
Preise und Kalender
Kalender
Dauer
Preis
Zeitraum
- Ankunft
- Abreise
- Dauer
- 1 Woche
Personen
Bis zu 4 Personen
Bitte beachten
Ankunftszeit wurde nicht ausgewählt.