Charmantes Stadthaus mit modernem Komfort in Aalborg

Ferienhaus - 5 Personen - Klokkestøbergade - 9000 - Aalborg

5 Personen
Objekt Nr.: 090-61738
Charmantes Stadthaus im Herzen von Aalborg mit modernem Komfort und historischem Flair, nahe Limfjord und Einkaufsmöglichkeiten.
  • Schlafzimmer 1
  • Badezimmer 1
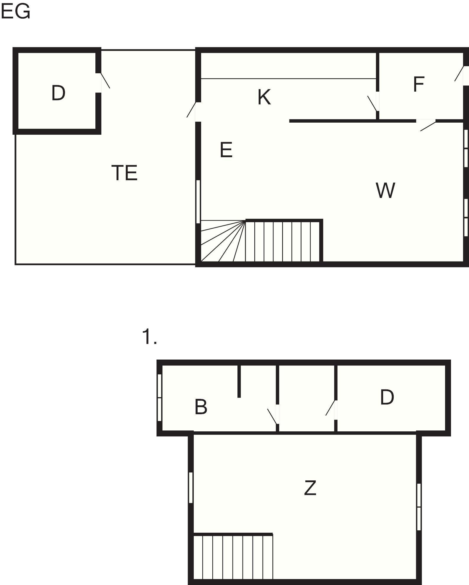
  • Wohnfläche 44 m²
  • Haustiere Nicht erlaubt
  • Kurzurlaub möglich Ja
  • Entfernung Wasser 400 m
  • Einkaufen 80 m
  • Highspeed Internet Ja
  • Waschmaschine Ja
  • Trockner Ja
  • Nichtraucher Ja

Beschreibung

Charmantes Stadthaus in Aalborg – Moderner Komfort in historischem Ambiente, nahe dem Limfjord

Dieses charmante Stadthaus liegt im Zentrum von Aalborg, nur wenige Schritte von der Fußgängerzone, Einkaufsmöglichkeiten, einem großen Einkaufszentrum und dem wunderschönen Limfjord entfernt. Das 1820 erbaute und 2025 sorgfältig renovierte Haus verbindet historischen Charme mit modernem Komfort – ein perfekter Ausgangspunkt für Ihren Aufenthalt im Herzen der Stadt.

Mit Platz für fünf Personen ist das Haus ideal für kleine Familien und Gruppen. Das Wohnzimmer ist mit einem Doppelbett ausgestattet, und es gibt ein Zimmer mit einem Doppelbett und einem Einzelbett – so ist es flexibel und praktisch für Ihre Bedürfnisse.

Die gut ausgestattete Küche lädt zu gemütlichen Mahlzeiten ein. Im schönen Wintergarten mit Gartenmöbeln und Grill können Sie herrliche Sommerabende in Ruhe genießen. Das Haus bietet außerdem einen praktischen Hauswirtschaftsraum mit Waschmaschine und Trockner, sodass Sie während Ihres Aufenthalts bequem Ihre Wäsche waschen können.

Für Unterhaltung sorgt ein Fernseher mit Chromecast, sodass Sie Ihre Lieblingssendungen und -filme streamen können. Dank der zentralen Lage sind Sie nicht nur in der Nähe des pulsierenden Stadtlebens von Aalborg, sondern auch in der Nähe des wunderschönen Limfjords, wo Sie malerische Spaziergänge und Bootsfahrten genießen können.

Nicht für Jugendgruppen oder Gewerbetreibende verfügbar.

1 Wohnz.: (1DL), Chromecast, TV
1 Schlafz.: (1DB+1L)
1 Annex: Waschm, Trockner
Küche: Kaffeem.
Bad: WC, Waschb., Dusche
1 Außenbereich: Gartenmöbel, Holzkohlegrill, Solgård
Und: Fernheiz., Lejlighed 55 m2, Stadtgebiet

Schlüsselinformationen
  • Das Ferienhaus steht Ihnen am Anreisetag ab 16:00 Uhr zur Verfügung.
  • Die Schlüsselübergabe findet am Haus statt.
  • Dieses Haus ist Smart-Lock-fähig

Unsere Gästebewertungen Externe Bewertungen

Keine eigene Gästebewertungen
4,3
Möblierung:
4,5
Empfehlenswert:
4,3
Insgesamt mit Kindern:
5,0
Externe Bewertungen
Keine detaillierten externen Bewertungen

Ausstattung

  • Badezimmer

    • Dusche
    • Waschbecken
    • WC
  • Diverse

    • Anzahl Badezimmer
      1
    • Anzahl Schlafzimmer
      1
    • Baujahr
      1820
    • Hoch Geschwindigkeits Internet
    • Internet
    • Nichtraucher
    • Renoviert
      2025
    • Wohnfläche in m²
      44 m²
  • Draußen

    • Gartenmöbel
    • Kohlegrill
    • Solgård
  • Drinnen

    • Chromecast
    • TV
    • Waschmaschine
    • Wäschetrockner
  • Entfernung

    • Einkauf
      80 m
    • Küste
      400 m
    • Restaurant
      150 m
  • Küche

    • Gefriertruhe 60-99 L
    • Kaffeemaschine
    • Kühlschrank

Kurzurlaub

Es besteht eine begrenzte Möglichkeit das ganze Jahr einen Kurzurlaub zu machen, typischerweise ausserhalb der Hochsaison.

Preise und Kalender

Kalender

Ankunft
Vorheriger Monat Nächster Monat
  • April 2026
    MoDiMiDoFrSaSo
    1412345
    156789101112
    1613141516171819
    1720212223242526
    1827282930
    19
  • Mai 2026
    MoDiMiDoFrSaSo
    18123
    1945678910
    2011121314151617
    2118192021222324
    2225262728293031
    23
   Verfügbarkeit am ausgewählten Datum prüfen
Frei
Nicht frei
   Ankunft möglich
Dauer

Preis

Zeitraum
Ankunft
Abreise
Dauer
1 Woche
Personen
Bis zu 5 Personen

Bitte beachten

Ankunftszeit wurde nicht ausgewählt.
Vertrags- und Mietbedingungen