Charmantes Ferienhaus nahe Strand in Ærøskøbing

Stadthaus / Reihenhaus - 4 Personen - Liljestræde - Æreøskøbing - 5970 - Ärösköbing

4 Personen
Objekt Nr.: 556-AE280
Charmantes Endreihenhaus in Ærøskøbing, nur 200 m vom Strand, ideal für entspannte Ferien mit Terrasse und Grill.
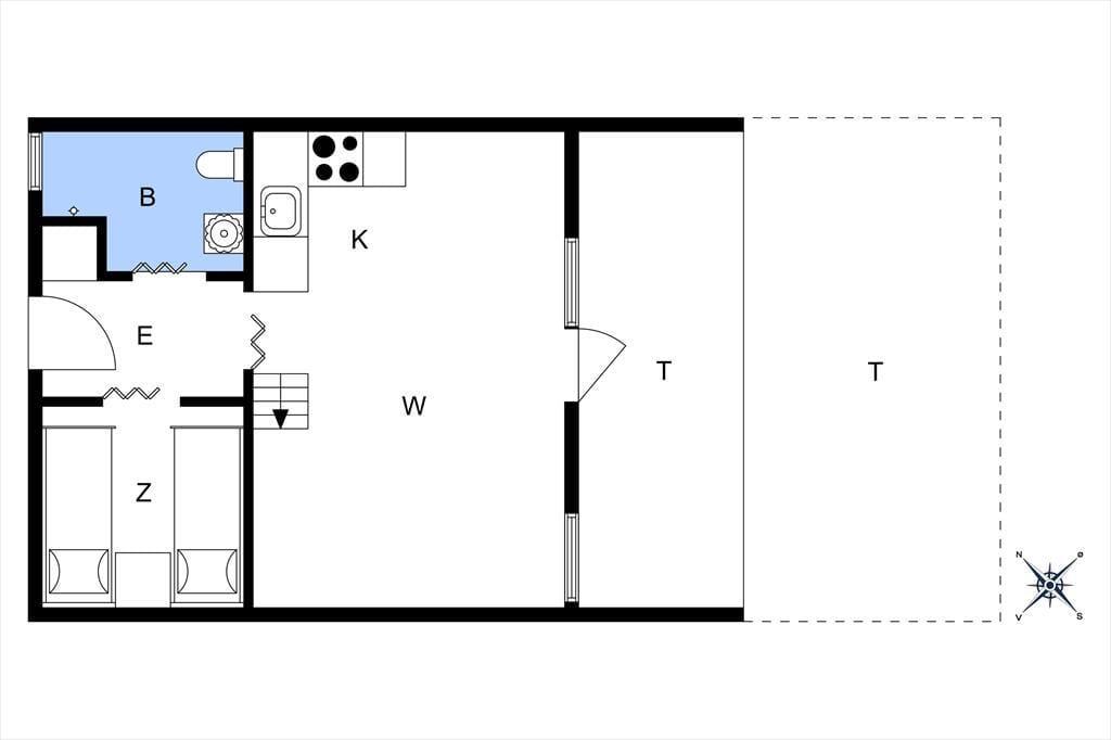
  • Schlafzimmer 1
  • Badezimmer 1
  • Wohnfläche 35 m²
  • Grundstück 100 m²
  • Haustiere 1
  • Kurzurlaub möglich Ja
  • Entfernung Wasser 200 m
  • Einkaufen 250 m
  • Internet Ja
  • Satelliten-/Kabel TV Ja
  • Nichtraucher Ja
  • Klimafreundlich Ja

Beschreibung

In dem gemütlichen und charmanten Ærøskøbing liegt dieses wunderschöne Endreihenhaus, das mit seiner zentralen Lage und seiner atmosphärischen Ausstrahlung eine perfekte Wahl für einen erholsamen Urlaub ist. Das Haus liegt nur 200 Meter vom Strand entfernt und in der Nähe von Einkaufsmöglichkeiten, sodass du alles, was du brauchst, in unmittelbarer Reichweite hast.

Willkommen in deinem Ferienhaus
Wenn du das helle Wohnküchenbereich betrittst, wirst du sofort von einer angenehmen und einladenden Atmosphäre empfangen. Die Küche ist gut ausgestattet und ideal, um nach einem erlebnisreichen Tag köstliche Mahlzeiten zuzubereiten. Der offene Raum lädt zu gemütlichen Momenten am Esstisch ein, wo du und deine Liebsten sich zu Mahlzeiten oder einer Runde Karten versammeln könnt. Die Wärmepumpe sorgt das ganze Jahr über für eine angenehme Temperatur. Vom Wohnraum führt eine Treppe hinauf zu einem Dachboden, der mit gemütlichen Schlafplätzen eingerichtet ist – ein perfekter Rückzugsort für Kinder und Erwachsene, die ein wenig zusätzliche Feriengemütlichkeit suchen. Das Badezimmer ist schön renoviert und bietet eine Eckdusche, die die Morgenroutine zum Vergnügen macht.

Genieße das Leben im Freien
Wenn die Sonne scheint, kannst du auf die kleine, gemütliche gepflasterte Terrasse treten, die sich perfekt für eine entspannte Zeit mit einem guten Buch oder einer Tasse Kaffee eignet. Die Terrasse ist mit einem Grill und einem Sonnenschirm ausgestattet, sodass du Mahlzeiten im Freien im Schatten oder unter freiem Himmel genießen kannst. Wenn du etwas mehr Platz möchtest, kannst du den Schritt weiter auf die gemeinschaftliche Rasenfläche gehen, wo reichlich Gelegenheit für Spiel und Entspannung besteht. Hier kannst du die frische Luft genießen und vielleicht sogar eine Runde Krocket oder Ball mit der Familie spielen.

Entdecke deine Umgebung
Ærøskøbing ist bekannt für seinen gut erhaltenen Stadtkern mit kopfsteingepflasterten Straßen und bunten Häusern, und du hast alle Herrlichkeiten der Stadt direkt vor der Tür. Der nahegelegene Strand ist nur 200 Meter entfernt, und hier kannst du ein erfrischendes Bad genießen oder einen entspannenden Spaziergang am Wasser entlang machen. Die gemütlichen Cafés und Geschäfte der Stadt laden zu einem Bummel ein, bei dem du lokale Spezialitäten entdecken und die Atmosphäre in der alten Skipperstadt genießen kannst. Wenn du mehr von der Insel erleben möchtest, ist es einfach, einen Ausflug in die umliegenden Landschaften und Strände zu unternehmen, die alle ihren eigenen einzigartigen Charme haben.

Unsere Gästebewertungen Externe Bewertungen

3,0
Bezogen auf 1 Bewertung
Bewertung ist vom 02.06.2025
5
(0)
4
(0)
3
(1)
2
(0)
1
(0)
Kommentare
Keine Bewertungen haben Kommentare auf Deutsch
1 Bewertung hat einen Kommentar in einer anderen Sprache.

Ausstattung

  • Hausinfo.

    • Anzahl Erw.
      4
    • Anzahl Haustiere
      1
    • Baujahr
      1986
    • Dusche
    • Grundstücksgröße
      100 m²
    • Hausareal
      35 m²
    • WC
  • Entfernungen

    • Abstand Einkauf
      250 m
    • Entfernung Meer
      200 m
    • Entfernung Restaurant
      200 m
    • Entfernung Strand
      200 m
  • Energie/Heizung

    • Elektroheizung
    • Wärmepumpe
  • Küchengeräte

    • Backofen
    • Herd
    • Kaffeemaschine
    • Kühlschrank m/Gefrierfach
      10 l
    • Wasserkocher
  • Multimedien

    • Deutsche Kanäle
    • Free Wi-Fi - Unter 20 Mbit
    • Kabel TV
    • TV
  • Draußen

    • Gartenmöbel
    • Grill
      Kohle
    • Parken auf dem Grundstück
    • Sonnenschirm
    • Terrasse
      30 m²
  • Diverse

    • Matratze
      140x200 cm
  • Regeln

    • Aufladung von Elektroautos nicht erlaubt
    • Haustiere: alle Arten erlaubt
    • Rauchen verboten
  • Preis inbegriffen

    • Endreinigung inkl.

Kurzurlaub

Zur Zeit werden keine Kurzulaube angeboten. Das bedeutet meistens, dass ein Kurzurlaub in der Hochsaison nicht möglich ist.

Preise und Kalender

Kalender

Ankunft
Nächster Monat
  • Dezember 2025
    MoDiMiDoFrSaSo
    491234567
    50891011121314
    5115161718192021
    5222232425262728
    1293031
    2
  • Januar 2026
    MoDiMiDoFrSaSo
    11234
    2567891011
    312131415161718
    419202122232425
    5262728293031
    6
   Verfügbarkeit am ausgewählten Datum prüfen
Frei
Nicht frei
   Ankunft möglich
Dauer
Personen

Preis

Zeitraum
Ankunft
Abreise
Dauer
Personen
Keine Personen ausgewählt

Bitte beachten

Ankunftszeit wurde nicht ausgewählt.
Dauer des Aufenthalts wurde nicht ausgewählt.
Es wurden keine Personen ausgewählt.
Vertrags- und Mietbedingungen