Großzügiges Sommerhaus nahe Strand und Hafen

Ferienhaus - 8 Personen - Blåtopvej - Vesterø - 9940 - Läsö

8 Personen
Objekt Nr.: 547-785094
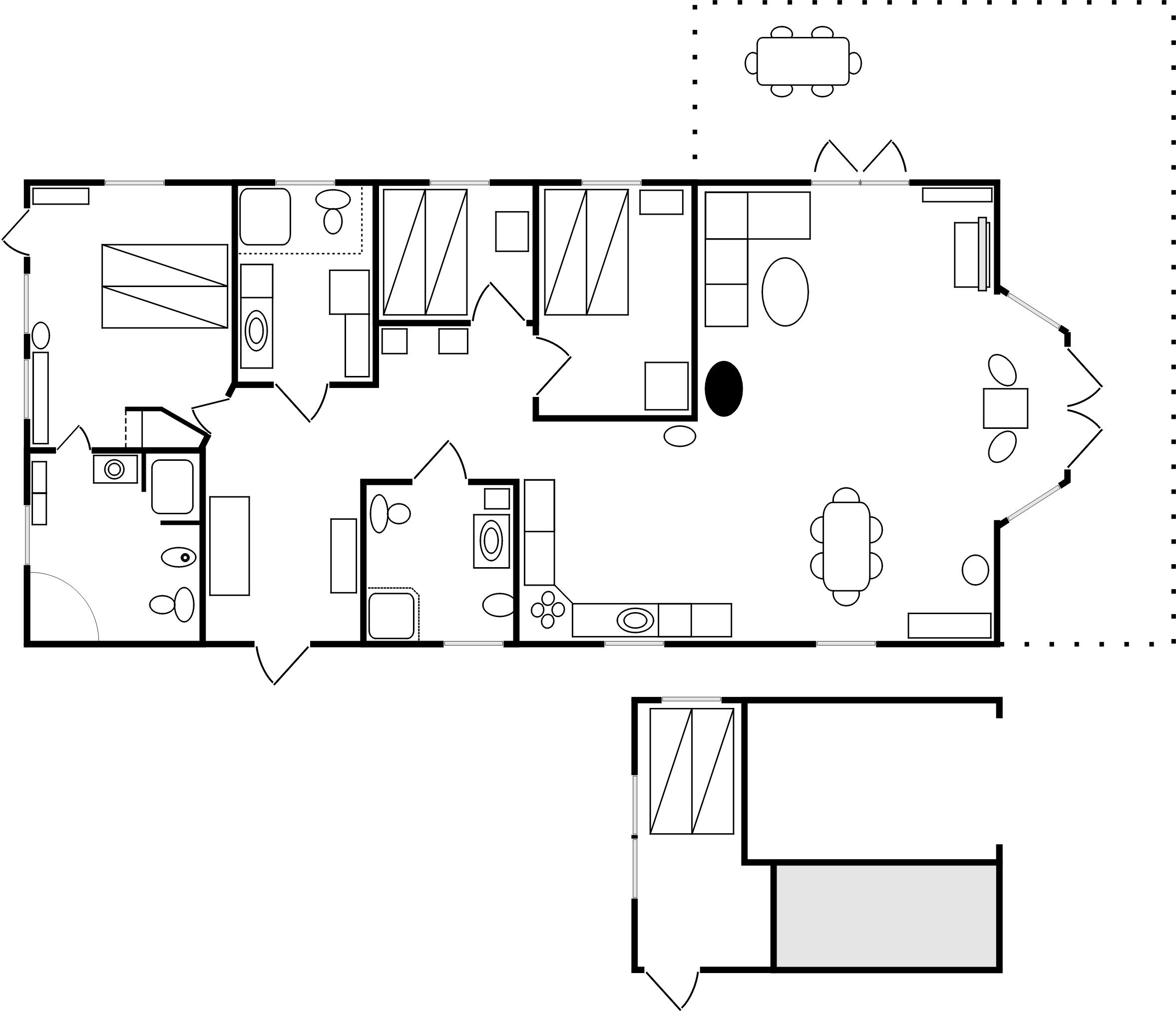
Großes, helles Sommerhaus in Læsø mit 3 Bädern, Holzofen und großem Garten nahe Strand und Vesterø Hafen.
  • Schlafzimmer 4
  • Badezimmer 3
  • Wohnfläche 120 m²
  • Grundstück 1.827 m²
  • Haustiere 1
  • Kurzurlaub möglich Ja
  • Entfernung Wasser 300 m
  • Einkaufen 1.500 m
  • Internet Ja
  • Kaminofen Ja
  • Waschmaschine Ja
  • Geschirrspüler Ja
  • Nichtraucher Ja
  • Klimafreundlich Ja

Beschreibung

Neu bei Team Læsø. Dieses schöne, grosse Sommerhaus mit drei Badezimmer hat eine herrliche ungestörte Lage in einer attraktiven naturschönem Sommerhausquartier, nördlich von Vesterø Hafen, nahe vom Strand und schönem Heidegebiet. Das Haus ist hell und geschmackvoll eingerichtet, mit Holzofen, und komfortabel eingerichtete Küche mit Essbereich. Es sind drei Schlafzimmer, 2 mit Doppelbetten, eins mit 2 Einzelbetten. Darüber hinaus ein Anneks (kleiner Anbau), mit Doppelbett. Direktem Ausgang zur Terrasse von einem Schlafzimmer. Es hat viel Lichteinfall von den vielen Fenstern. Drei Badezimmer befinden sich im Haus, das eine mit Badewanne. Treppe zur Oberetage, wo sich ein grosser Aufenthaltsraum befindet. Gute Möglichkeiten bei schönen Arbeitsstunden die Sonne auf der grossen Terrasse südwestlich zu geniessen. Im Garten können sich die Kinder sowohl auf dem neu angelegten Fußballplatz als auch auf dem Trampolin so richtig austoben und auf dem großen eingezäunten Grundstück gibt es viel Platz für den Hund. Nur 300 Meter zum Strand. Ca. 1,5 km zum Vesterø Hafen, mit guten Restaurants , Fischhandel und Einkaufsmöglichkeiten.

Ausstattung

  • Einrichtung

    • Nichtraucher
    • Grundstücksgröße
      1827
    • Hausareal
      120
    • Haustier erlaubt
    • Entfernung Strand
      300 m
    • Abstand Einkauf
      1,5 km
    • Waschmaschine
    • Kaminofen
    • Anzahl der Schlafräume
      4
    • Doppelbetten
      3
    • Einzelbetten
      2
    • Spülmaschine
    • Mikrowelle
    • Toiletten
      3
    • Grill
    • Gefriertruhe
    • Menschen
      8
    • Internet
    • Max. Anzahl Personen
      8
    • Kurzurlaub
    • Wärmepumpe
    • Chromecast
    • Annex
    • Möglichkeit eines weiteren Ferienhauses in der Nähe
    • Baujahr
      2006
    • Bäder
      3
    • Zwei Toiletten

Kurzurlaub

Es besteht eine begrenzte Möglichkeit das ganze Jahr einen Kurzurlaub zu machen, typischerweise ausserhalb der Hochsaison.

Preise und Kalender

Kalender

Ankunft
Vorheriger Monat Nächster Monat
   Verfügbarkeit am ausgewählten Datum prüfen
Frei
Nicht frei
   Ankunft möglich
Dauer

Preis

Zeitraum
Ankunft
Abreise
Dauer
1 Woche
Personen
Bis zu 8 Personen

Bitte beachten

Ankunftszeit wurde nicht ausgewählt.
Vertrags- und Mietbedingungen