Helles Reetdachhaus mit Sauna und Whirlpool

Ferienhaus - 6 Personen - Fyrrebakken - Vedersö Klit - 6990 - Ulfborg

6 Personen
Objekt Nr.: 105-20795
7 Übernachtungen
Ab EUR 875,-
Inkl. Endreinigung und Versicherung
Helles Reetdachferienhaus mit Sauna, Whirlpool und großer Terrasse nahe dem Strand.
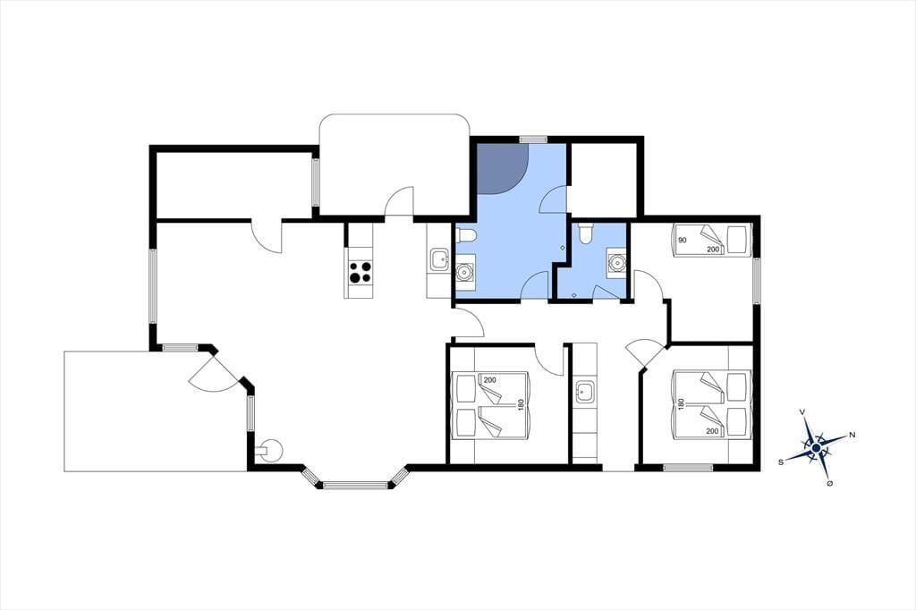
  • Schlafzimmer 4
  • Badezimmer 2
  • Wohnfläche 120 m²
  • Grundstück 2.000 m²
  • Haustiere Nicht erlaubt
  • Kurzurlaub möglich Nein
  • Entfernung Wasser 800 m
  • Einkaufen 450 m
  • Whirlpool Ja
  • Sauna Ja
  • Highspeed Internet Ja
  • Satelliten-/Kabel TV Ja
  • Kaminofen Ja
  • Eingezäunter Bereich Ja
  • Waschmaschine Ja
  • Trockner Ja
  • Geschirrspüler Ja
  • Nichtraucher Ja
  • Klimafreundlich Ja

Beschreibung

Einrichtung
Willkommen in diesem ausgesprochen hellen, schönen und mit allen Annehmlichkeiten ausgestatteten Reetdachferienhaus. Machen Sie es sich vor dem behaglich knisternden Kaminofen im hellen, einladenden und mit komfortablen Möbeln ausgestatteten Wohnraum gemütlich, oder genießen Sie im Essbereich köstliche Mahlzeiten und gesellige Runden im Familienkreis. Die Küche ist offen mit dem Essbereich verbunden und erleichtert Ihnen unter anderem mit einem Kühl-/Gefrierschrank, einem Einbaubackofen, einem Ceranfeldherd, einem Geschirrspüler und einer Mikrowelle die täglich anfallenden Aufgaben. Neben dem großen Badezimmer, das neben einem WC und einer Dusche auch einen Whirlpool und eine Sauna enthält, ist praktischerweise auch ein zusätzliches Badezimmer mit einem WC und einer Dusche vorhanden. Eine Waschmaschine und ein Wäschetrockner stehen selbstverständlich ebenfalls zu Ihrer Verfügung. In die 4 Schlafräumen gibt komfortabel Schlafplätze. Das gesamte Haus verfügt über eine Wi-Fi-Abdeckung mit 100/100 Mbit.

Außenbereich
Die große, sonnenverwöhnte, möblierte Steinterrasse, die sich gen Westen und Süden an das Haus schmiegt, bildet einen perfekten Rahmen für ausgedehnte, ungestörte Sonnenbäder, gemütliche Mittagessen im Freien und gesellige Grillabende in netter Runde. Für ein Maximum an Urlaubsstimmung sorgt dabei die Ruhe und das beruhigende Rauschen des Meeres im Hintergrund. Gen Osten erwartet Sie eine kleine Terrasse auf der Sie in aller Ruhe Ihren Morgenkaffee in der Sonne genießen können. Das 2.000 m² große Grundstück mit dichter Randbepflanzung bietet Ihnen beste Möglichkeiten, um mit den Kindern umherzutollen oder vergnügt Ball zu spielen.

Lage
Richtig schöne und erholsame Urlaubstage stehen Ihnen bevor, wenn Sie sich für dieses herrliche Reetdachferienhaus entscheiden, das Sie in einem der schönsten und naturreichsten Gebiete entlang der dänischen Westküste erwartet. Eine Einkaufsmöglichkeit ist zu Fuß erreichbar. Bereits nach 10 Minuten erreichen Sie zu Fuß die mächtigen Dünen hinter denen ein wunderbar breiter Badestrand lockt, der übrigens mit der sogenannten "Blauen Flagge" als Zeichen für hohe Badequalität ausgezeichnet ist. Neben bestem Badevergnügen verspricht der Strand Ihnen auch hervorragende Bedingungen für ausgedehnte Strandspaziergänge, zum Ausprobieren Ihres neuen Lenkdrachens und für sämtliche andere Formen von Strandsport. Gen Norden und Osten erstrecken sich fantastische Naturgebiete mit Dünenwäldern, Heideflächen, Fjorden, Seen und einem ausgesprochen vielfältigem Tier- und Vogelleben. Wenn Sie Lust auf einen Shoppingbummel oder einen Restaurantbesuch verspüren, fahren Sie per Pkw einfach in den nur rund 10 Minuten entfernten, pulsierenden Badeort Søndervig, der zudem mit einem Bowlingcenter, einem Badeland, einem Golfplatz, einem Fitnesscenter und vielen anderen Dingen zu begeistern weiß.


Raumaufteilung

  • Schlafzimmer
    • Doppelbett
  • Schlafzimmer
    • Einzelbett
    • Einzelbett
  • Schlafzimmer
    • Doppelbett
  • Schlafzimmer
    • Doppelbett

Ausstattung

  • Hausinfo.

    • 2 x Dusche
    • 2 x WC
    • Anzahl Erw.
      6
    • Baujahr
      1998
    • Grundstück / Naturgrund
      2000 m²
    • Hausareal
      120 m²
    • Renovierungsjahr
      2024
    • Sauna
    • Whirlpool, drinnen
  • Entfernungen

    • Entfernung Einkauf / Sommer
      450 m
    • Entfernung Strand / Sand-, Kieselstrand
      800 m
  • Energie/Heizung

    • Elektroheizung
    • Kaminofen
    • Wärmepumpe / Ohne Kühlung
  • Küchengeräte

    • Abzugshaube
    • Backofen
    • Bügelbrett
    • Bügeleisen
    • Kaffeemaschine
    • Kochplatten
    • Kühlschrank m/Gefrierfach
    • Mikrowelle
    • Spülmaschine
    • Waschmaschine
    • Wasserkocher
    • Wäschetrockner
  • Multimedien

    • Chromecast
    • Deutsche Kanäle
    • Dän. TV
      Dänische freie Kanäle
    • Kostenloses WLAN - mehr als 100 Mbit
    • Parabol
    • TV
  • Draußen

    • Gartenmöbel
    • geschlossener Garten/Grund
    • Grill
    • Liegestühle
    • Offene Terrasse
    • Parken auf dem Grundstück
    • Sandkiste
    • Schaukel
    • Sonnenschirm
  • Diverse

    • 2 x Fußbodenheizung
    • 4 x Holz-/Parkettboden
    • 5 x Fliesen-/Marmorboden
  • Regeln

    • Aufladung von Elektroautos nicht erlaubt
    • HAUSTIER NICHT ERLAUBT
    • Rauchen verboten
  • Preis inbegriffen

    • Endreinigung inkl.
    • Wasser inkl.

Preise und Kalender

Kalender

Ankunft
Vorheriger Monat Nächster Monat
  • Juni 2026
    MoDiMiDoFrSaSo
    231234567
    24891011121314
    2515161718192021
    2622232425262728
    272930
    28
  • Juli 2026
    MoDiMiDoFrSaSo
    2712345
    286789101112
    2913141516171819
    3020212223242526
    312728293031
    32
   Verfügbarkeit am ausgewählten Datum prüfen
Frei
Nicht frei
   Ankunft möglich
Dauer

Preis

Zeitraum
Ankunft
Abreise
Dauer
1 Woche
Personen
Bis zu 6 Personen

Bitte beachten

Ankunftszeit wurde nicht ausgewählt.
Vertrags- und Mietbedingungen