Gemütliches Ferienhaus mit Meerblick in Dänemark

Ferienhaus - 5 Personen - Mimershøj - Veddinge Bakker & Ordrup - 4540 - Faarevejle

5 Personen
davon 2 Kinder (0-11 Jahre alt)
Objekt Nr.: 035-15507
Dieses gemütliche Ferienhaus in Veddinge Bakker bietet Meerblick und eine schöne Terrasse nur wenige Minuten vom Strand entfernt.
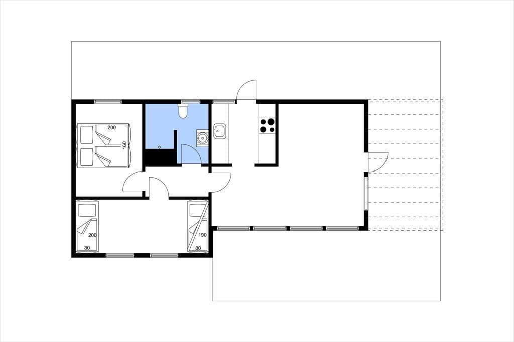
  • Schlafzimmer 2
  • Badezimmer 1
  • Wohnfläche 50 m²
  • Grundstück 1.972 m²
  • Haustiere 1
  • Kurzurlaub möglich Ja
  • Entfernung Wasser 1.300 m
  • Einkaufen 4.700 m
  • Highspeed Internet Ja
  • Satelliten-/Kabel TV Ja
  • Kaminofen Ja
  • Wasserblick Ja
  • Klimaanlage Ja
  • Nichtraucher Ja
  • Klimafreundlich Ja

Beschreibung

Dieses schöne Ferienhaus befindet sich in Veddinge Bakker, nur 5 Minuten per Pkw vom Strand entfernt. Es besticht mit einer schönen Aussicht über die Sejerø Bucht. Hier bieten sich Ihnen in authentischem, gemütlichem Ambiente beste Erholungs- und Entspannungsmöglichkeiten.

Einrichtung
Im schönen Wohnraum werden Sie mit einer Aussicht verwöhnt, die pure Entspannung verspricht. Ihre Mahlzeiten bereiten Sie in der kleinen Küche zu. Der Rest der Wohnfläche ist zwei Schlafräumen und einem guten Badezimmer mit Dusche gewidmet. Auf der schönen Terrasse werden Sie gerne beisammensitzen und allabendlich grillen. Dabei genießen Sie die Sonne, die Stille und die reizvolle Aussicht auf das Meer. Erleben Sie es selber!

Lage
Die Umgebung des Ferienhauses ist schön und hügelig. Für Aktivurlauber bildet das Haus einen wunderbaren Ausgangspunkt für lange Radtouren und Wanderungen. Ans Herz legen möchten wir Ihnen in diesem Zusammenhang eine Radtour auf dem Vindekilde Strandvej. Die Anstrengungen werden mit fantastischen Aussichten auf die Inseln Sejerø und Nekselø belohnt. Oder wie wäre es mit einem Spaziergang auf der Vejrhøj, bei dem Sie den Geopark Odsherred hautnah erleben? Empfehlen möchten wir Ihnen darüber hinaus einen Abstecher in den kleinen, bezaubernden Ort Ordrup, der mit seinem Dorfteich, hübschen Häusern und Cafés zu glänzen weiß. Liebhaber kulinarischer Hochgenüsse sollten das Restaurant auf Schloss Dragsholm aufsuchen. Auf der anspruchsvollen, nahegelegenen Golfanlage können Golfer an Ihrem Handicap feilen. Ihren Kindern werden Sie mit einem vergnügten Tag im Odsherred Zoo und im Sommerland Sjælland garantiert eine große Freude bereiten.


Raumaufteilung

  • Schlafzimmer
    • Einzelbett - 80 X 190
  • Schlafzimmer
    • Doppelbett - 160 X 200

Unsere Gästebewertungen Externe Bewertungen

4,0
Bezogen auf 1 Bewertung
Bewertung ist vom 07.03.2025
5
(0)
4
(1)
3
(0)
2
(0)
1
(0)
Kommentare
Keine Bewertungen haben Kommentare auf Deutsch
1 Bewertung hat einen Kommentar in einer anderen Sprache.

Ausstattung

  • Hausinfo.

    • Anzahl der Kinder
      2
    • Anzahl Erw.
      3
    • Anzahl Haustiere
      1
    • Baujahr
      1966
    • Dusche
    • Grundstück / Gartengrund
      1972 m²
    • Hausareal
      50 m²
    • Meerblick
    • Teilw. renoviert im Jahr
      2000
    • WC
  • Entfernungen

    • Entfernung Einkauf / Ganzjahresgeschäft
      4,7 km
    • Entfernung Restaurant
      3,7 km
    • Entfernung Schwimmhalle
      6,2 km
    • Entfernung Strand / Sand-, Kieselstrand
      1,3 km
    • Entfernung zum Golfplatz
      6 km
  • Energie/Heizung

    • Elektroheizung
    • Kaminofen
    • Wärmepumpe / Mit Kühlung
  • Küchengeräte

    • Abzugshaube
    • Herd
    • Kaffeemaschine
    • Kühlschrank m/Gefrierfach
    • Mikrowelle
    • Wasserkocher
  • Multimedien

    • Deutsche Kanäle
    • Dän. TV
    • Gratis Wi-Fi - Über 20 Mbit
    • Kabel TV
    • Norw. TV
    • Schwedisches TV
    • TV
  • Extra

    • Golf-Urlaub
  • Draußen

    • Gartenmöbel
    • Grill
      Gas
    • Liegestühle
    • Offene Terrasse
      50 m²
    • Parken auf dem Grundstück
    • Sonnenschirm
  • Diverse

    • 3 x Holz-/Parkettboden
    • Offene Küche
    • Stockbett
      80 x 190
  • Regeln

    • Aufladung von Elektroautos nicht erlaubt
    • Haustiere: nur Hunde erlaubt
    • Rauchen verboten
  • Preis inbegriffen

    • Endreinigung inkl.
    • Wasser inkl.
  • ALT

    • 2 x Vinyl-/Linoleum-/Laminat-/Korkboden
    • CD Gerät
    • Radio

Kurzurlaub

Zur Zeit werden keine Kurzulaube angeboten. Das bedeutet meistens, dass ein Kurzurlaub in der Hochsaison nicht möglich ist.

Preise und Kalender

Kalender

Ankunft
Nächster Monat
  • März 2026
    MoDiMiDoFrSaSo
    91
    102345678
    119101112131415
    1216171819202122
    1323242526272829
    143031
  • Vorreservierung
    Möchten Sie eine unverbindliche Vorreservierung machen?

    Vorreservierung
   Verfügbarkeit am ausgewählten Datum prüfen
Frei
Nicht frei
   Ankunft möglich
Dauer

Preis

Zeitraum
Ankunft
Abreise
Dauer
Personen
Bis zu 5 Personen
davon 2 Kinder (0-11 Jahre alt)

Bitte beachten

Ankunftszeit wurde nicht ausgewählt.
Dauer des Aufenthalts wurde nicht ausgewählt.
Vertrags- und Mietbedingungen