Gemütliches Ferienhaus nahe der Nordsee

Ferienhaus - 6 Personen - Falkevej - Tversted - 9881 - Bindslev

6 Personen
Objekt Nr.: 102-TV1359
Gemütliches Ferienhaus in ruhiger Naturlage nahe der Nordsee für entspannte Tage mit Familie oder Freunden.
  • Schlafzimmer 4
  • Badezimmer 2
  • Wohnfläche 100 m²
  • Grundstück 5.500 m²
  • Haustiere Nicht erlaubt
  • Kurzurlaub möglich Ja
  • Entfernung Wasser 1.600 m
  • Einkaufen 1.350 m
  • Highspeed Internet Ja
  • Satelliten-/Kabel TV Ja
  • Kaminofen Ja
  • Klimaanlage Ja
  • Waschmaschine Ja
  • Geschirrspüler Ja
  • Nichtraucher Ja
  • Ladestation für Elektroauto Ja
  • Klimafreundlich Ja

Beschreibung

Spüren Sie, wie die Urlaubsstimmung einsetzt, sobald Sie das Ferienhaus in der Falkevej 13 betreten. Hier erwartet Sie ein liebevoll eingerichtetes Haus, das perfekte Rahmenbedingungen für Entspannung und gemeinsame Zeit bietet. Das Haus liegt in einer ruhigen Gegend mit schöner Natur direkt vor der Tür – und da die Nordsee fußläufig erreichbar ist, haben Sie im Nu den Sand zwischen den Zehen und die frische Meeresluft in den Haaren. Gleichzeitig befinden sich Einkaufsmöglichkeiten in der Nähe, sodass das Urlaubsleben leicht und unbeschwert wird.

Willkommen in deinem Ferienhaus
Drinnen empfängt Sie eine helle und warme Atmosphäre, die sofort Urlaubsgefühle weckt. Das Ferienhaus ist auf Gemütlichkeit und Geselligkeit ausgerichtet, sodass Sie die Tage mit Ihren Liebsten genießen können, ohne sich um etwas anderes kümmern zu müssen. Im Wohnzimmer gibt es reichlich Platz zum Zusammensein – sei es für einen Spieleabend, einen gemütlichen Film oder einfach für Gespräche bei einer Tasse Kaffee mit Blick ins Grüne. Die Küche ist offen mit dem Wohnzimmer verbunden, sodass die Gespräche auch beim Kochen nicht abbrechen. Mit Platz für sechs Personen ist das Haus ideal für Familien oder Freunde, die gemeinsam eine entspannte Auszeit erleben möchten.

Genieße das Leben im Freien
Wenn die Sonne scheint, verlagert sich das Urlaubsleben auf die Terrasse. Hier gibt es sowohl überdachte als auch windgeschützte Ecken, sodass Sie die Natur bei fast jedem Wetter genießen können. Beginnen Sie den Tag mit einer Tasse Kaffee im Freien, lauschen Sie dem Vogelgesang und lassen Sie die Ruhe auf sich wirken. Am Abend darf der Grill angezündet werden, und das Abendessen wird bei gemütlichem Beisammensein unter freiem Himmel serviert. Rund um das Haus laden grüne Flächen zum Spielen für Kinder und zum Entspannen für Erwachsene ein.

Entdecke deine Umgebung
Die Falkevej 13 befindet sich in einer stillen und naturschönen Gegend, in der Sie die Ruhe genießen und gleichzeitig schnell das gemütliche Stadtleben von Tversted erreichen können. Hier gibt es Einkaufsmöglichkeiten und kleine Restaurants, und schon ein kurzer Spaziergang führt Sie zum Strand, wo die Wellen der Nordsee und der breite Sandstrand zu langen Spaziergängen, Sandburgen und erfrischenden Bädern einladen. Auch die Tversted Klitplantage liegt in der Nähe und bietet schöne Wander- und Radwege. Wer einen Ausflug unternehmen möchte, erreicht Skagen und Hirtshals mit dem Auto in kurzer Zeit.

Denken Sie daran, dass Sie bei Tversted jederzeit Bollerwagen, Hochstühle und Kinderbetten ausleihen können. Diese können Sie direkt im Büro abholen und nach Ihrem Urlaub wieder zurückbringen.


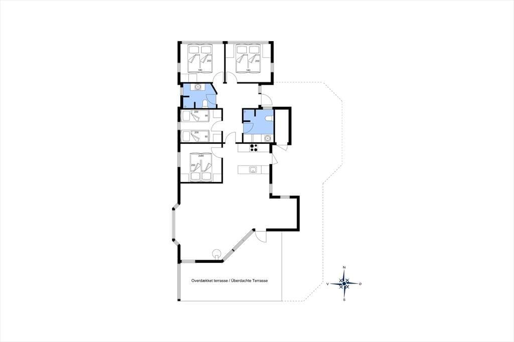
Raumaufteilung

  • Schlafzimmer
    • Einzelbett - 75x200
    • Einzelbett - 75x200
  • Schlafzimmer
    • Doppelbett - 2x80x200
  • Schlafzimmer
    • Doppelbett - 2x80x200
  • Schlafzimmer
    • Doppelbett

Unsere Gästebewertungen Externe Bewertungen

5,0
Bezogen auf 1 Bewertung
Bewertung ist vom 31.07.2021
5
(1)
4
(0)
3
(0)
2
(0)
1
(0)
Kommentare
Keine Bewertungen haben Kommentare.

Ausstattung

  • Hausinfo.

    • 2 x Dusche
    • 2 x WC
    • Anzahl Erw.
      6
    • Baujahr
      1991
    • Grundstück / Naturgrund
      5500 m²
    • Hausareal
      100 m²
    • Renovierungsjahr
      2008
  • Entfernungen

    • Entfernung Einkauf / Ganzjahresgeschäft
      1,4 km
    • Entfernung Restaurant
      1,4 km
    • Entfernung Strand / Sandstrand
      1,6 km
    • Entfernung zum Golfplatz
      10 km
  • Energie/Heizung

    • Elektroheizung
    • Kaminofen
    • Wärmepumpe / Mit Kühlung
  • Küchengeräte

    • Abzugshaube
    • Bügelbrett
    • Bügeleisen
    • Gefriertruhe
      49
    • Herd
    • Kaffeemaschine
    • Kühlschrank
      179
    • Spülmaschine
    • Waschmaschine
    • Wasserkocher
  • Multimedien

    • Deutsche Kanäle
    • Dän. TV
    • Gratis Wi-Fi - Über 20 Mbit
    • Norw. TV
    • Parabol
    • Schwedisches TV
    • TV
      Inkl. TV2
  • Extra

    • Golf-Urlaub
  • Draußen

    • Gartenmöbel
    • Grill
      Kohle
    • Liegestühle
      2
    • Parken auf dem Grundstück
    • Sonnenschirm
      2
    • Teilw. überdachte Terrasse
  • Diverse

    • 2 x Fußbodenheizung
    • Abfallsortierung
      240
  • Regeln

    • Aufladen des Elektroautos erlaubt / CEE-Stecker mit 16 Ampere vorhanden, Kabel mitbringen
    • HAUSTIER NICHT ERLAUBT
    • Rauchen verboten
  • Preis inbegriffen

    • Endreinigung inkl.
    • Wasser inkl.
  • ALT

    • CD Gerät
    • Radio

Kurzurlaub

Es besteht eine begrenzte Möglichkeit das ganze Jahr einen Kurzurlaub zu machen, typischerweise ausserhalb der Hochsaison.

Preise und Kalender

Kalender

Ankunft
Vorheriger Monat Nächster Monat
  • Juli 2026
    MoDiMiDoFrSaSo
    2712345
    286789101112
    2913141516171819
    3020212223242526
    312728293031
    32
  • Vorreservierung
    Möchten Sie eine unverbindliche Vorreservierung machen?

    Vorreservierung
   Verfügbarkeit am ausgewählten Datum prüfen
Frei
Nicht frei
   Ankunft möglich
Dauer

Preis

Zeitraum
Ankunft
Abreise
Dauer
2 Übernachtungen
Personen
Bis zu 6 Personen

Bitte beachten

Ankunftszeit wurde nicht ausgewählt.
Vertrags- und Mietbedingungen