Ferienwohnung nahe Tranum Strand mit Pool und Sauna

Ferienwohnung - 4 Personen - Strandvejen 150 Lejl. - Tranum Klit - 9460 - Brovst

4 Personen
Objekt Nr.: 049-JB358
Moderne Ferienwohnung in Brovst nahe Tranum Strand mit Pool, Sauna und Terrasse für erholsamen Urlaub.
  • Schlafzimmer 2
  • Badezimmer 1
  • Wohnfläche 63 m²
  • Grundstück 800 m²
  • Haustiere 2
  • Kurzurlaub möglich Nein
  • Entfernung Wasser 130 m
  • Einkaufen 4.800 m
  • Gemeinschaftlicher Innenpool Ja
  • Gemeinschaftlicher Außenpool Ja
  • Highspeed Internet Ja
  • Satelliten-/Kabel TV Ja
  • Spiel- und Sportzimmer Ja
  • Geschirrspüler Ja
  • Nichtraucher Ja
  • Klimafreundlich Ja
  • Inklusive Verbrauch Ja

Beschreibung

MIETE DIESER FERIENWOHNUNG INKL. VERBRAUCHSKOSTEN

Sehr schöne und gut ausgestattete Ferienwohnung in direkter Lage am Tranum Strand. Hier wohnst du wirklich strandnah – vom Apartment sind es nur 130 Meter bis zum Wasser. Der Zugang ist leicht und ohne steile Dünen, die den Weg erschweren könnten. Zur Ferienwohnung gehört ein gemeinsames Hallenbad und eine Sauna (geöffnet ab Ostern bis einschließlich Woche 42). Der Außenpool ist von Woche 27 bis 33 geöffnet. Hier erwartet dich ein schöner Urlaub mit einem großen und abwechslungsreichen Angebot an Aktivitäten direkt vor der Tür.

Willkommen in deinem Ferienhaus
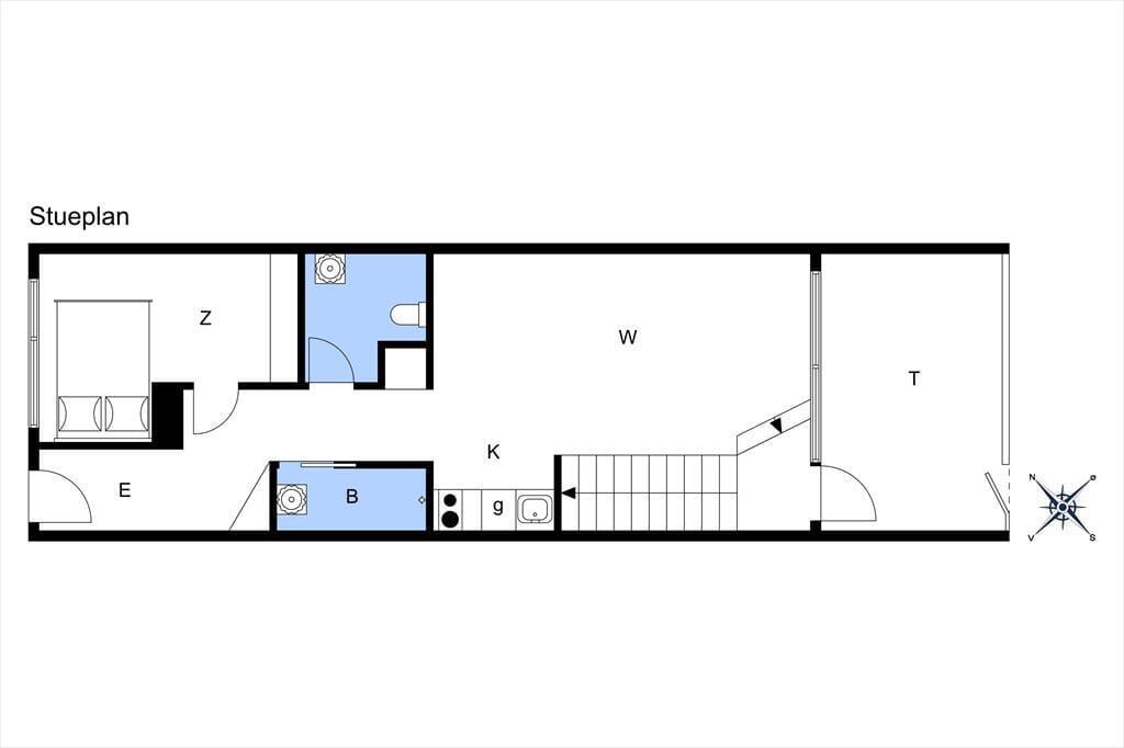
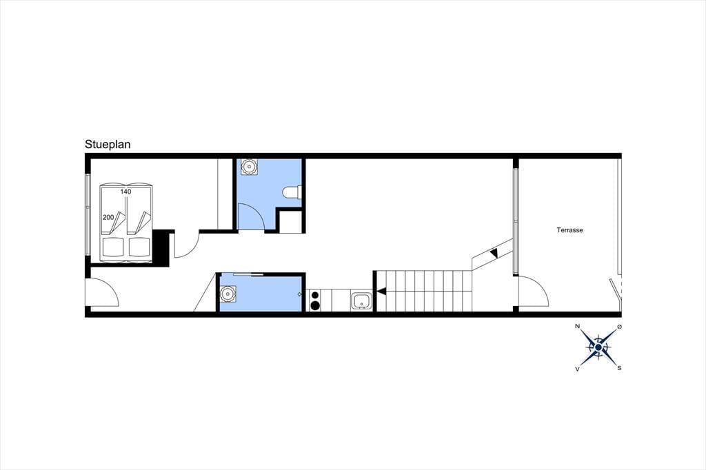
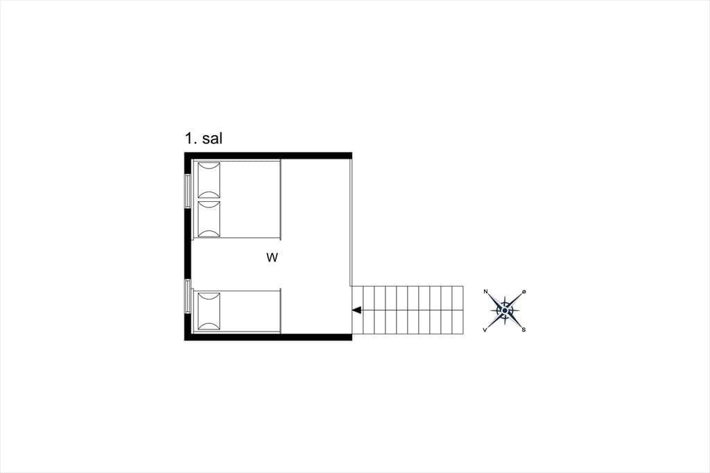
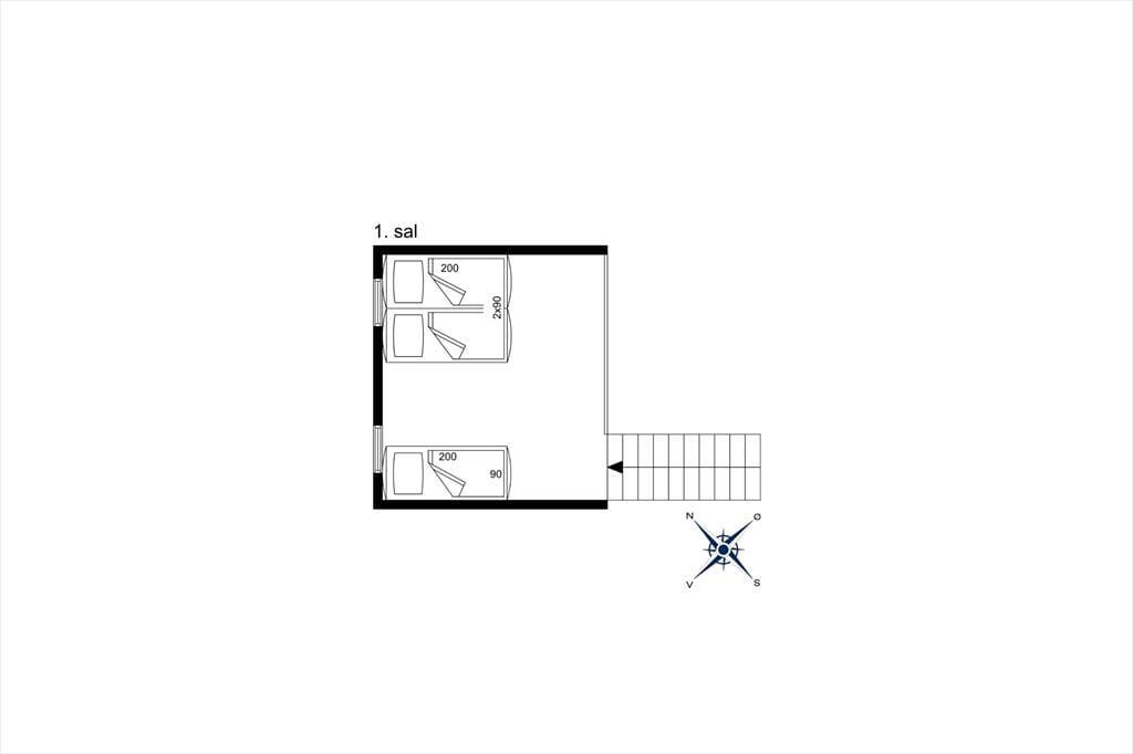
Die Wohnung befindet sich im „Tranum Klitgaard“ und ist in einem sehr gepflegten Zustand. Es herrscht eine helle und einladende Atmosphäre, und die Einrichtung im charmanten nordischen Stil umfasst schöne Bodenfliesen und weiß gestrichene Backsteinwände. Im Erdgeschoss bietet das Ferienapartment einen offenen Wohnbereich mit Wohnzimmer und einer modernen, gut ausgestatteten Küche – unter anderem mit Geschirrspüler. Hier kann man kochen und gleichzeitig am Esstisch das Gespräch mitverfolgen. Es gibt zudem ein Schlafzimmer mit Doppelbett sowie ein Badezimmer im Erdgeschoss. Im Obergeschoss befindet sich ein weiteres geräumiges Schlafzimmer.

Genieße das Leben im Freien
Vom Wohnzimmer aus gelangst du auf eine schöne Terrasse, auf der ihr die Natur genießen oder auf dem Grill Essen zubereiten könnt. Das Gebiet, das früher als Ferienzentrum diente, bietet zudem eine Vielzahl an Einrichtungen, die ihr kostenlos nutzen könnt. Dazu gehören ein gemeinsames Hallenbad und eine Sauna (geöffnet von Ostern bis einschließlich Woche 42), sowie in den Sommermonaten von Woche 27 bis 33 der Außenpool. Auf dem Parkplatz stehen sechs Clever-Ladestationen für Elektroautos zur Verfügung (gegen Bezahlung), sodass das Aufladen des Autos problemlos während des Urlaubs erfolgen kann.

Entdecke deine Umgebung
Tranum gehört zu den schönsten Gebieten der Jammerbucht – geprägt von großen Dünenplantagen mit Wäldern, Seen, Heideflächen, herrlichen Aussichtspunkten und guten Chancen, Vögel, Damwild und Rothirsche in freier Natur zu beobachten. Die Region bietet viele Wege zum Joggen und Wandern, und Mountainbike-Fahrer schätzen die hügeligen und anspruchsvollen Routen. Tranum Strand bedeutet weißer Sand, blaues Wasser und hohe Dünen – ideal und sicher für Kinder zum Spielen am Wasser. Besuche auch das Gebiet bei Svinklovene und Fosdalen und mache einen Spaziergang auf den Höhenzügen, die in der Eiszeit entstanden sind – die Belohnung ist ein fantastischer Blick über die wunderschöne Nordsee.

Denken Sie daran, dass Sie bei uns in Jammerbugt immer Bollerwagen, Kinderstühle und Kinderbetten ausleihen können. Sie können diese direkt im Büro abholen und nach Ihrem Urlaub wieder zurückbringen.

Zu der Ferienwohnung gehört ein gemeinsamer Swimmingpool mit Sauna (offen ab Ostern bis einschließlich Woche 42). Außen Pool ab der Woche 27 offen und bis einschließlich Woche 33.

Ausstattung

  • Hausinfo.

    • Anzahl Erw.
      4
    • Anzahl Haustiere
      2
    • Baujahr
      1977
    • Dusche
    • Gemeinschaftspool / Außenpool
      Geöffnet von Woche 27 bis Woche 33
    • Gemeinschaftspool / Innenpool
      Geöffnet von Ostern bis Woche 42
    • Grundstück / Gemeinschaftsgrund
      800 m²
    • Hausareal
      63 m²
    • Renovierungsjahr
      2024
    • WC
  • Entfernungen

    • Entfernung Einkauf / Ganzjahresgeschäft
      4,8 km
    • Entfernung Meer
      200 m
    • Entfernung Restaurant
      100 m
    • Entfernung Strand / Sand-, Kieselstrand
      130 m
    • Entfernung zum Golfplatz
      12,5 km
  • Energie/Heizung

    • Elektroheizung
    • Wärmepumpe
  • Küchengeräte

    • Abzugshaube
    • Herd
    • Kaffeemaschine
    • Kühlschrank m/Gefrierfach
    • Spülmaschine
    • Wasserkocher
  • Multimedien

    • Deutsche Kanäle
    • Dän. TV
      Inkl. TV2
    • Gratis Wi-Fi - Über 20 Mbit
    • Kabel TV
    • Norw. TV
    • Schwedisches TV
    • TV
  • Extra

    • Aktivitätshaus
    • Für Wanderer
    • Tischtennis
      Gemeinsamer Aktivitätsraum
  • Draußen

    • Gartenmöbel
    • Gemeinsamer Parkplatz
    • Offene Terrasse
    • Sonnenschirm
      1
  • Diverse

    • Doppelbett 140x200 cm
    • Doppelbett 2x90x200 cm
    • Einzelbett 90X200 cm
    • Fußbodenheizung
    • Markierte Wanderwege in der Nähe
  • Regeln

    • Aufladung von Elektroautos nicht erlaubt
    • Haustiere: alle Arten erlaubt
    • Rauchen verboten
  • Preis inbegriffen

    • Endreinigung inkl.
    • Heizung inkl.
    • Strom inkl.
    • Verbrauch inkl.
    • Wasser inkl.

Preise und Kalender

Kalender

Ankunft
Vorheriger Monat Nächster Monat
   Verfügbarkeit am ausgewählten Datum prüfen
Frei
Nicht frei
   Ankunft möglich
Dauer

Preis

Zeitraum
Ankunft
Abreise
Dauer
1 Woche
Personen
Bis zu 4 Personen

Bitte beachten

Ankunftszeit wurde nicht ausgewählt.
Vertrags- und Mietbedingungen