Alternative Objekte
Gemütliches Ferienhaus mit Sauna und Whirlpool
Ferienhaus - 6 Personen - Gyvelvej - Stauning - 6900 - Skjern
6 Personen
Objekt Nr.: 121-24-3138
Modernes Ferienhaus in Skjern mit Sauna, Whirlpool und großzügigem Naturgrundstück für entspannte Urlaubstage.
- Schlafzimmer 3
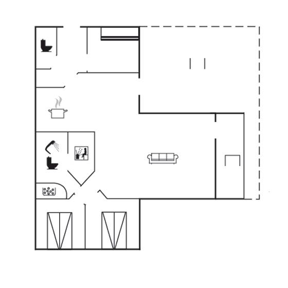
- Badezimmer 1
- Wohnfläche 129 m²
- Grundstück 1.000 m²
- Haustiere Nicht erlaubt
- Kurzurlaub möglich Ja
- Entfernung Wasser 400 m
- Einkaufen 5 km
- Whirlpool Ja
- Sauna Ja
- Internet Ja
- Kaminofen Ja
- Waschmaschine Ja
- Trockner Ja
- Geschirrspüler Ja
- Nichtraucher Ja
- Klimafreundlich Ja
Beschreibung
Ein schönes und gepflegtes Ferienhaus, bei dem die Eigentümer sowohl außen als auch innen ihren persönlichen Stil eingebracht haben.
Das Ferienhaus hat eine gute Wohnfläche, der sicherstellt, dass der gesamte Raum perfekt genutzt wird. Die offene Küche und der Wohnbereich des Hauses werden der natürliche Treffpunkt während des Urlaubs sein.
Einrichtung
Das Ferienhaus eignet sich für 6 Personen. Die Ferienunterkunft hat eine Wohnfläche von 129 m² und wurde 2011 gebaut. Haustiere dürfen nicht mitgebracht werden. In der Ferienunterkunft ist eine energiesparender Luft zu Luft Wärmepumpe installiert. Fußbodenheizung in der Diele. Die Ferienunterkunft ist mit Waschmaschine ausgestattet. Wäschetrockner. Tiefkühlmöglichkeit mit 40 Liter Nutzinhalt. Es gibt außerdem einen Kaminofen. Für die jüngsten Feriengäste ist 1 Kinderhochstuhl vorhanden.
Draußen
Die Ferienunterkunft liegt auf einem 1000 m² großen Naturgrundstück. Die Entfernung zum Fjord beträgt 400 m. Die nächste Einkaufsmöglichkeit liegt 5000 m entfernt. In einem Abstand von 14000 m gibt es einen Golfplatz. Es steht ein offenes Terrassenareal zur Verfügung. Außerdem gibt es überdachte Terrasse. Die Entfernung zu einem Spielplatz beträgt 300 m.Lagerfeuerstelle. Es steht ein Carport zur Verfügung. Parkplatz auf dem Grundstück.
Schlafverhältnisse
Die Schlafplätze verteilen sich auf 3 Schlafräume. 4 Schlafplätze in Doppelbetten. 2 Schlafplätze in einem Etagenbett. Ferner steht ein Kinderbett zur Verfügung.
Küche
Die Küche ist mit Kühlschrank ausgestattet. Außerdem gibt es 4 Keramik-Kochfelder, Umluftofen, Mikrowelle sowie Geschirrspüler. Fußbodenheizung in der Küche.
WC und Bad
Es gibt 1 Badezimmer mit Duschnische und 2 Toiletten, davon 1 Gästetoilette. Fußbodenheizung in 1 Badezimmer. Fußbodenheizung in der Gästetoilette. Es steht eine Sauna zur Verfügung in der Sie sich so richtig entspannen können.
Whirlpool
Entspannen Sie sich im Innen-Durchlauf-Whirlpool für 2 Personen.
Multimedien
In der Ferienunterkunft gibt es 1 Fernseher mit Smart-TV.1 Bluetooth-Lautsprecher.Playstation 3. Nintendo Wii. 1-3 dänische Fernsehsender. Mindestens 4 deutsche Fernsehsender. Es steht kabellose Internetverbindung zur Verfügung.
Wissenswertes
Keine Vermietung an Jugendgruppen, in denen alle 15-25 Jahre sind. Rauchen ist nicht zugelassen. Bei Nichtbeachtung dieses Verbots wird eine Gebühr von mindestens EUR 420,- erhoben.
Einrichtung
Das Ferienhaus eignet sich für 6 Personen. Die Ferienunterkunft hat eine Wohnfläche von 129 m² und wurde 2011 gebaut. Haustiere dürfen nicht mitgebracht werden. In der Ferienunterkunft ist eine energiesparender Luft zu Luft Wärmepumpe installiert. Fußbodenheizung in der Diele. Die Ferienunterkunft ist mit Waschmaschine ausgestattet. Wäschetrockner. Tiefkühlmöglichkeit mit 40 Liter Nutzinhalt. Es gibt außerdem einen Kaminofen. Für die jüngsten Feriengäste ist 1 Kinderhochstuhl vorhanden.
Draußen
Die Ferienunterkunft liegt auf einem 1000 m² großen Naturgrundstück. Die Entfernung zum Fjord beträgt 400 m. Die nächste Einkaufsmöglichkeit liegt 5000 m entfernt. In einem Abstand von 14000 m gibt es einen Golfplatz. Es steht ein offenes Terrassenareal zur Verfügung. Außerdem gibt es überdachte Terrasse. Die Entfernung zu einem Spielplatz beträgt 300 m.Lagerfeuerstelle. Es steht ein Carport zur Verfügung. Parkplatz auf dem Grundstück.
Schlafverhältnisse
Die Schlafplätze verteilen sich auf 3 Schlafräume. 4 Schlafplätze in Doppelbetten. 2 Schlafplätze in einem Etagenbett. Ferner steht ein Kinderbett zur Verfügung.
Küche
Die Küche ist mit Kühlschrank ausgestattet. Außerdem gibt es 4 Keramik-Kochfelder, Umluftofen, Mikrowelle sowie Geschirrspüler. Fußbodenheizung in der Küche.
WC und Bad
Es gibt 1 Badezimmer mit Duschnische und 2 Toiletten, davon 1 Gästetoilette. Fußbodenheizung in 1 Badezimmer. Fußbodenheizung in der Gästetoilette. Es steht eine Sauna zur Verfügung in der Sie sich so richtig entspannen können.
Whirlpool
Entspannen Sie sich im Innen-Durchlauf-Whirlpool für 2 Personen.
Multimedien
In der Ferienunterkunft gibt es 1 Fernseher mit Smart-TV.1 Bluetooth-Lautsprecher.Playstation 3. Nintendo Wii. 1-3 dänische Fernsehsender. Mindestens 4 deutsche Fernsehsender. Es steht kabellose Internetverbindung zur Verfügung.
Wissenswertes
Keine Vermietung an Jugendgruppen, in denen alle 15-25 Jahre sind. Rauchen ist nicht zugelassen. Bei Nichtbeachtung dieses Verbots wird eine Gebühr von mindestens EUR 420,- erhoben.
Unsere Gästebewertungen Externe Bewertungen
Ausstattung
-
Bitte beachten
-
Keine Jugendgruppen auf Anfrage
-
Rauchen ist verboten
-
-
Draußen
-
Carport
-
Einlass400 m
-
Feuerstelle
-
Geschäft5 km
-
Golfplatz14 km
-
Größe des Grundstücks1000 m²
-
Naturstandort
-
Parkplatz beim Haus
-
Spielplatz300
-
Terrasse
-
Überdachte Terrasse
-
-
Einrichtung
-
Anzahl Erwachsene inkl. 4-11 Jahre6
-
Baujahr2011
-
Bebaute Fläche129 m²
-
Ferienhaus
-
Fußbodenheizung im Flur
-
Gefrierkapazität (Anzahl Liter)40
-
Hochstuhl1
-
Holzofen1
-
Waschmaschine1
-
Wärmepumpe
-
Wärmepumpe Luft zu Luft
-
Wäschetrockner1
-
-
Küche
-
Anzahl der Keramikkochplatten4
-
Fußbodenheizung
-
Heißluftofen1
-
Kühlschrank1
-
Mikrowelle1
-
Spülmaschine1
-
-
Multimedien
-
> 3 deutsche Sender
-
0-3 dänische Kanäle
-
Anzahl der Fernseher1
-
Bluetooth Lautsprecher1
-
Internet drahtlos
-
Nintendo Wii
-
Playstation 3
-
Smart TV1
-
-
Schlafverhältnisse
-
Anzahl der Schlafzimmer3
-
Doppelbett (Anzahl der Schlafplätze)4
-
Etagenbett (Anzahl der Schlafplätze)2
-
Kinderbett1
-
-
WC und Bad
-
Anzahl der Badezimmer1
-
Anzahl der Gästebäder1
-
Duschkabine
-
Fußbodenheizung1
-
Fußbodenheizung1
-
Sauna
-
Toiletten2
-
-
Whirlpool
-
Innen-Whirlpool (Anzahl Personen)2
-
-
Zugang zur Ferienunterkunft
-
Schlüsselkasten mit Code
-
Kurzurlaub
Es besteht eine begrenzte Möglichkeit das ganze Jahr einen Kurzurlaub zu machen, typischerweise ausserhalb der Hochsaison.
Preise und Kalender
Kalender
Dauer
Preis
Zeitraum
- Ankunft
- Abreise
- Dauer
- 1 Woche
Personen
Bis zu 6 Personen
Bitte beachten
Ankunftszeit wurde nicht ausgewählt.