Alternative Objekte
Ferienhaus mit Sauna und Whirlpool in Skallerup
Ferienhaus - 8 Personen - Hyrdehundsvej - Skallerup Klit - 9800 - Hjörring
8 Personen
Objekt Nr.: 121-10-7070
Komfortables Ferienhaus in Skallerup mit Sauna, Whirlpool und großem Naturgrundstück nahe dem Meer.
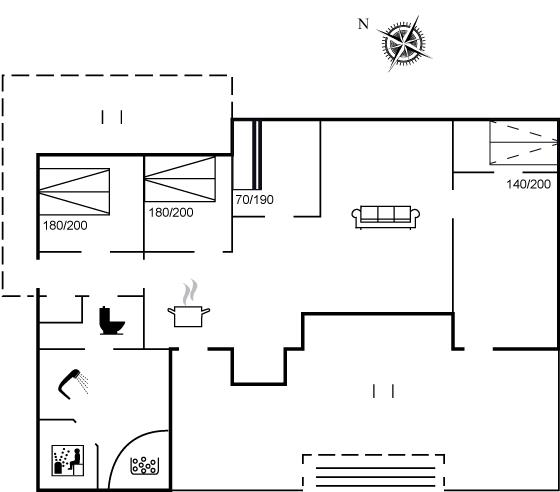
- Schlafzimmer 4
- Badezimmer 1
- Wohnfläche 93 m²
- Grundstück 2.900 m²
- Haustiere 1
- Kurzurlaub möglich Nein
- Entfernung Wasser 1 km
- Einkaufen 900 m
- Whirlpool Ja
- Sauna Ja
- Internet Ja
- Satelliten-/Kabel TV Ja
- Kaminofen Ja
- Wasserblick Ja
- Waschmaschine Ja
- Trockner Ja
- Geschirrspüler Ja
- Nichtraucher Ja
- Klimafreundlich Ja
Beschreibung
Schönes Ferienhaus in Skallerup, ganz in der Nähe eines herrlichen Badestrandes und schöner Natur, wo du Spaziergänge unternehmen und nicht zuletzt das Skallerup Seaside mit tropischem Badeparadies, Aktivitätszentrum, römischem Bad, Bowling und Einkaufsmöglichkeiten besuchen kannst.
Das Ferienhaus eignet sich sowohl für Familien als auch für Paare.
Einrichtung
Das Ferienhaus eignet sich für 8 Personen sowie 1 Kleinkind bis zu 3 Jahren. Die Ferienunterkunft hat eine Wohnfläche von 93 m² und wurde 1975 gebaut. 1992 wurde die Ferienunterkunft teilweise renoviert. Es ist erlaubt 1 Haustier mitzubringen. Die Ferienunterkunft ist mit energiesparender Wärmepumpe ausgestattet. Es gibt Solarzellen. Die Ferienunterkunft ist mit Waschmaschine ausgestattet. Wäschetrockner. Tiefkühlmöglichkeit mit 60 Liter Nutzinhalt. Es gibt außerdem einen Kaminofen.
Draußen
Die Ferienunterkunft liegt auf einem 2900 m² großen Naturgrundstück. Die Entfernung zum Meer beträgt 1000 m. Die nächste Einkaufsmöglichkeit liegt 900 m entfernt. Es steht ein 60 m² Terrassenareal zur Verfügung. Geräteraum. Schaukel. Trampolin. Spielturm. Rutsche. Es steht ein Grill zur Verfügung. Parkplatz auf dem Grundstück.
Schlafverhältnisse
Die Schlafplätze verteilen sich auf 4 Schlafräume. 4 Schlafplätze in Doppelbetten. 2 Schlafplätze in einem Etagenbett. 2 Schlafplätze auf einer Doppelschlafcouch. Ferner steht ein Kinderbett zur Verfügung.
Küche
Die Küche ist mit Kühlschrank ausgestattet. Außerdem gibt es 4 Keramik-Kochfelder, Umluftofen, Mikrowelle sowie Geschirrspüler.
WC und Bad
Es gibt 1 Badezimmer mit Duschnische und 1 Toilette.. Fußbodenheizung in 1 Badezimmer. Es steht eine Sauna zur Verfügung in der Sie sich so richtig entspannen können.
Whirlpool
Entspannen Sie sich im Innen-Durchlauf-Whirlpool für 2 Personen.
Multimedien
In der Ferienunterkunft gibt es einen Fernseher. Radio. Mindestens 4 dänische Fernsehsender. 1-3 schwedische Fernsehsender. 1-3 norwegische Fernsehsender. Mindestens 4 deutsche Fernsehsender. Es steht kabellose Internetverbindung zur Verfügung.
Wissenswertes
Keine Vermietung an Jugendgruppen, in denen alle 15-25 Jahre sind. Rauchen ist nicht zugelassen. Bei Nichtbeachtung dieses Verbots wird eine Gebühr von mindestens EUR 420,- erhoben.
Einrichtung
Das Ferienhaus eignet sich für 8 Personen sowie 1 Kleinkind bis zu 3 Jahren. Die Ferienunterkunft hat eine Wohnfläche von 93 m² und wurde 1975 gebaut. 1992 wurde die Ferienunterkunft teilweise renoviert. Es ist erlaubt 1 Haustier mitzubringen. Die Ferienunterkunft ist mit energiesparender Wärmepumpe ausgestattet. Es gibt Solarzellen. Die Ferienunterkunft ist mit Waschmaschine ausgestattet. Wäschetrockner. Tiefkühlmöglichkeit mit 60 Liter Nutzinhalt. Es gibt außerdem einen Kaminofen.
Draußen
Die Ferienunterkunft liegt auf einem 2900 m² großen Naturgrundstück. Die Entfernung zum Meer beträgt 1000 m. Die nächste Einkaufsmöglichkeit liegt 900 m entfernt. Es steht ein 60 m² Terrassenareal zur Verfügung. Geräteraum. Schaukel. Trampolin. Spielturm. Rutsche. Es steht ein Grill zur Verfügung. Parkplatz auf dem Grundstück.
Schlafverhältnisse
Die Schlafplätze verteilen sich auf 4 Schlafräume. 4 Schlafplätze in Doppelbetten. 2 Schlafplätze in einem Etagenbett. 2 Schlafplätze auf einer Doppelschlafcouch. Ferner steht ein Kinderbett zur Verfügung.
Küche
Die Küche ist mit Kühlschrank ausgestattet. Außerdem gibt es 4 Keramik-Kochfelder, Umluftofen, Mikrowelle sowie Geschirrspüler.
WC und Bad
Es gibt 1 Badezimmer mit Duschnische und 1 Toilette.. Fußbodenheizung in 1 Badezimmer. Es steht eine Sauna zur Verfügung in der Sie sich so richtig entspannen können.
Whirlpool
Entspannen Sie sich im Innen-Durchlauf-Whirlpool für 2 Personen.
Multimedien
In der Ferienunterkunft gibt es einen Fernseher. Radio. Mindestens 4 dänische Fernsehsender. 1-3 schwedische Fernsehsender. 1-3 norwegische Fernsehsender. Mindestens 4 deutsche Fernsehsender. Es steht kabellose Internetverbindung zur Verfügung.
Wissenswertes
Keine Vermietung an Jugendgruppen, in denen alle 15-25 Jahre sind. Rauchen ist nicht zugelassen. Bei Nichtbeachtung dieses Verbots wird eine Gebühr von mindestens EUR 420,- erhoben.
Ausstattung
-
Ausblick
-
Meerblick vom Standort
-
-
Bitte beachten
-
Keine Arbeiter auf Anfrage
-
Keine Jugendgruppen auf Anfrage
-
Rauchen ist verboten
-
-
Draußen
-
Geschäft900 m
-
Gleiten
-
Grill1
-
Größe des Grundstücks2900 m²
-
Meer1 km
-
Naturstandort
-
Parkplatz beim Haus
-
Schwingen
-
Spielturm
-
Terrasse60 m²
-
Trampolin
-
Werkzeugschuppen
-
-
Einrichtung
-
Anzahl Erwachsene inkl. 4-11 Jahre8
-
Anzahl Kinder (0-3 Jahre)1
-
Baujahr1975
-
Bebaute Fläche93 m²
-
Ferienhaus
-
Gefrierkapazität (Anzahl Liter)60
-
Haustiere1
-
Holzofen1
-
Jahr der Renovierung1992
-
Solarwärme
-
Waschmaschine1
-
Wärmepumpe
-
Wäschetrockner1
-
-
Küche
-
Anzahl der Keramikkochplatten4
-
Heißluftofen1
-
Kühlschrank1
-
Mikrowelle1
-
Spülmaschine1
-
-
Multimedien
-
> 3 deutsche Sender
-
> 3 dänische Sender
-
0-3 norwegische Kanäle
-
0-3 schwedische Kanäle
-
Anzahl der Fernseher1
-
Internet drahtlos
-
Radio
-
-
Schlafverhältnisse
-
Anzahl der Schlafzimmer4
-
Doppelbett (Anzahl der Schlafplätze)4
-
Etagenbett (Anzahl der Schlafplätze)2
-
Kinderbett1
-
Schlafsofa, Doppelbett (Anzahl der Schlafplätze)2
-
-
WC und Bad
-
Anzahl der Badezimmer1
-
Duschkabine
-
Fußbodenheizung1
-
Sauna
-
Toiletten1
-
-
Whirlpool
-
Innen-Whirlpool (Anzahl Personen)2
-
-
Zugang zur Ferienunterkunft
-
Schlüsselkasten mit Code
-
Preise und Kalender
Kalender
Dauer
Preis
Zeitraum
- Ankunft
- Abreise
- Dauer
- 1 Woche
Personen
Bis zu 8 Personen
Bitte beachten
Ankunftszeit wurde nicht ausgewählt.