Alternative Objekte
Ferienhaus mit Meerblick, Sauna & Whirlpool
Ferienhaus - 8 Personen - Knoldebækvej - Skallerup Klit - 9800 - Hjörring
8 Personen
Objekt Nr.: 121-10-7052
Typisch dänisches Ferienhaus mit Meerblick, Sauna und Whirlpool nahe Skallerup Klit in Dänemark.
- Schlafzimmer 3
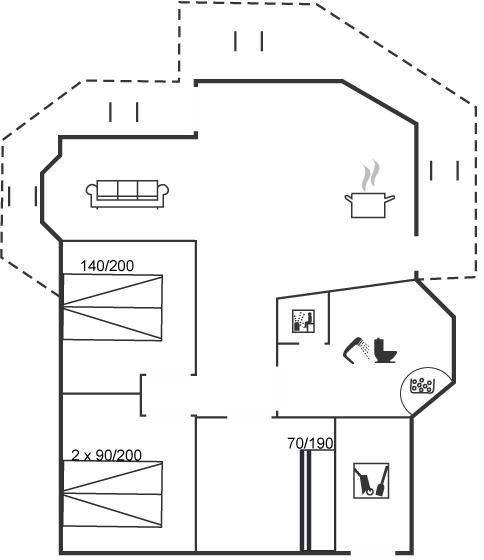
- Badezimmer 1
- Wohnfläche 90 m²
- Grundstück 1.300 m²
- Haustiere 1
- Kurzurlaub möglich Ja
- Entfernung Wasser 460 m
- Einkaufen 800 m
- Whirlpool Ja
- Sauna Ja
- Internet Ja
- Satelliten-/Kabel TV Ja
- Kaminofen Ja
- Wasserblick Ja
- Waschmaschine Ja
- Geschirrspüler Ja
- Nichtraucher Ja
- Klimafreundlich Ja
Beschreibung
Ein gut gelegenes, typisch dänisches Ferienhaus. Sowohl vom Haus als auch vom Grundstück können Sie das Meer ahnen. Das Ferienhaus liegt dicht an der Ferienanlage "Skallerup Klit" mit römischem Bad, Sporthalle, Badeland und Bowlingcenter sowie der herrlichen Natur, die zu Spaziergängen einlädt.
Einrichtung
Das Ferienhaus eignet sich für 8 Personen. 2 der Schlafplätze eignen sich jedoch nur für größere Kinder (4-11 Jahre). Die Ferienunterkunft hat eine Wohnfläche von 90 m² und wurde 1996 gebaut. Es ist erlaubt 1 Haustier mitzubringen. Die Ferienunterkunft ist mit energiesparender Wärmepumpe ausgestattet. Die Ferienunterkunft ist mit Waschmaschine ausgestattet. Tiefkühlmöglichkeit mit 30 Liter Nutzinhalt. Es gibt außerdem einen Kaminofen. Für die jüngsten Feriengäste ist 1 Kinderhochstuhl vorhanden.
Draußen
Die Ferienunterkunft liegt auf einem 1300 m² großen Naturgrundstück. Die Entfernung zum Meer beträgt 460 m. Die nächste Einkaufsmöglichkeit liegt 800 m entfernt. Es steht ein 40 m² Terrassenareal zur Verfügung. Schaukel. Es steht ein Kugelgrill zur Verfügung. Es steht ein Carport zur Verfügung. Parkplatz auf dem Grundstück.
Schlafverhältnisse
Die Schlafplätze verteilen sich auf 3 Schlafräume. 4 Schlafplätze in Doppelbetten. 2 Schlafplätze in einem Etagenbett. 2 Schlafplätze auf Matratzen. 2 von diesen Schlafplätzen befinden sich im offenen Obergeschoss. Ferner steht ein Kinderbett zur Verfügung.
Küche
Die Küche ist mit Kühlschrank ausgestattet. Außerdem gibt es 4 elektrische Kochplatten, Backofen, Mikrowelle sowie Geschirrspüler.
WC und Bad
Es gibt 1 Badezimmer mit Duschnische und 1 Toilette.. Fußbodenheizung in 1 Badezimmer. Es steht eine Sauna zur Verfügung in der Sie sich so richtig entspannen können.
Whirlpool
Entspannen Sie sich im Innen-Durchlauf-Whirlpool für 2 Personen.
Multimedien
In der Ferienunterkunft gibt es einen Fernseher. DVD-Player. Radio. Stereoanlage. CD-Player. Mindestens 4 dänische Fernsehsender. 1-3 schwedische Fernsehsender. 1-3 norwegische Fernsehsender. Mindestens 4 deutsche Fernsehsender. 1-3 englische Fernsehsender. Es steht kabellose Internetverbindung zur Verfügung.
Wissenswertes
Keine Vermietung an Jugendgruppen, in denen alle 15-25 Jahre sind. Rauchen ist nicht zugelassen. Bei Nichtbeachtung dieses Verbots wird eine Gebühr von mindestens EUR 420,- erhoben.
Einrichtung
Das Ferienhaus eignet sich für 8 Personen. 2 der Schlafplätze eignen sich jedoch nur für größere Kinder (4-11 Jahre). Die Ferienunterkunft hat eine Wohnfläche von 90 m² und wurde 1996 gebaut. Es ist erlaubt 1 Haustier mitzubringen. Die Ferienunterkunft ist mit energiesparender Wärmepumpe ausgestattet. Die Ferienunterkunft ist mit Waschmaschine ausgestattet. Tiefkühlmöglichkeit mit 30 Liter Nutzinhalt. Es gibt außerdem einen Kaminofen. Für die jüngsten Feriengäste ist 1 Kinderhochstuhl vorhanden.
Draußen
Die Ferienunterkunft liegt auf einem 1300 m² großen Naturgrundstück. Die Entfernung zum Meer beträgt 460 m. Die nächste Einkaufsmöglichkeit liegt 800 m entfernt. Es steht ein 40 m² Terrassenareal zur Verfügung. Schaukel. Es steht ein Kugelgrill zur Verfügung. Es steht ein Carport zur Verfügung. Parkplatz auf dem Grundstück.
Schlafverhältnisse
Die Schlafplätze verteilen sich auf 3 Schlafräume. 4 Schlafplätze in Doppelbetten. 2 Schlafplätze in einem Etagenbett. 2 Schlafplätze auf Matratzen. 2 von diesen Schlafplätzen befinden sich im offenen Obergeschoss. Ferner steht ein Kinderbett zur Verfügung.
Küche
Die Küche ist mit Kühlschrank ausgestattet. Außerdem gibt es 4 elektrische Kochplatten, Backofen, Mikrowelle sowie Geschirrspüler.
WC und Bad
Es gibt 1 Badezimmer mit Duschnische und 1 Toilette.. Fußbodenheizung in 1 Badezimmer. Es steht eine Sauna zur Verfügung in der Sie sich so richtig entspannen können.
Whirlpool
Entspannen Sie sich im Innen-Durchlauf-Whirlpool für 2 Personen.
Multimedien
In der Ferienunterkunft gibt es einen Fernseher. DVD-Player. Radio. Stereoanlage. CD-Player. Mindestens 4 dänische Fernsehsender. 1-3 schwedische Fernsehsender. 1-3 norwegische Fernsehsender. Mindestens 4 deutsche Fernsehsender. 1-3 englische Fernsehsender. Es steht kabellose Internetverbindung zur Verfügung.
Wissenswertes
Keine Vermietung an Jugendgruppen, in denen alle 15-25 Jahre sind. Rauchen ist nicht zugelassen. Bei Nichtbeachtung dieses Verbots wird eine Gebühr von mindestens EUR 420,- erhoben.
Unsere Gästebewertungen Externe Bewertungen
Ausstattung
-
Ausblick
-
Meerblick vom Ferienhaus
-
Meerblick vom Standort
-
-
Bitte beachten
-
Keine Jugendgruppen auf Anfrage
-
Rauchen ist verboten
-
-
Draußen
-
Carport
-
Geschäft800 m
-
Grill1
-
Größe des Grundstücks1300 m²
-
Meer460 m
-
Naturstandort
-
Parkplatz beim Haus
-
Schwingen
-
Terrasse40 m²
-
-
Einrichtung
-
Anzahl der Kinder 4-11 Jahre2
-
Anzahl Erwachsene inkl. 4-11 Jahre8
-
Baujahr1996
-
Bebaute Fläche90 m²
-
Ferienhaus
-
Gefrierkapazität (Anzahl Liter)30
-
Haustiere1
-
Hochstuhl1
-
Holzofen1
-
Waschmaschine1
-
Wärmepumpe
-
-
Küche
-
Anzahl elektrischer Kochplatten4
-
Backofen1
-
Kühlschrank1
-
Mikrowelle1
-
Spülmaschine1
-
-
Multimedien
-
> 3 deutsche Sender
-
> 3 dänische Sender
-
0-3 englische Kanäle
-
0-3 norwegische Kanäle
-
0-3 schwedische Kanäle
-
Anzahl der Fernseher1
-
CD-Player
-
DVD1
-
Internet drahtlos
-
Radio
-
Stereoanlage
-
-
Schlafverhältnisse
-
Anzahl der Schlafzimmer3
-
Doppelbett (Anzahl der Schlafplätze)4
-
Etagenbett (Anzahl der Schlafplätze)2
-
Kinderbett1
-
Matratzen (Anzahl der Schlafplätze)2
-
Schlafempore (Anzahl der Schlafplätze)
-
Schlafmöglichkeit nicht im Schlafzimmer
-
-
WC und Bad
-
Anzahl der Badezimmer1
-
Duschkabine
-
Fußbodenheizung1
-
Sauna
-
Toiletten1
-
-
Whirlpool
-
Innen-Whirlpool (Anzahl Personen)2
-
-
Zugang zur Ferienunterkunft
-
Schlüsselkasten mit Code
-
Kurzurlaub
Es besteht eine begrenzte Möglichkeit das ganze Jahr einen Kurzurlaub zu machen, typischerweise ausserhalb der Hochsaison.
Preise und Kalender
Kalender
Dauer
Preis
Zeitraum
- Ankunft
- Abreise
- Dauer
- 1 Woche
Personen
Bis zu 8 Personen
Bitte beachten
Ankunftszeit wurde nicht ausgewählt.