Alternative Objekte
Gemütliches Ferienhaus nahe Sejerø-Bucht
Ferienhaus - 4 Personen - Nørregårdsvej - Sejerø Bugt - 4560 - Vig
4 Personen
Objekt Nr.: 121-90-3059
Gemütliches Ferienhaus in Hønsinge Lyng bei der Sejerø-Bucht mit kinderfreundlichen Stränden und viel Natur.
- Schlafzimmer 2
- Badezimmer 1
- Wohnfläche 60 m²
- Grundstück 1.650 m²
- Haustiere 2
- Kurzurlaub möglich Ja
- Entfernung Wasser 2 km
- Einkaufen 1.400 m
- Internet Ja
- Waschmaschine Ja
- Geschirrspüler Ja
- Nichtraucher Ja
- Klimafreundlich Ja
Beschreibung
Dieses gemütliche Ferienhaus liegt im beliebten Ferienhausgebiet Hønsinge Lyng bei der Sejerø-Bucht. Hier findest du weitläufige und kinderfreundliche Sandstrände, die zu den besten Badestellen Dänemarks gehören. Naturliebhaber werden das geschützte Naturgebiet Korevlerne zu schätzen wissen, das auf dem Weg zum Strand durchquert wird.
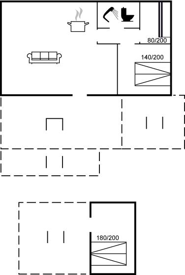
Im hellen Wohnbereich des Ferienhauses, der offen mit der Küche verbunden ist, hast du reichlich Gelegenheit, es dir gemütlich zu machen. Von hier aus gelangst du auf die schöne überdachte Terrasse mit einem tollen Blick auf den Garten. Im Haus gibt es 2 Schlafzimmer: eines mit einem Doppelbett und eines mit einem Etagenbett für zwei Personen (Hinweis: Es gibt keine Tür zum Etagenbettzimmer). Im gemütlichen Anbau im Garten stehen dir weitere 2 Schlafplätze in einem Doppelbett zur Verfügung.
Hinweis: Der Anbau ist nur in der Vermietung von Woche 15 bis einschließlich Woche 43 enthalten, sodass das Haus in dieser Zeit Platz für 6 Gäste bietet. Im restlichen Jahr ist der Anbau nicht in der Vermietung enthalten, und das Haus ist daher für „nur“ 4 Gäste ausgelegt.
Das Badezimmer verfügt über eine Duschniche, und eine Waschmaschine ist ebenfalls vorhanden. Das Haus wird energieeffizient mit einer Luft-Luft-Wärmepumpe beheizt, während im Anbau ein Elektroheizkörper vorhanden ist.
Die Umgebung bietet eine fantastische Natur, wie zum Beispiel das geschützte Gebiet Korevlerne. In den nahegelegenen Wäldern gibt es viele Möglichkeiten für Spaziergänge und Joggingrunden. Das Gebiet bietet viel Sommerleben mit Eisdielen, Einkaufsmöglichkeiten und mehreren Restaurants. Das nächste Supermarkt ist nur 1400 Meter entfernt. 850 Meter vom Haus entfernt befindet sich das „Burgerhjørnet“, ein beliebter Treffpunkt, der für seine großen Eisbecher bekannt ist. Dort gibt es auch einen Spielplatz für Kinder. Mehrere Golfplätze liegen in einem Radius von 10 Kilometern.
Neben den hervorragenden Stränden bietet die Region eine wunderschöne Natur und gemütliche Hafenstädte wie Rørvig, Nykøbing Sjælland, Havnsø oder Havnebyen auf Sjællands Odde. Dort kannst du Essen gehen, Eis kaufen oder mit den Kindern Krabben fangen. Mit Kindern ist auch ein Besuch im Freizeitpark „Sommerland Sjælland“ eine gute Idee. In der Nähe liegt außerdem der Anneberg Kulturpark mit einer Vielzahl kultureller Angebote.
Von diesem Ferienhaus aus erreichst du Kopenhagen in nur 1 Stunde und 15 Minuten mit dem Auto, wo du viele Sehenswürdigkeiten und Attraktionen der Hauptstadt erleben kannst.
Einrichtung
Das Ferienhaus eignet sich für 4 Personen sowie 1 Kleinkind bis zu 3 Jahren. Die Ferienunterkunft hat eine Wohnfläche von 60 m² und wurde 1972 gebaut. 2022 wurde die Ferienunterkunft renoviert. Es ist erlaubt 2 Haustiere mitzubringen. In der Ferienunterkunft ist eine energiesparender Luft zu Luft Wärmepumpe installiert. Die Ferienunterkunft ist mit Waschmaschine ausgestattet. Tiefkühlmöglichkeit mit 100 Liter Nutzinhalt. Für die jüngsten Feriengäste ist 1 Kinderhochstuhl vorhanden.
Draußen
Die Ferienunterkunft liegt auf einem 1650 m² großen Gartengrundstück. Die Entfernung zum Meer beträgt 2000 m. Die nächste Einkaufsmöglichkeit liegt 1400 m entfernt. In einem Abstand von 5600 m gibt es einen Golfplatz. Es steht ein 10 m² Terrassenareal zur Verfügung. Außerdem gibt es 15 m² überdachte Terrasse. Es steht ein Grill zur Verfügung. Es steht ein Carport zur Verfügung. Parkplatz auf dem Grundstück.
Schlafverhältnisse
Die Schlafplätze verteilen sich auf 2 Schlafräume. 2 Schlafplätze in einem Doppelbett. 2 Schlafplätze in einem Etagenbett.- Ferner steht ein Kinderbett zur Verfügung.
Küche
Die Küche ist mit Kühlschrank ausgestattet. Außerdem gibt es 4 Keramik-Kochfelder, Umluftofen, Mikrowelle sowie Geschirrspüler.
WC und Bad
Es gibt 1 Badezimmer mit Duschnische und 1 Toilette.
Multimedien
In der Ferienunterkunft gibt es einen Fernseher.1 Chromecast. Keine Fernsehsender - nur Streaming. Es steht kabellose Internetverbindung zur Verfügung.
Wissenswertes
Keine Vermietung an Jugendgruppen, in denen alle 15-25 Jahre sind. Rauchen ist nicht zugelassen. Bei Nichtbeachtung dieses Verbots wird eine Gebühr von mindestens EUR 420,- erhoben.
Einrichtung
Das Ferienhaus eignet sich für 4 Personen sowie 1 Kleinkind bis zu 3 Jahren. Die Ferienunterkunft hat eine Wohnfläche von 60 m² und wurde 1972 gebaut. 2022 wurde die Ferienunterkunft renoviert. Es ist erlaubt 2 Haustiere mitzubringen. In der Ferienunterkunft ist eine energiesparender Luft zu Luft Wärmepumpe installiert. Die Ferienunterkunft ist mit Waschmaschine ausgestattet. Tiefkühlmöglichkeit mit 100 Liter Nutzinhalt. Für die jüngsten Feriengäste ist 1 Kinderhochstuhl vorhanden.
Draußen
Die Ferienunterkunft liegt auf einem 1650 m² großen Gartengrundstück. Die Entfernung zum Meer beträgt 2000 m. Die nächste Einkaufsmöglichkeit liegt 1400 m entfernt. In einem Abstand von 5600 m gibt es einen Golfplatz. Es steht ein 10 m² Terrassenareal zur Verfügung. Außerdem gibt es 15 m² überdachte Terrasse. Es steht ein Grill zur Verfügung. Es steht ein Carport zur Verfügung. Parkplatz auf dem Grundstück.
Schlafverhältnisse
Die Schlafplätze verteilen sich auf 2 Schlafräume. 2 Schlafplätze in einem Doppelbett. 2 Schlafplätze in einem Etagenbett.- Ferner steht ein Kinderbett zur Verfügung.
Küche
Die Küche ist mit Kühlschrank ausgestattet. Außerdem gibt es 4 Keramik-Kochfelder, Umluftofen, Mikrowelle sowie Geschirrspüler.
WC und Bad
Es gibt 1 Badezimmer mit Duschnische und 1 Toilette.
Multimedien
In der Ferienunterkunft gibt es einen Fernseher.1 Chromecast. Keine Fernsehsender - nur Streaming. Es steht kabellose Internetverbindung zur Verfügung.
Wissenswertes
Keine Vermietung an Jugendgruppen, in denen alle 15-25 Jahre sind. Rauchen ist nicht zugelassen. Bei Nichtbeachtung dieses Verbots wird eine Gebühr von mindestens EUR 420,- erhoben.
Unsere Gästebewertungen Externe Bewertungen
Ausstattung
-
Bitte beachten
-
Keine Jugendgruppen auf Anfrage
-
Rauchen ist verboten
-
-
Draußen
-
Carport
-
Geschäft1,4 km
-
Golfplatz5,6 km
-
Grill1
-
Größe des Grundstücks1650 m²
-
Landschaftsgarten
-
Meer2 km
-
Parkplatz beim Haus
-
Terrasse10 m²
-
Überdachte Terrasse15 m²
-
-
Einrichtung
-
Anzahl Erwachsene inkl. 4-11 Jahre4
-
Anzahl Kinder (0-3 Jahre)1
-
Baujahr1972
-
Bebaute Fläche60 m²
-
Ferienhaus
-
Gefrierkapazität (Anzahl Liter)100
-
Haustiere2
-
Hochstuhl1
-
Renovierung2022
-
Waschmaschine1
-
Wärmepumpe
-
Wärmepumpe Luft zu Luft
-
-
Küche
-
Anzahl der Keramikkochplatten4
-
Heißluftofen1
-
Kühlschrank1
-
Mikrowelle1
-
Spülmaschine1
-
-
Multimedien
-
Anzahl der Fernseher1
-
Chromecast1
-
Herunterladen100
-
Hochladen100
-
Internet drahtlos
-
Keine TV-Kanäle - nur Streaming
-
-
Schlafverhältnisse
-
Anzahl der Schlafzimmer2
-
Doppelbett (Anzahl der Schlafplätze)2
-
Etagenbett (Anzahl der Schlafplätze)2
-
Kinderbett1
-
-
WC und Bad
-
Anzahl der Badezimmer1
-
Duschkabine
-
Toiletten1
-
-
Zugang zur Ferienunterkunft
-
Schlüsselkasten mit Code
-
Kurzurlaub
Es besteht eine begrenzte Möglichkeit das ganze Jahr einen Kurzurlaub zu machen, typischerweise ausserhalb der Hochsaison.
Preise und Kalender
Kalender
Dauer
Preis
Zeitraum
- Ankunft
- Abreise
- Dauer
- 1 Woche
Personen
Bis zu 4 Personen
Bitte beachten
Ankunftszeit wurde nicht ausgewählt.