Alternative Objekte
Geräumiges Ferienhaus mit Hot Tub in Rønne
Ferienhaus - 10 Personen - Nordskovvej - 3700 - Rönne
10 Personen
Objekt Nr.: 121-95-0042
Geräumiges Ferienhaus in Rønne mit Hot Tub auf großem, eingezäuntem Grundstück nahe Sandstrand und Wald.
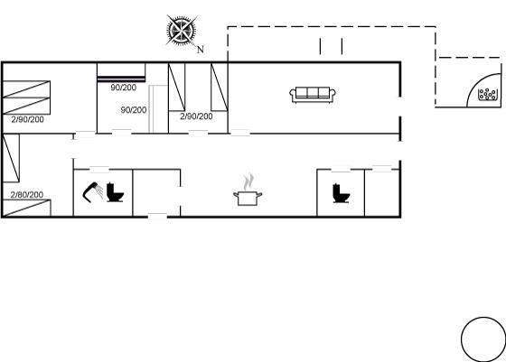
- Schlafzimmer 4
- Badezimmer 1
- Wohnfläche 118 m²
- Grundstück 1.161 m²
- Haustiere 1
- Kurzurlaub möglich Ja
- Entfernung Wasser 1 km
- Einkaufen 1.500 m
- Internet Ja
- Satelliten-/Kabel TV Ja
- Kaminofen Ja
- Eingezäunter Bereich Ja
- Waschmaschine Ja
- Trockner Ja
- Geschirrspüler Ja
- Nichtraucher Ja
Beschreibung
Dieses Haus befindet sich im Norden von Rønne, in der Nähe eines Sandstrandes und eines größeren Erholungswaldgebiets namens Nordskoven.
Das Ferienhaus ist geräumig und gut eingerichtet, mit einer schönen modernen Möblierung. Im großen Wohnküchenbereich gibt es einen Essbereich, so dass der eigentliche Wohnbereich für gemütliches Verweilen mit Fernsehen, Lesen und Plaudern genutzt werden kann, ohne durch die Arbeit in der Küche gestört zu werden.
Das Haus liegt auf einem großen, geschlossenen Grundstück, sodass die Kinder sicher spielen und die Möglichkeiten im Garten genießen können.
Der große Hot Tub wird mit Holz beheizt, und man muss die Vorbereitung der Sitzung planen. Dafür wird es sicherlich ein wahres Vergnügen sein, das warme Bad zu genießen, in dem man gemeinsam entspannen kann – es gibt Platz für 6 Erwachsene im Wildnisbad – viel Vergnügen!
Einrichtung
Das Ferienhaus eignet sich für 10 Personen. Die Ferienunterkunft hat eine Wohnfläche von 118 m² und wurde 1963 gebaut. 2023 wurde die Ferienunterkunft teilweise renoviert. Es ist erlaubt 1 Haustier mitzubringen. Die Ferienunterkunft ist mit Waschmaschine ausgestattet. Wäschetrockner. Tiefkühlmöglichkeit mit 90 Liter Nutzinhalt. Es gibt außerdem einen Kaminofen.
Draußen
Die Ferienunterkunft liegt auf einem 1161 m² großen Naturgrundstück. Das Grundstück ist eingezäunt. Die Entfernung zum Meer beträgt 1000 m. Die nächste Einkaufsmöglichkeit liegt 1500 m entfernt. In einem Abstand von 6000 m gibt es einen Golfplatz. Es steht ein offenes Terrassenareal zur Verfügung. Geräteraum. Schaukel. Sandkasten. Es steht ein Grill zur Verfügung. Es steht ein Carport zur Verfügung. Parkplatz auf dem Grundstück.
Schlafverhältnisse
Die Schlafplätze verteilen sich auf 4 Schlafräume. 2 Schlafplätze in einem Doppelbett. 4 Schlafplätze in Einzelbetten. 4 Schlafplätze in Etagenbetten.
Küche
Die Küche ist mit Kühlschrank ausgestattet. Außerdem gibt es 4 Keramik-Kochfelder, Umluftofen, Mikrowelle sowie Geschirrspüler.
WC und Bad
Es gibt 1 Badezimmer mit Dusche und 2 Toiletten, davon 1 Gästetoilette. Fußbodenheizung in 1 Badezimmer.. Badewanne.
Whirlpool
Im Hot Tub für 6 Personen können Sie den Aufenthalt im Freien genießen.
Multimedien
In der Ferienunterkunft gibt es 1 Fernseher mit Smart-TV.1 Chromecast. Radio. Mindestens 4 dänische Fernsehsender. 1-3 schwedische Fernsehsender. 1-3 norwegische Fernsehsender. Mindestens 4 deutsche Fernsehsender. Es steht kabellose Internetverbindung zur Verfügung.
Wissenswertes
Keine Vermietung an Jugendgruppen, in denen alle 15-25 Jahre sind. Rauchen ist nicht zugelassen. Bei Nichtbeachtung dieses Verbots wird eine Gebühr von mindestens EUR 420,- erhoben.
Einrichtung
Das Ferienhaus eignet sich für 10 Personen. Die Ferienunterkunft hat eine Wohnfläche von 118 m² und wurde 1963 gebaut. 2023 wurde die Ferienunterkunft teilweise renoviert. Es ist erlaubt 1 Haustier mitzubringen. Die Ferienunterkunft ist mit Waschmaschine ausgestattet. Wäschetrockner. Tiefkühlmöglichkeit mit 90 Liter Nutzinhalt. Es gibt außerdem einen Kaminofen.
Draußen
Die Ferienunterkunft liegt auf einem 1161 m² großen Naturgrundstück. Das Grundstück ist eingezäunt. Die Entfernung zum Meer beträgt 1000 m. Die nächste Einkaufsmöglichkeit liegt 1500 m entfernt. In einem Abstand von 6000 m gibt es einen Golfplatz. Es steht ein offenes Terrassenareal zur Verfügung. Geräteraum. Schaukel. Sandkasten. Es steht ein Grill zur Verfügung. Es steht ein Carport zur Verfügung. Parkplatz auf dem Grundstück.
Schlafverhältnisse
Die Schlafplätze verteilen sich auf 4 Schlafräume. 2 Schlafplätze in einem Doppelbett. 4 Schlafplätze in Einzelbetten. 4 Schlafplätze in Etagenbetten.
Küche
Die Küche ist mit Kühlschrank ausgestattet. Außerdem gibt es 4 Keramik-Kochfelder, Umluftofen, Mikrowelle sowie Geschirrspüler.
WC und Bad
Es gibt 1 Badezimmer mit Dusche und 2 Toiletten, davon 1 Gästetoilette. Fußbodenheizung in 1 Badezimmer.. Badewanne.
Whirlpool
Im Hot Tub für 6 Personen können Sie den Aufenthalt im Freien genießen.
Multimedien
In der Ferienunterkunft gibt es 1 Fernseher mit Smart-TV.1 Chromecast. Radio. Mindestens 4 dänische Fernsehsender. 1-3 schwedische Fernsehsender. 1-3 norwegische Fernsehsender. Mindestens 4 deutsche Fernsehsender. Es steht kabellose Internetverbindung zur Verfügung.
Wissenswertes
Keine Vermietung an Jugendgruppen, in denen alle 15-25 Jahre sind. Rauchen ist nicht zugelassen. Bei Nichtbeachtung dieses Verbots wird eine Gebühr von mindestens EUR 420,- erhoben.
Unsere Gästebewertungen Externe Bewertungen
Ausstattung
-
Bitte beachten
-
Keine Jugendgruppen auf Anfrage
-
Rauchen ist verboten
-
-
Draußen
-
Carport
-
Eingezäuntes Grundstück
-
Geschäft1,5 km
-
Golfplatz6 km
-
Grill1
-
Größe des Grundstücks1161 m²
-
Meer1 km
-
Naturstandort
-
Parkplatz beim Haus
-
Sandkasten
-
Schwingen
-
Terrasse
-
Werkzeugschuppen
-
-
Einrichtung
-
Anzahl Erwachsene inkl. 4-11 Jahre10
-
Baujahr1963
-
Bebaute Fläche118 m²
-
Ferienhaus
-
Gefrierkapazität (Anzahl Liter)90
-
Haustiere1
-
Holzofen1
-
Jahr der Renovierung2023
-
Waschmaschine1
-
Wäschetrockner1
-
-
Küche
-
Anzahl der Keramikkochplatten4
-
Heißluftofen1
-
Kühlschrank1
-
Mikrowelle1
-
Spülmaschine1
-
-
Multimedien
-
> 3 deutsche Sender
-
> 3 dänische Sender
-
0-3 norwegische Kanäle
-
0-3 schwedische Kanäle
-
Anzahl der Fernseher1
-
Chromecast1
-
Herunterladen100
-
Hochladen100
-
Internet drahtlos
-
Radio
-
Smart TV1
-
-
Schlafverhältnisse
-
Anzahl der Schlafzimmer4
-
Doppelbett (Anzahl der Schlafplätze)2
-
Einzelbett (Anzahl der Schlafplätze)4
-
Etagenbett (Anzahl der Schlafplätze)4
-
-
WC und Bad
-
Anzahl der Badezimmer1
-
Anzahl der Gästebäder1
-
Badewanne
-
Dusche
-
Fußbodenheizung1
-
Toiletten2
-
-
Whirlpool
-
Whirlpool6
-
-
Zugang zur Ferienunterkunft
-
Schlüsselkasten mit Code
-
Kurzurlaub
Es besteht eine begrenzte Möglichkeit das ganze Jahr einen Kurzurlaub zu machen, typischerweise ausserhalb der Hochsaison.
Preise und Kalender
Kalender
Dauer
Preis
Zeitraum
- Ankunft
- Abreise
- Dauer
- 1 Woche
Personen
Bis zu 10 Personen
Bitte beachten
Ankunftszeit wurde nicht ausgewählt.