Charmante Ferienwohnung nahe Nordseestrand

Ferienwohnung - 4 Personen - Lyngbyvej 239 lejl. - Nr. Lyngby - 9480 - Lökken

4 Personen
Objekt Nr.: 122-LK2190
7 Übernachtungen
Ab EUR 380,-
Inkl. Endreinigung und Versicherung
4 Personen
Charmante Ferienwohnung in ruhiger Lage nahe dem breiten Sandstrand der Nordsee in Løkken, ideal zum Entspannen und Naturgenießen.
  • Schlafzimmer 2
  • Badezimmer 1
  • Wohnfläche 63 m²
  • Haustiere 2
  • Kurzurlaub möglich Ja
  • Entfernung Wasser 70 m
  • Einkaufen 4.600 m
  • Swimmingpool aussen Ja
  • Internet Ja
  • Geschirrspüler Ja
  • Nichtraucher Ja

Beschreibung

Hier in der Lyngbyvej 239, Wohnung 33, könnt ihr euren Urlaub in ruhiger und naturnaher Umgebung verbringen – nur einen kurzen Spaziergang vom breiten Sandstrand der Nordsee entfernt. Die Wohnung ist gepflegt und charmant, und hier könnt ihr die Seele baumeln lassen und die Ruhe genießen, während ihr gleichzeitig ganz nah an der Natur und an gemütlichen Urlaubserlebnissen in Løkken seid.

Willkommen in deinem Ferienhaus
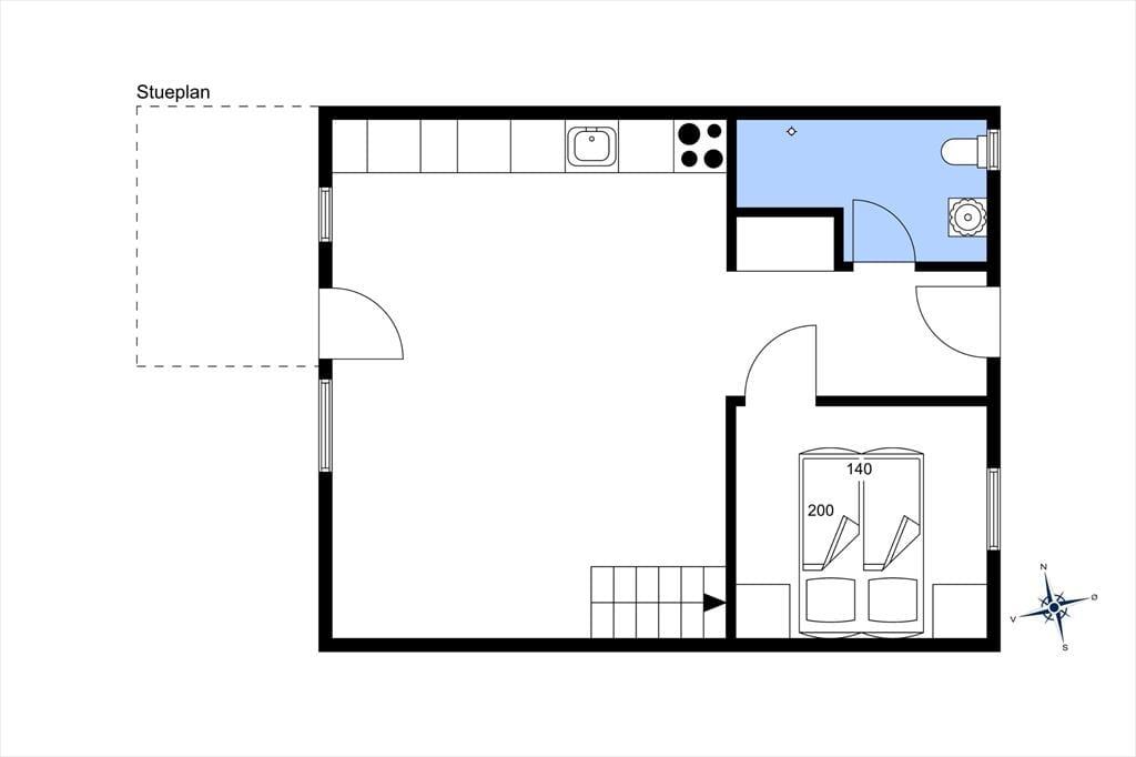
Die Wohnung ist in einem hellen und freundlichen Stil eingerichtet, sodass ihr euch hier schnell wie zu Hause fühlen werdet. Das Herzstück der Unterkunft ist der offene Wohnbereich, in dem Küche und Wohnzimmer ineinander übergehen, sodass man beim Kochen gemeinsam Zeit verbringen und gleichzeitig am Gespräch am Tisch teilnehmen kann. Die großen Fenster lassen viel Tageslicht herein und schaffen eine leichte und einladende Atmosphäre. Wenn der Tag sich dem Ende neigt, ist es naheliegend, ein gutes Buch hervorzuholen oder gemeinsam auf dem Sofa einen Film zu schauen, während ihr die Pläne für das nächste Abenteuer schmiedet. Die Wohnung verfügt außerdem über ein Badezimmer sowie ein Schlafzimmer im Erdgeschoss und ein zusätzliches Zimmer im offenen Dachgeschoss – perfekt, wenn ihr zu zweit, als zwei Paare oder als kleine Familie reist und euch etwas Privatsphäre wünscht. Alles wirkt gepflegt und einladend nach einer umfassenden Renovierung im Jahr 2006.

Genieße das Leben im Freien
Wenn die Sonne herauskommt, könnt ihr direkt vor die Tür treten und die schöne Umgebung rund um die Wohnung genießen. Nehmt euren Morgenkaffee mit nach draußen und lasst euch von der frischen Meeresluft wecken, während ihr den Möwen lauscht und die sanfte Brise vom Meer spürt. Die kurze Entfernung zum Strand macht es einfach, den Tag am Wasser zu verbringen – hier könnt ihr mit den Kindern Sandburgen bauen, ein erfrischendes Bad nehmen oder euch einfach in die Dünen legen und die friedliche Stimmung genießen. Wenn sich der Abend nähert, könnt ihr einen kleinen Spaziergang am Strand unternehmen, während die Sonne hinter der Nordsee versinkt und den Himmel in sanfte Orange- und Rosatöne taucht – einer dieser Momente, die man so schnell nicht vergisst.

Entdecke deine Umgebung
Nr. Lyngby ist ein kleines, ruhiges Feriengebiet nördlich von Løkken, in dem ihr dem Alltag wunderbar entfliehen und die Natur ganz nah erleben könnt. Die Gegend ist bekannt für ihre steile Küstenklippe, den breiten Sandstrand und die besondere Ruhe, die es leicht macht, in Urlaubsstimmung zu kommen. Wenn ihr Lust auf ein bisschen mehr Leben habt, liegt Løkken nur eine kurze Autofahrt entfernt. Hier könnt ihr in kleinen Geschäften stöbern, ein Eis auf dem Marktplatz genießen oder es euch in einem der gemütlichen Cafés gutgehen lassen. Wenn ihr noch mehr von der schönen Natur erleben möchtet, sind ein Ausflug zur beeindruckenden Wanderdüne Rubjerg Knude oder ein Besuch im Künstlerort Lønstrup sehr zu empfehlen.

Denkt daran, dass ihr euch bei uns von Løkken jederzeit Bollerwagen, Hochstühle und Kinderbetten ausleihen könnt. Ihr könnt sie direkt im Büro abholen und nach eurem gelungenen Urlaub wieder zurückbringen.


Raumaufteilung

  • Schlafzimmer
    • Doppelbett - 1x140x200
  • Schlafzimmer
    • Doppelbett - 1x140x200

Ausstattung

  • Hausinfo.

    • Anzahl Erw.
      4
    • Anzahl Haustiere
      2
    • Aussen Pool
      Gemeinsam
    • Baujahr
      1987
    • Dusche
    • Grundstück / Gemeinschaftsgrund
    • Hausareal
      63 m²
    • Renovierungsjahr
      2006
    • WC
  • Entfernungen

    • Entfernung Einkauf / Ganzjahresgeschäft
      4,6 km
    • Entfernung Restaurant
      4,6 km
    • Entfernung Strand
      70 m
    • Entfernung zum Golfplatz
      4,7 km
  • Energie/Heizung

    • Elektroheizung
  • Küchengeräte

    • Abzugshaube
    • Backofen
    • Herd
    • Kaffeemaschine
    • Kühlschrank m/Gefrierfach
    • Mikrowelle
    • Spülmaschine
    • Wasserkocher
  • Multimedien

    • Deutsche Kanäle
    • Dän. TV
    • TV
    • WI-FI
  • Extra

    • Für Wanderer
    • Golf-Urlaub
  • Draußen

    • Gartenmöbel
    • Gemeinsamer Parkplatz
  • Diverse

    • Doppel-Schlafsofa
      80x200
    • Fußbodenheizung
    • Markierte Wanderwege in der Nähe
    • Wäscheständer / Wäscheleine
  • Regeln

    • Aufladung von Elektroautos nicht erlaubt
    • Haustiere: alle Arten erlaubt
    • Rauchen verboten
  • Preis inbegriffen

    • Endreinigung inkl.

Kurzurlaub

Sie haben das ganze Jahr die Möglichkeit einen Kurzurlaub zu machen.

Preise und Kalender

Kalender

Ankunft
Nächster Monat
   Verfügbarkeit am ausgewählten Datum prüfen
Frei
Nicht frei
   Ankunft möglich
Dauer
Personen

Preis

Zeitraum
Ankunft
Abreise
Dauer
1 Woche
Personen
Keine Personen ausgewählt

Bitte beachten

Ankunftszeit wurde nicht ausgewählt.
Es wurden keine Personen ausgewählt.
Vertrags- und Mietbedingungen