Ferienhaus mit Meerblick und Sauna in Nordmarken

Ferienhaus - 6 Personen - Langvarigheden - Nordmarken - 9940 - Läsö

6 Personen
Objekt Nr.: 547-344863
Dieses geräumige Ferienhaus in Nordmarken bietet Panoramablick auf das Meer, Sauna, Aktivitätsraum und eine idyllische Lage in unberührter Natur.
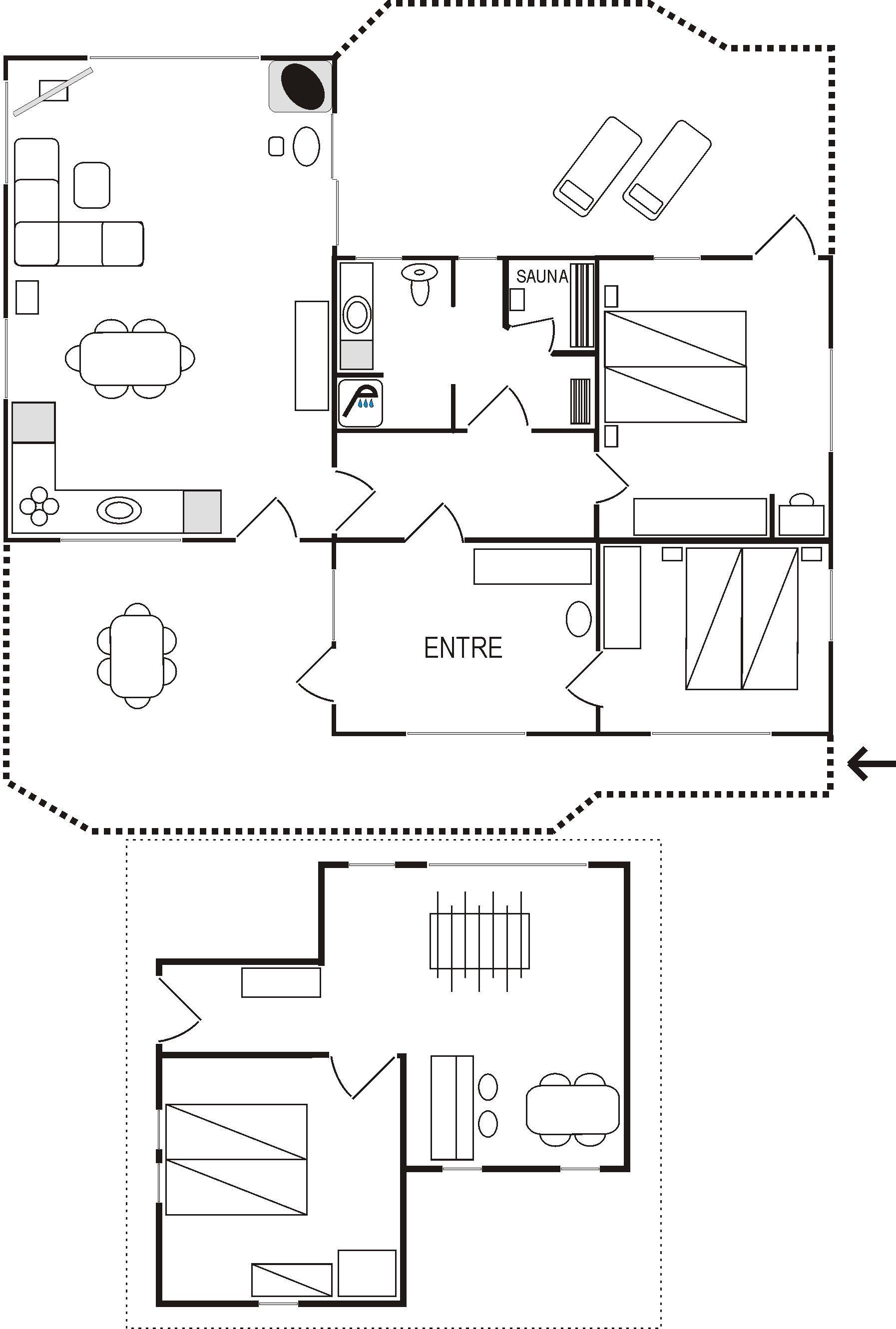
  • Schlafzimmer 3
  • Badezimmer 1
  • Wohnfläche 99 m²
  • Grundstück 1.781 m²
  • Haustiere 1
  • Kurzurlaub möglich Nein
  • Entfernung Wasser 400 m
  • Einkaufen 2.500 m
  • Sauna Ja
  • Internet Ja
  • Kaminofen Ja
  • Wasserblick Ja
  • Waschmaschine Ja
  • Trockner Ja
  • Geschirrspüler Ja
  • Nichtraucher Ja
  • Klimafreundlich Ja

Beschreibung

NEU beim Team Læsø. Ein traumhaft schönes, geräumiges Ferienhaus mit einer einzigartigen Lage, die man in Nordmarken kaum besser finden kann. Sowohl vom Haus als auch von den Terrassen und dem Nebengebäude aus hat man einen unglaublich schönen Panoramablick auf das Meer und die Gebäude liegen auf einem wunderschönen, unberührten Naturgrundstück, auf dem die Heide dominiert. Der Abstand zwischen dem Haupthaus und dem Nebengebäude ist relativ kurz und Sie können problemlos zwischen den beiden Wohnungen wechseln. Das Haupthaus wirkt hell und einladend und die großen Fenster sorgen für viel Licht. Schöne und gut ausgestattete Küche in offener Verbindung zum Esszimmer. Das Haus verfügt über ein schönes Wohnzimmer mit bequemen Möbeln, Holzofen und Fernseher sowie Zugang zu einer teilweise überdachten Holzterrasse. Es gibt zwei große Schlafzimmer mit Doppelbetten, eines davon mit Meerblick und Zugang zu einer Terrasse. Das Badezimmer mit Sauna und Dusche wirkt praktisch, schön und einladend. Der 50 m2 große Anbau bietet wie das Haupthaus viel Licht und Meerblick und verfügt über ein weiteres großes Schlafzimmer mit einem Doppelbett und einem Kinderbett. Darüber hinaus ein schöner Aktivitätsraum mit mehreren verschiedenen Spielen - Tischfußball, Darts, Bobfahren, Tischstockschießen usw. Karten-/Brettspiele und Bücher und eine wirklich gemütliche Bar, in der Jung und Alt ihren Durst stillen können. Das Haus verfügt über ein starkes Glasfasernetz und ist insgesamt sehr gut ausgestattet. Rund um das Haus stehen Ihnen mehrere schöne Liegeflächen und Terrassen mit Gartenmöbeln und Sonnenliegen zur Verfügung. Hier kann auch der Grill des Hauses genutzt werden, während man den wunderschönen Sonnenuntergang über dem Meer genießt. Zusammen mit der Aussicht, dem wunderschönen Naturgrundstück und der ruhigen Lage spüren Sie das besondere Læsøro.

Das Haus liegt nicht weit von Østerby Havns bezaubernder Hafenumgebung mit Fischhändlern, Einkaufsmöglichkeiten, Restaurants, Strand und Einkaufsmöglichkeiten entfernt.

Kostenloses Brennholz steht zur Verfügung.

Ausstattung

  • Einrichtung

    • Nichtraucher
    • Grundstücksgröße
      1781
    • Hausareal
      99
    • Haustier erlaubt
    • Entfernung Strand
      400 m
    • Abstand Einkauf
      2,5 km
    • Deutsche Kanäle
    • Waschmaschine
    • Wäschetrockner
    • Kaminofen
    • Kinderbett
    • Anzahl der Schlafräume
      3
    • Doppelbetten
      3
    • Spülmaschine
    • Toiletten
      1
    • Sauna
    • Grill
    • Meerblick
    • Gefriertruhe
    • Menschen
      6
    • Internet
    • Max. Anzahl Personen
      6
    • Wärmepumpe
    • Fernsehen per Streaming
    • Annex
    • Baujahr
      1991
    • Bäder
      1

Preise und Kalender

Kalender

Ankunft
Vorheriger Monat Nächster Monat
  • April 2026
    MoDiMiDoFrSaSo
    1412345
    156789101112
    1613141516171819
    1720212223242526
    1827282930
    19
  • Mai 2026
    MoDiMiDoFrSaSo
    18123
    1945678910
    2011121314151617
    2118192021222324
    2225262728293031
    23
   Verfügbarkeit am ausgewählten Datum prüfen
Frei
Nicht frei
   Ankunft möglich
Dauer

Preis

Zeitraum
Ankunft
Abreise
Dauer
1 Woche
Personen
Bis zu 6 Personen

Bitte beachten

Ankunftszeit wurde nicht ausgewählt.
Vertrags- und Mietbedingungen