Charmantes Ferienhaus nahe Sandstrand in Dänemark

Ferienhaus - 6 Personen - Novembervej - Nörlev - 9800 - Hjörring

6 Personen
Objekt Nr.: 123-LN1798
7 Übernachtungen
Ab EUR 507,-
Inkl. Endreinigung und Versicherung
6 Personen
Charmantes Holzferienhaus nahe breitem Sandstrand und Natur in Nørlev Strand, Dänemark, ideal für entspannte Urlaubstage.
  • Schlafzimmer 2
  • Badezimmer 1
  • Wohnfläche 93 m²
  • Grundstück 1.500 m²
  • Haustiere 1
  • Kurzurlaub möglich Ja
  • Entfernung Wasser 150 m
  • Einkaufen 1.200 m
  • Highspeed Internet Ja
  • Satelliten-/Kabel TV Ja
  • Kaminofen Ja
  • Wasserblick Ja
  • Waschmaschine Ja
  • Trockner Ja
  • Geschirrspüler Ja
  • Nichtraucher Ja

Beschreibung

Wenn Sie von Ruhe, frischer Luft und einer schöner Natur träumen, ist Nørlev Strand Ihre perfekte Urlaubsdestination. Genau hier erwartet Sie dieses ganz bezaubernd eingerichtete Ferienhaus.

Willkommen in deinem Ferienhaus
Das ansprechende klassische Holzferienhaus aus dem Jahr 1960 wurde einer umfassenden Renovierung unterzogen. Glücklicherweise wurde dabei der klassische Charme des Hauses erhalten, sodass die Räumlichkeiten noch heute durch hohe Holzpanele, profilierte Türen und attraktive Retro-Details geprägt sind. Die ausgesprochen schöne Wohnatmosphäre wird Sie bereits beim ersten Betreten unverzüglich in ihren Bann ziehen. Freuen dürfen Sie sich beispielsweise auch auf die Zubereitung der Mahlzeiten in der gut eingerichteten Küche. Diese verfügt über Licht spendende Dachflächenfenster und ist lediglich durch ein paar Stufen vom Wohnbereich getrennt. Der Wohnbereich lädt zu gemütlichen Stunden im Kreise Ihrer Lieben ein, die Sie mit unterhaltsamen Brettspielen am Esstisch oder mit Lesen auf dem Sofa verbringen. Für ein Maximum an echter dänischer Ferienhausgemütlichkeit sorgt an kühleren Tagen der ebenfalls im Wohnraum platzierte Kaminofen. Zur Wohnfläche zählen darüberhinaus ein großes einladendes Badezimmer und zwei gute Schlafräume. Zwei weitere Schlafplätze stehen Ihnen in Form eines Doppelbettes im Nebengebäude zur Verfügung.

Genieße das Leben im Freien
An warmen Sommertagen können Sie Ihr entspanntes Urlaubsleben sehr gut hinaus auf das 1.500 m² große Grundstück verlegen. Sie genießen die Wahl zwischen mehreren ungestörten Aufenthaltsplätzen. Hierzu zählt unter anderem der abgeschirmte "Innenhof", der mit seiner Lage zwischen dem Haupthaus und dem Nebengebäude eine wahre Oase darstellt. Selbst an kalten Tagen können Sie sich wunderbar im Freien aufhalten.

Entdecke deine Umgebung
Nehmen Sie einem erfrischenden Bad in den Nordseewellen, denn das Ferienhaus liegt lediglich 150 Meter vom Strand entfernt. Bei diesem Strand handelt es sich um einen breiten Sandstrand, der Ihnen unendlich viel Platz zum Spielen, Sonnen, Burgenbauen und Baden bietet. Der Strand ist zudem für den Autoverkehr freigegeben. Daher sollten Sie sich keinesfalls das traumhaft schöne Erlebnis entgehen lassen, einmal während des Sonnenuntergang an der mächtigen Nordsee entlang zu fahren. Die Gegend eignet sich außerdem sehr schön für ausgedehnte Wanderungen. Folgen Sie einfach an der Wasserkante entlang der Küste, oder wandern Sie ins Landesinnere, wo Sie bereits von den Inlandsdünen von Skallerup erwartet werden. Ein wenig weiter südlich lockt der attraktive Küstenort Lønstrup, in dem sich diverse schöne Galerien und Werkstätten der Kunsthandwerker sowie mehrere Restaurants und Cafés auf Ihren Besuch freuen. Nach Ihrem Bummel durch den beschaulichen alten Fischerort sollten Sie unbedingt weiter zur mehr als imposanten Wanderdüne Rubjerg Knude samt dem gleichnamigen berühmten Leuchtturm fahren.

Denk daran, dass du bei Lønstrup jederzeit Bollerwagen, Hochstühle und Kinderreisebetten leihen kannst. Diese holst du direkt bei uns im Büro ab und bringst sie wieder, wenn du deine Heimreise antrittst.


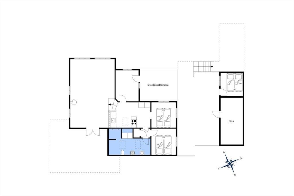
Raumaufteilung

  • Schlafzimmer
    • Doppelbett - 1x160x200
  • Schlafzimmer
    • Einzelbett - 1x90x200
    • Einzelbett - 1x90x200
  • Anbau
    • Doppelbett - 1x180x200

Unsere Gästebewertungen Externe Bewertungen

4,0
Bezogen auf 3 Bewertungen
Letzte Bewertung ist vom 27.07.2025
5
(0)
4
(3)
3
(0)
2
(0)
1
(0)
Kommentare
1 Bewertung hat einen Kommentar auf Deutsch.
1 Bewertung hat einen Kommentar in einer anderen Sprache.
3 Erwachsene 0 Kinder 0 Haustiere 18 Übernachtungen 2022 Juni
Eine Beschreibung für das Öffnen der elektrischen Dachfenster wäre hilfreich. Eine Inspektion des Grills und Backofen/ Bleche , Dusche/Ablagekörbe vor Neuvermietung wäre erforderlich gewesen.

Ausstattung

  • Hausinfo.

    • Annexgrösse
      11 m²
    • Anzahl Erw.
      6
    • Anzahl Haustiere
      1
    • Baujahr
      1960
    • Dusche
    • Grundstück / Naturgrund
      1500 m²
    • Hausareal
      93 m²
    • Meerblick
    • Naturblick
    • Renovierungsjahr
      2013
    • WC
  • Entfernungen

    • Entfernung Einkauf / Ganzjahresgeschäft
      1,2 km
    • Entfernung Restaurant
      1,2 km
    • Entfernung Strand / Sandstrand
      150 m
    • Entfernung zum Golfplatz
      5,1 km
  • Energie/Heizung

    • Elektroheizung
    • Kaminofen
  • Küchengeräte

    • Bügelbrett
    • Bügeleisen
    • Herd
    • Kaffeemaschine
    • Kühlschrank
    • Kühlschrank m/Gefrierfach
      60
    • Spülmaschine
    • Waschmaschine
    • Wasserkocher
    • Wäschetrockner
  • Multimedien

    • Deutsche Kanäle
    • Dän. TV
    • Gratis Wi-Fi - Über 20 Mbit
    • Kabel TV
    • Norw. TV
    • Schwedisches TV
    • TV
  • Extra

    • Golf-Urlaub
  • Draußen

    • Gartenmöbel
    • Grill
    • Liegestühle
    • Parken auf dem Grundstück
    • Sonnenschirm
    • Terrasse
  • Diverse

    • Fußbodenheizung
  • Regeln

    • Aufladung von Elektroautos nicht erlaubt
    • Haustiere: alle Arten erlaubt
    • Rauchen verboten
  • Preis inbegriffen

    • Endreinigung inkl.
    • Wasser inkl.

Kurzurlaub

Es besteht eine begrenzte Möglichkeit das ganze Jahr einen Kurzurlaub zu machen, typischerweise ausserhalb der Hochsaison.

Preise und Kalender

Kalender

Ankunft
Vorheriger Monat Nächster Monat
   Verfügbarkeit am ausgewählten Datum prüfen
Frei
Nicht frei
   Ankunft möglich
Dauer
Personen

Preis

Zeitraum
Ankunft
Abreise
Dauer
1 Woche
Personen
Keine Personen ausgewählt

Bitte beachten

Ankunftszeit wurde nicht ausgewählt.
Es wurden keine Personen ausgewählt.
Vertrags- und Mietbedingungen