Modernes Reihenhaus nahe Strand in Liseleje

Ferienhaus - 4 Personen - Lisegårdsvej - 3360 - Liseleje

4 Personen
Objekt Nr.: 090-60084
Modernes Reihenhaus in Liseleje nahe Strand mit Terrasse und Balkon, ideal für Familienkomfort.
  • Schlafzimmer 2
  • Badezimmer 1
  • Wohnfläche 74 m²
  • Haustiere Nicht erlaubt
  • Kurzurlaub möglich Ja
  • Entfernung Wasser 700 m
  • Einkaufen 2 km
  • Highspeed Internet Ja
  • Nichtraucher Ja
  • Klimafreundlich Ja

Beschreibung

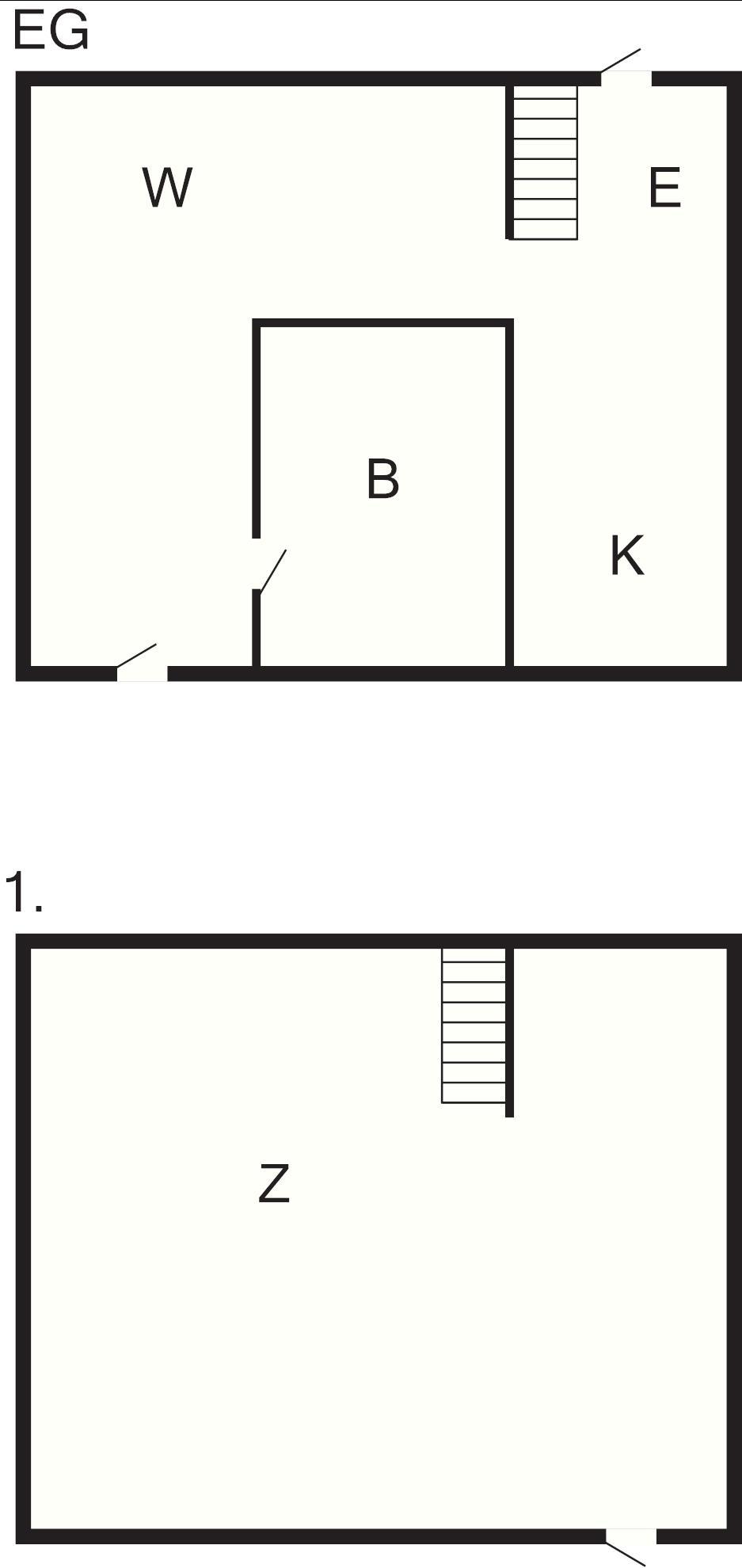
Willkommen in diesem modernen, 2024 neu erbauten Reihenhaus – perfekt für die qualitätsbewusste Familie, die Komfort und Stil in einer wunderschönen Umgebung sucht. Das Haus ist 74 Quadratmeter groß und gut aufgeteilt. Es bietet eine schöne, offene Wohnküche mit direktem Zugang zu einer sonnigen, ungestörten Terrasse – ideal für Sommertage und gemütliche Abende.

Im Erdgeschoss befinden sich außerdem ein gemütliches Fernsehzimmer und ein elegant gefliestes Badezimmer in hellen, modernen Materialien. Im ersten Stock mit Dachschräge befinden sich an einem Ende ein geräumiges Hauptschlafzimmer und am anderen Ende ein Mehrbettzimmer mit einem Einzelbett und einem Schlafsofa – ideal für Kinder oder Gäste. Ein schönes Erkerfenster mit Zugang zum privaten Balkon rundet die Etage ab und verleiht ihr zusätzlichen Charme und Helligkeit.

Die Lage ist einfach fantastisch – nur etwa 700 m vom kinderfreundlichen Strand von Liseleje entfernt, der für seinen weichen Sand und sein ruhiges Badewasser bekannt ist. Hier erwartet Sie eine seltene Kombination aus modernem Komfort und authentischer Küstenatmosphäre in der Nähe von Natur, Strandleben und einer charmanten städtischen Umgebung.


1 Wohnz.: TV
2 Schlafz.: (1DB)+(1B+1L)
Küche: Ofen, Kühl-Gefrier-Kombi
Bad: WC, Waschb., Dusche
1 Außenbereich: Gartenmöbel, Holzkohlegrill, Terrasse
Und: Fußbodenheiz., Luft-Wasser-Wärmepumpe, Garten 141 m2, Ferienhausgebiet, Nichtraucherhaus

Ausstattung

  • Badezimmer

    • Dusche
    • Waschbecken
    • WC
  • Diverse

    • Anzahl Badezimmer
      1
    • Anzahl Schlafzimmer
      2
    • Baujahr
      2024
    • Energiehaus
    • Hoch Geschwindigkeits Internet
    • Internet
    • Luft/Wasser Wärmepumpe
    • Nichtraucher
    • Wohnfläche in m²
      74 m²
  • Draußen

    • Bademöglichkeiten (flach)
    • Gartenmöbel
    • Kohlegrill
    • Terrasse
  • Drinnen

    • TV
  • Entfernung

    • Einkauf
      2 km
    • Küste
      700 m
    • Restaurant
      2 km
  • Küche

    • Backofen
    • Kühl-/Gefrierschrank

Kurzurlaub

Sie haben die nächsten 4 Wochen eine begrenzte Möglichkeit einen Kurzurlaub zu machen.

Preise und Kalender

Kalender

Ankunft
Nächster Monat
  • Dezember 2025
    MoDiMiDoFrSaSo
    491234567
    50891011121314
    5115161718192021
    5222232425262728
    1293031
    2
  • Januar 2026
    MoDiMiDoFrSaSo
    11234
    2567891011
    312131415161718
    419202122232425
    5262728293031
    6
   Verfügbarkeit am ausgewählten Datum prüfen
Frei
Nicht frei
   Ankunft möglich
Dauer

Preis

Zeitraum
Ankunft
Abreise
Dauer
1 Woche
Personen
Bis zu 4 Personen

Bitte beachten

Ankunftszeit wurde nicht ausgewählt.
Vertrags- und Mietbedingungen