Komfortables Ferienhaus mit Sauna und Aktivitätsraum

Ferienhaus - 8 Personen - Klitmarken - Kjul - 9850 - Hirtshals

8 Personen
Objekt Nr.: 102-TV1580
Dieses Ferienhaus in Kjul bietet Komfort, Natur und Freizeitspaß auf einem großen Grundstück mit Sauna und Aktivitätsraum.
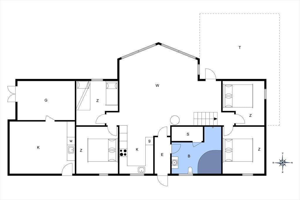
  • Schlafzimmer 4
  • Badezimmer 1
  • Wohnfläche 155 m²
  • Grundstück 1.200 m²
  • Haustiere Nicht erlaubt
  • Kurzurlaub möglich Ja
  • Entfernung Wasser 500 m
  • Einkaufen 2 km
  • Highspeed Internet Ja
  • Satelliten-/Kabel TV Ja
  • Kaminofen Ja
  • Spiel- und Sportzimmer Ja
  • Gute Angelmöglichkeiten Ja
  • Waschmaschine Ja
  • Trockner Ja
  • Geschirrspüler Ja
  • Nichtraucher Ja
  • Klimafreundlich Ja

Beschreibung

Wenn du deinen Urlaub in diesem schönen Ferienhaus in der Klitmarken 10 in Kjul verbringst, ist echte Qualitätszeit garantiert – sowohl miteinander als auch mit der Natur direkt vor der Tür. Das Haus liegt ruhig auf einem großen Naturgrundstück mit viel Platz zum Spielen, und drinnen erwarten dich zahlreiche Annehmlichkeiten, die den Urlaub sowohl komfortabel als auch voller schöner Erlebnisse machen.

Willkommen in deinem Ferienhaus
Innen erwartet dich eine helle und freundliche Atmosphäre mit viel Platz für Entspannung und gemütliches Beisammensein. Das Wohnzimmer ist offen bis unter den Giebel und große Fenster lassen das Tageslicht hereinströmen, wodurch ein luftiges Raumgefühl entsteht. Wenn der Abend hereinbricht, könnt ihr den Kaminofen anzünden und die wohlige Wärme genießen, während ihr es euch auf dem Sofa mit einer Tasse Tee und einem Kartenspiel gemütlich macht. Es ist etwas ganz Besonderes, sich in Ruhe zurückziehen zu können – und genau das ist hier möglich. Wenn die Energie hoch ist, könnt ihr euch in den Aktivitätsraum des Hauses begeben – dort stehen Tischtennis, Billard, Airhockey und Darts bereit, um Familienwettkämpfe auszutragen. Und nach einem aktiven Tag lockt die Sauna mit wohliger Wärme und Entspannung als das Tüpfelchen auf dem i.

Genieße das Leben im Freien
Draußen breitet sich der grüne Rasen aus und bildet ein natürliches Spielgelände, auf dem die Kinder frei herumlaufen, Ball spielen oder einfach zwischen Gras und Büschen auf Entdeckungsreise gehen können. Das große Naturgrundstück ist reich an Tierleben, und es ist keine Seltenheit, ein Reh zu erspähen oder den morgendlichen Vogelgesang zu hören, während ihr den Kaffee auf der Terrasse genießt. Hier draußen können die Tage mit Grillabenden, Sonnenbaden oder gemütlichen Nachmittagen im Schatten mit einem guten Buch vergehen. Vielleicht wechseln die Kinder ständig zwischen Gartenspielen und dem Aktivitätsraum hin und her. Es ist Urlaub in ganz eigenem Tempo, mit Raum für Nähe und Genuss gleichermaßen.

Entdecke deine Umgebung
Von der Klitmarken 10 aus ist es nur ein kurzer Weg zur rauschenden Nordsee – ein Ort, der immer einen Besuch wert ist, egal ob du Lust auf ein erfrischendes Bad, Sandburgenbauen mit Muschelsuche oder lange Spaziergänge in der salzigen Meeresluft hast. Der Strand von Kjul zählt zu den ruhigeren in der Region, und hier hat man schnell das Gefühl, ganz für sich allein zu sein. Gleichzeitig befindet ihr euch in einer Gegend mit leichtem Zugang zu Naturerlebnissen und Ausflugszielen – zum Beispiel zur Tversted Klitplantage, dem Adlerreservat oder dem Nordsøen Oceanarium in Hirtshals. Auch Skagen ist nicht weiter entfernt als ein schöner Tagesausflug. Vielleicht wollt ihr aber auch einfach bleiben – denn mit einem so schönen Ferienhaus und einem Grundstück, das sowohl zur Erholung als auch zum Spielen einlädt, fällt es schwer, sich einen besseren Ort für den Urlaub vorzustellen.

Denk daran, dass du bei Tversted immer Bollerwagen, Hochstühle und Kinderbetten ausleihen kannst. Du kannst sie direkt im Büro abholen und nach dem Urlaub wieder bei uns zurückgeben.

Ausstattung

  • Hausinfo.

    • Anzahl Erw.
      8
    • Baujahr
      2013
    • Dusche
    • Grundstücksgröße
      1200 m²
    • Hausareal
      155 m²
    • WC
  • Entfernungen

    • Entfernung Einkauf / Ganzjahresgeschäft
      2 km
    • Entfernung Restaurant
      3 km
    • Entfernung Strand / Sand-, Kieselstrand
      500 m
    • Entfernung zum Golfplatz
      1 km
  • Energie/Heizung

    • Elektroheizung
    • Kaminofen
    • Wärmepumpe
  • Küchengeräte

    • Abzugshaube
    • Backofen
    • Bügeleisen
    • Gefriertruhe
      60
    • Kaffeemaschine
    • Kochplatten
    • Kühlschrank
      270
    • Mikrowelle
    • Spülmaschine
    • Waschmaschine
    • Wasserkocher
    • Wäschetrockner
  • Multimedien

    • Chromecast
    • Deutsche Kanäle
    • Dän. TV
    • Kostenloses WLAN - mehr als 100 Mbit
    • Norw. TV
    • Parabol
    • Schwedisches TV
  • Extra

    • Airhockey
    • Aktivitätshaus
    • Anglerhaus
    • Dart
    • Golf-Urlaub
    • Hochstuhl
      1 Hochstuhl und 2 Juniorstühle
    • Kinderbett
    • Kinderfreundlich
    • Pool/Billard
    • Tischtennis
  • Draußen

    • Gartenmöbel
    • Grill
      Gas
    • Liegestühle
      2
    • Parken auf dem Grundstück
    • Schaukel
    • Terrasse
  • Diverse

    • 2 x Fußbodenheizung
    • 3 x Doppelbett 2x90x200
    • Einzelbett 90X200
    • Etagenbett 2x70x190
  • Regeln

    • Aufladung von Elektroautos nicht erlaubt
    • HAUSTIER NICHT ERLAUBT
    • Rauchen verboten
  • Preis inbegriffen

    • Endreinigung inkl.
  • ALT

    • DVD

Kurzurlaub

Es besteht eine begrenzte Möglichkeit das ganze Jahr einen Kurzurlaub zu machen, typischerweise ausserhalb der Hochsaison.

Preise und Kalender

Kalender

Ankunft
Vorheriger Monat Nächster Monat
  • April 2026
    MoDiMiDoFrSaSo
    1412345
    156789101112
    1613141516171819
    1720212223242526
    1827282930
    19
  • Mai 2026
    MoDiMiDoFrSaSo
    18123
    1945678910
    2011121314151617
    2118192021222324
    2225262728293031
    23
   Verfügbarkeit am ausgewählten Datum prüfen
Frei
Nicht frei
   Ankunft möglich
Dauer
Personen

Preis

Zeitraum
Ankunft
Abreise
Dauer
1 Woche
Personen
Keine Personen ausgewählt

Bitte beachten

Ankunftszeit wurde nicht ausgewählt.
Es wurden keine Personen ausgewählt.
Vertrags- und Mietbedingungen