Modernes Ferienhaus mit Whirlpool und Terrasse

Ferienhaus - 7 Personen - Hannesvej - Kärgaarden - 7770 - Vestervig

7 Personen
Objekt Nr.: 090-54642
Modern renoviertes Ferienhaus mit Whirlpool, Terrasse und familienfreundlicher Ausstattung in Vestervig.
  • Schlafzimmer 3
  • Badezimmer 1
  • Wohnfläche 76 m²
  • Haustiere 2
  • Kurzurlaub möglich Nein
  • Entfernung Wasser 400 m
  • Einkaufen 800 m
  • Highspeed Internet Ja
  • Kaminofen Ja
  • Waschmaschine Ja
  • Geschirrspüler Ja
  • Nichtraucher Ja
  • Ladestation für Elektroauto Ja
  • Klimafreundlich Ja

Beschreibung

Dieses Ferienhaus in Kærgården bietet bequem Platz für 5 Erwachsene und 2 Kinder und verfügt über einen Whirlpool für bis zu 7 Personen – ideal zum Entspannen im Freien. Das Anwesen wurde 2023 komplett renoviert und verfügt über eine moderne Küche mit Geschirrspüler, die einen komfortablen und angenehmen Aufenthalt für die ganze Familie garantiert.

Das Haus bietet einen geräumigen Wohnbereich mit direktem Zugang zu einer großen Terrasse, ideal für Mahlzeiten im Freien, Sonnenbaden oder Familienfeiern. Das Badezimmer ist mit Fußbodenheizung ausgestattet und sorgt so an kühleren Tagen für zusätzlichen Komfort. Es gibt zwei Schlafzimmer mit jeweils zwei Einzelbetten und ein drittes Schlafzimmer mit einem Etagenbett für drei Schlafplätze – ideal für Familien.

Für Unterhaltung sorgen kostenloses WLAN und ein Fernseher mit Chromecast, auf dem Sie Ihre Lieblingssendungen streamen können. An kühlen Tagen sorgt der gemütliche Holzofen im Wohnzimmer für Wärme und eine einladende Atmosphäre.

Im Außenbereich lädt eine Schaukel mit Rutsche zum Spielen für Kinder ein. Nur 300 Meter vom Haus entfernt finden Sie zahlreiche familienfreundliche Aktivitäten, darunter einen Pétanque-Platz, Minigolf, einen großen Spielplatz und einen Fußballplatz.

Mit seiner Kombination aus moderner Renovierung, familienfreundlicher Raumaufteilung, Außenanlagen und der Nähe zu Freizeiteinrichtungen bietet dieses Ferienhaus den perfekten Rahmen für einen unterhaltsamen und erholsamen Familienurlaub.

Bitte beachten: Die Vermietung ist nicht an Jugend- oder Handwerkergruppen möglich. Nur Nichtraucher.

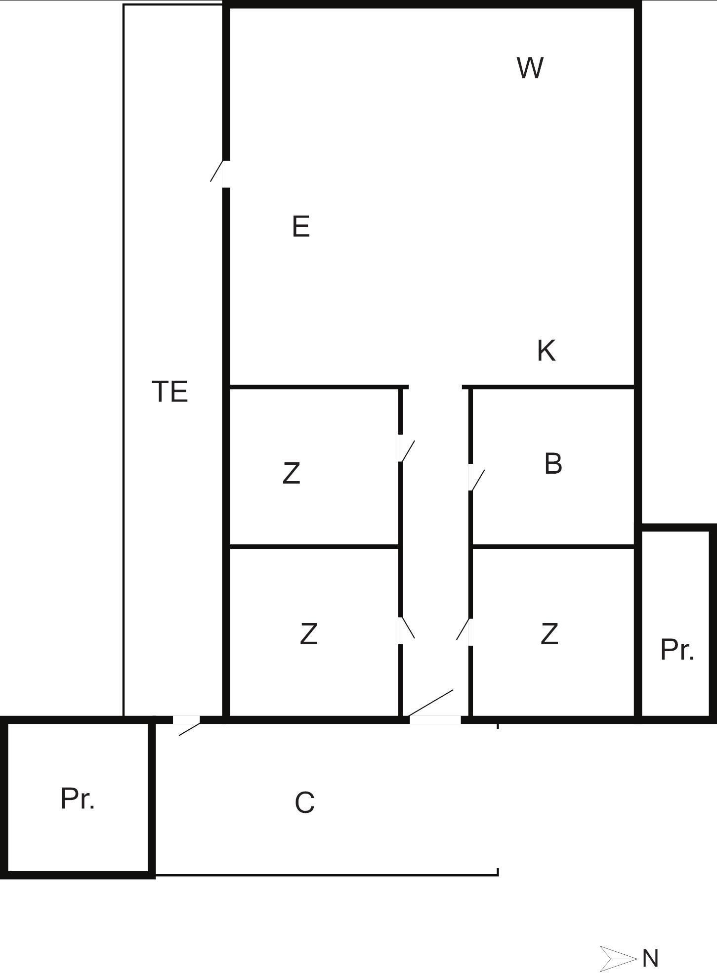
1 Wohnz.: Holzofen, Chromecast, TV
3 Schlafz.: (2B)+(2B)+(3K)
Küche: Kühl-Gefrier-Kombi, Mikrow., induktionskomfur, Kaffeem., Spülm.
Bad: Waschm., WC, Waschb., Dusche
1 Außenbereich: Gartenmöbel, Liegestühle, Holzkohlegrill, Terrasse
Und: Carport, E-Heiz., Luft-Luft-Wärmepumpe, Naturgrundst. m. Bäumen 932 m2, Ferienhausgebiet, Nichtraucherhaus

Schlüsselinformationen
  • Das Ferienhaus steht Ihnen am Anreisetag ab 16:00 Uhr zur Verfügung.
  • Die Schlüsselübergabe findet am Haus statt.
  • Dieses Haus ist Smart-Lock-fähig

Unsere Gästebewertungen Externe Bewertungen

3,7
Bezogen auf 3 Bewertungen
Letzte Bewertung ist vom 21.09.2025
5
(0)
4
(2)
3
(1)
2
(0)
1
(0)
Kommentare
Keine Bewertungen haben Kommentare auf Deutsch
1 Bewertung hat einen Kommentar in einer anderen Sprache.
4,0
Möblierung:
3,9
Empfehlenswert:
3,9
Insgesamt mit Kindern:
4,3
Insgesamt ohne Kinder:
3,9
Externe Bewertungen
Keine detaillierten externen Bewertungen

Ausstattung

  • Badezimmer

    • Dusche
    • Waschbecken
    • WC
  • Diverse

    • Anzahl Badezimmer
      1
    • Anzahl Schlafzimmer
      3
    • Baujahr
      1978
    • Deutsche Kanäle
    • Energiehaus
    • Haustier erlaubt
    • Hoch Geschwindigkeits Internet
    • Internet
    • Ladegerät für Elektroauto
      Typ 2 - IEC 62196-2
    • Luft/Luft Wärmepumpe
    • Nationales Fernsehen
    • Nichtraucher
    • Renoviert
      2023
    • Wohnfläche in m²
      76 m²
  • Draußen

    • Bademögilchkeiten (Badebrücke)
    • Bademöglichkeiten (flach)
    • Carport
    • Gartenmöbel
    • Kohlegrill
    • Liegestühle
    • Terrasse
  • Drinnen

    • Chromecast
    • Kamin / Holzofen
    • TV
    • Waschmaschine
  • Entfernung

    • Einkauf
      800 m
    • Golf
      6 km
    • Küste
      400 m
    • Restaurant
      800 m
  • Küche

    • Induktionsherd
    • Kaffeemaschine
    • Kühl-/Gefrierschrank
    • Mikrowelle
    • Spülmaschine
  • Wellness

    • Wildnisbad (beheizt, im Freien, 7 Personen)

Preise und Kalender

Kalender

Ankunft
Vorheriger Monat Nächster Monat
  • Juli 2026
    MoDiMiDoFrSaSo
    2712345
    286789101112
    2913141516171819
    3020212223242526
    312728293031
    32
  • Vorreservierung
    Möchten Sie eine unverbindliche Vorreservierung machen?

    Vorreservierung
   Verfügbarkeit am ausgewählten Datum prüfen
Frei
Nicht frei
   Ankunft möglich
Dauer

Preis

Zeitraum
Ankunft
Abreise
Dauer
1 Woche
Personen
Bis zu 7 Personen

Bitte beachten

Ankunftszeit wurde nicht ausgewählt.
Vertrags- und Mietbedingungen