Alternative Objekte
Klassisches Ferienhaus mit Pool und Naturzugang
Ferienhaus - 6 Personen - Olgavej - Grönhöj - 9480 - Lökken
6 Personen
Objekt Nr.: 121-12-0530
Klassisches Ferienhaus im Naturgebiet Grønhøj mit Poolzugang und vielseitiger Ausstattung für erholsame Urlaubstage.
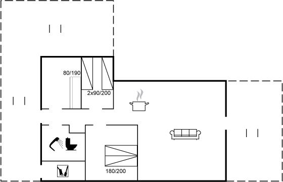
- Schlafzimmer 3
- Badezimmer 1
- Wohnfläche 77 m²
- Grundstück 1.271 m²
- Haustiere 2
- Kurzurlaub möglich Ja
- Entfernung Wasser 1.200 m
- Einkaufen 500 m
- Internet Ja
- Satelliten-/Kabel TV Ja
- Kaminofen Ja
- Geschirrspüler Ja
- Nichtraucher Ja
- Klimafreundlich Ja
Beschreibung
Dieses schöne, klassische Ferienhaus, liegt mitten in der Natur im naturschönen Feriengebiet Grønhøj. Das Haus heißt dich willkommen und bietet die besten Vorrausetzungen für einen gelungenen Urlaub.
Das Haus ist Teil des Ferienparks „Grønhøj Klit“ mit zugehörigem Nutzungsrecht des Gemeinschaftshauses, das sich in der Odavej 75 befindet. Hier findest du ein Schwimmbad, eine Sauna gegen Gebühr (Münzen) sowie eine Münzwäscherei. Im Außenbereich gibt es einen großen Spielplatz für die Kinder sowie einen Fußballplatz.
Das Schwimmbad steht dir im Zeitraum von April bis einschließlich Woche 42 zur Verfügung.
Einrichtung
Das Ferienhaus eignet sich für 6 Personen. Die Ferienunterkunft hat eine Wohnfläche von 77 m² und wurde 1988 gebaut. 2008 wurde die Ferienunterkunft teilweise renoviert. Es ist erlaubt 2 Haustiere mitzubringen. Die Ferienunterkunft ist mit einer energiefreundlichen Luft-Luft-Wärmepumpe ausgestattet. Tiefkühlmöglichkeit mit 45 Liter Nutzinhalt. Es gibt außerdem einen Kaminofen. Für die jüngsten Feriengäste sind 2 Kinderhochstühle vorhanden. Wickeltisch.
Draußen
Die Ferienunterkunft liegt auf einem 1271 m² großen Naturgrundstück. Die Entfernung zum Meer beträgt 1200 m. Die nächste Einkaufsmöglichkeit liegt 500 m entfernt. Es steht ein offenes Terrassenareal zur Verfügung. Geräteraum. Schaukel. Sandkasten. Spielturm. Rutsche. Es steht ein Grill zur Verfügung. Parkplatz auf dem Grundstück.
Schlafverhältnisse
Die Schlafplätze verteilen sich auf 3 Schlafräume. 2 Schlafplätze in einem Doppelbett. 2 Schlafplätze in Einzelbetten. 2 Schlafplätze in einem Etagenbett. Ferner steht ein Kinderbett zur Verfügung.
Küche
Die Küche ist mit Kühlschrank ausgestattet. Außerdem gibt es 4 Keramik-Kochfelder, Umluftofen, Mikrowelle sowie Geschirrspüler.
WC und Bad
Es gibt 1 Badezimmer und 1 Toilette.
Multimedien
In der Ferienunterkunft gibt es 1 Fernseher mit Smart-TV.1 Chromecast. Mindestens 4 dänische Fernsehsender. 1-3 schwedische Fernsehsender. Mindestens 4 norwegische Fernsehsender. Mindestens 4 deutsche Fernsehsender. Mindestens 4 englische Fernsehsender. Es steht kabellose Internetverbindung zur Verfügung.
Wissenswertes
Keine Vermietung an Jugendgruppen, in denen alle 15-25 Jahre sind. Rauchen ist nicht zugelassen. Bei Nichtbeachtung dieses Verbots wird eine Gebühr von mindestens EUR 420,- erhoben. Wohngemeinschaft in Odavej 75 mit Pool, Waschsalon und Sauna (Münzbetrieb). Die Wohngemeinschaft ist von April bis zur 42. Kalenderwoche verfügbar.
Einrichtung
Das Ferienhaus eignet sich für 6 Personen. Die Ferienunterkunft hat eine Wohnfläche von 77 m² und wurde 1988 gebaut. 2008 wurde die Ferienunterkunft teilweise renoviert. Es ist erlaubt 2 Haustiere mitzubringen. Die Ferienunterkunft ist mit einer energiefreundlichen Luft-Luft-Wärmepumpe ausgestattet. Tiefkühlmöglichkeit mit 45 Liter Nutzinhalt. Es gibt außerdem einen Kaminofen. Für die jüngsten Feriengäste sind 2 Kinderhochstühle vorhanden. Wickeltisch.
Draußen
Die Ferienunterkunft liegt auf einem 1271 m² großen Naturgrundstück. Die Entfernung zum Meer beträgt 1200 m. Die nächste Einkaufsmöglichkeit liegt 500 m entfernt. Es steht ein offenes Terrassenareal zur Verfügung. Geräteraum. Schaukel. Sandkasten. Spielturm. Rutsche. Es steht ein Grill zur Verfügung. Parkplatz auf dem Grundstück.
Schlafverhältnisse
Die Schlafplätze verteilen sich auf 3 Schlafräume. 2 Schlafplätze in einem Doppelbett. 2 Schlafplätze in Einzelbetten. 2 Schlafplätze in einem Etagenbett. Ferner steht ein Kinderbett zur Verfügung.
Küche
Die Küche ist mit Kühlschrank ausgestattet. Außerdem gibt es 4 Keramik-Kochfelder, Umluftofen, Mikrowelle sowie Geschirrspüler.
WC und Bad
Es gibt 1 Badezimmer und 1 Toilette.
Multimedien
In der Ferienunterkunft gibt es 1 Fernseher mit Smart-TV.1 Chromecast. Mindestens 4 dänische Fernsehsender. 1-3 schwedische Fernsehsender. Mindestens 4 norwegische Fernsehsender. Mindestens 4 deutsche Fernsehsender. Mindestens 4 englische Fernsehsender. Es steht kabellose Internetverbindung zur Verfügung.
Wissenswertes
Keine Vermietung an Jugendgruppen, in denen alle 15-25 Jahre sind. Rauchen ist nicht zugelassen. Bei Nichtbeachtung dieses Verbots wird eine Gebühr von mindestens EUR 420,- erhoben. Wohngemeinschaft in Odavej 75 mit Pool, Waschsalon und Sauna (Münzbetrieb). Die Wohngemeinschaft ist von April bis zur 42. Kalenderwoche verfügbar.
Ausstattung
-
Bitte beachten
-
Keine Arbeiter auf Anfrage
-
Keine Jugendgruppen auf Anfrage
-
Rauchen ist verboten
-
-
Draußen
-
Geschäft500 m
-
Gleiten
-
Grill1
-
Größe des Grundstücks1271 m²
-
Meer1,2 km
-
Naturstandort
-
Parkplatz beim Haus
-
Sandkasten
-
Schwingen
-
Spielturm
-
Terrasse
-
Werkzeugschuppen
-
-
Einrichtung
-
Anzahl Erwachsene inkl. 4-11 Jahre6
-
Baujahr1988
-
Bebaute Fläche77 m²
-
Ferienhaus
-
Gefrierkapazität (Anzahl Liter)45
-
Haustiere2
-
Hochstuhl2
-
Holzofen1
-
Jahr der Renovierung2008
-
Wickeltisch
-
Wärmepumpe
-
Wärmepumpe Luft zu Luft
-
-
Küche
-
Anzahl der Keramikkochplatten4
-
Heißluftofen1
-
Kühlschrank1
-
Mikrowelle1
-
Spülmaschine1
-
-
Multimedien
-
> 3 deutsche Sender
-
> 3 dänische Sender
-
> 3 englische Kanäle
-
> 3 norwegische Kanäle
-
0-3 schwedische Kanäle
-
Anzahl der Fernseher1
-
Chromecast1
-
Herunterladen200
-
Hochladen200
-
Internet drahtlos
-
Smart TV1
-
-
Schlafverhältnisse
-
Anzahl der Schlafzimmer3
-
Doppelbett (Anzahl der Schlafplätze)2
-
Einzelbett (Anzahl der Schlafplätze)2
-
Etagenbett (Anzahl der Schlafplätze)2
-
Kinderbett1
-
-
WC und Bad
-
Anzahl der Badezimmer1
-
Toiletten1
-
-
Zugang zur Ferienunterkunft
-
Schlüsselkasten mit Code
-
Kurzurlaub
Es besteht eine begrenzte Möglichkeit das ganze Jahr einen Kurzurlaub zu machen, typischerweise ausserhalb der Hochsaison.
Preise und Kalender
Kalender
Dauer
Preis
Zeitraum
- Ankunft
- Abreise
- Dauer
- 1 Woche
Personen
Bis zu 6 Personen
Bitte beachten
Ankunftszeit wurde nicht ausgewählt.