Alternative Objekte
Modernes Ferienhaus mit Sauna und Aktivitätsraum
Ferienhaus - 10 Personen - Kringelbækvej - Grönhöj - 9480 - Lökken
10 Personen
Objekt Nr.: 121-12-0391
Modernes Ferienhaus in Løkken mit Sauna, Whirlpool und Aktivitätsraum für erholsame Tage.
- Schlafzimmer 5
- Badezimmer 2
- Wohnfläche 162 m²
- Grundstück 2.146 m²
- Haustiere 2
- Kurzurlaub möglich Ja
- Entfernung Wasser 1.550 m
- Einkaufen 1 km
- Whirlpool Ja
- Sauna Ja
- Internet Ja
- Satelliten-/Kabel TV Ja
- Kaminofen Ja
- Spiel- und Sportzimmer Ja
- Waschmaschine Ja
- Trockner Ja
- Geschirrspüler Ja
- Nichtraucher Ja
Beschreibung
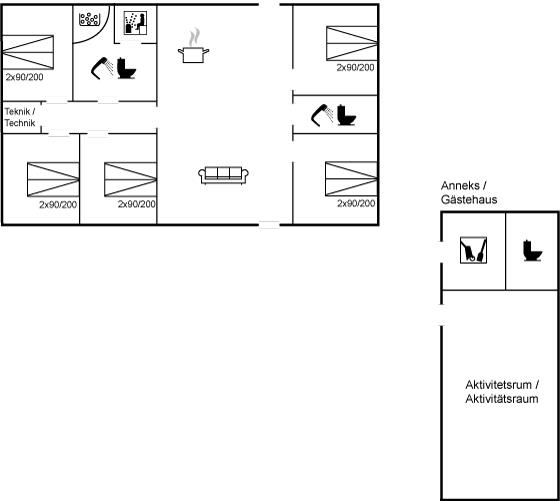
Dieses schöne Ferienhaus liegt auf einem großen und offenen Grundstück in einem neuen Ferienhausgebiet, wo noch neue Häuser gebaut werden. Hier können Sie die landschaftlich schöne Umgebung mit Seen und einem reichen Tierleben genießen. Das Haus ist gut eingerichtet und eignet sich für den aktiven Gast. Der Aktivitätsraum befindet sich im Nebengebäude, das ebenfalls mit Gäste-WC und TV ausgestattet ist.
Einrichtung
Das Ferienhaus eignet sich für 10 Personen. Die Ferienunterkunft hat eine Wohnfläche von 162 m² und wurde 2017 gebaut. Es ist erlaubt 2 Haustiere mitzubringen. Die Ferienunterkunft ist mit Waschmaschine ausgestattet. Wäschetrockner. Tiefkühlmöglichkeit mit 80 Liter Nutzinhalt. Es gibt außerdem einen Kaminofen.
Draußen
Die Ferienunterkunft liegt auf einem 2146 m² großen Naturgrundstück. Die Entfernung zum Meer beträgt 1550 m. Die nächste Einkaufsmöglichkeit liegt 1000 m entfernt. Es steht ein 40 m² Terrassenareal zur Verfügung. Geräteraum. Parkplatz auf dem Grundstück.
Hobbyraum
Hobbyraum mit: Billard. Tischtennis. Dart. Tischfußball.
Schlafverhältnisse
Die Schlafplätze verteilen sich auf 5 Schlafräume. 10 Schlafplätze in Doppelbetten. Ferner steht ein Kinderbett zur Verfügung.
Küche
Die Küche ist mit Kühlschrank ausgestattet. Außerdem gibt es 4 Keramik-Kochfelder, Umluftofen, Mikrowelle sowie Geschirrspüler.
WC und Bad
Es gibt 2 Badezimmer mit Duschnische und 3 Toiletten, davon 1 Gästetoilette. Fußbodenheizung in 2 Badezimmern. In der infraroten Sauna können Sie sich so richtig entspannen.
Whirlpool
Entspannen Sie sich im Innen-Durchlauf-Whirlpool für 2 Personen.
Multimedien
In der Ferienunterkunft gibt es 2 Fernseher.1 Chromecast. Radiosender über TV. Mindestens 4 dänische Fernsehsender. 1-3 deutsche Fernsehsender. Es steht kabellose Internetverbindung zur Verfügung.
Wissenswertes
Keine Vermietung an Jugendgruppen, in denen alle 15-25 Jahre sind. Rauchen ist nicht zugelassen. Bei Nichtbeachtung dieses Verbots wird eine Gebühr von mindestens EUR 420,- erhoben. ACHTUNG: Das Schaukelgerüst ist NICHT mehr am Haus vorhanden.
Einrichtung
Das Ferienhaus eignet sich für 10 Personen. Die Ferienunterkunft hat eine Wohnfläche von 162 m² und wurde 2017 gebaut. Es ist erlaubt 2 Haustiere mitzubringen. Die Ferienunterkunft ist mit Waschmaschine ausgestattet. Wäschetrockner. Tiefkühlmöglichkeit mit 80 Liter Nutzinhalt. Es gibt außerdem einen Kaminofen.
Draußen
Die Ferienunterkunft liegt auf einem 2146 m² großen Naturgrundstück. Die Entfernung zum Meer beträgt 1550 m. Die nächste Einkaufsmöglichkeit liegt 1000 m entfernt. Es steht ein 40 m² Terrassenareal zur Verfügung. Geräteraum. Parkplatz auf dem Grundstück.
Hobbyraum
Hobbyraum mit: Billard. Tischtennis. Dart. Tischfußball.
Schlafverhältnisse
Die Schlafplätze verteilen sich auf 5 Schlafräume. 10 Schlafplätze in Doppelbetten. Ferner steht ein Kinderbett zur Verfügung.
Küche
Die Küche ist mit Kühlschrank ausgestattet. Außerdem gibt es 4 Keramik-Kochfelder, Umluftofen, Mikrowelle sowie Geschirrspüler.
WC und Bad
Es gibt 2 Badezimmer mit Duschnische und 3 Toiletten, davon 1 Gästetoilette. Fußbodenheizung in 2 Badezimmern. In der infraroten Sauna können Sie sich so richtig entspannen.
Whirlpool
Entspannen Sie sich im Innen-Durchlauf-Whirlpool für 2 Personen.
Multimedien
In der Ferienunterkunft gibt es 2 Fernseher.1 Chromecast. Radiosender über TV. Mindestens 4 dänische Fernsehsender. 1-3 deutsche Fernsehsender. Es steht kabellose Internetverbindung zur Verfügung.
Wissenswertes
Keine Vermietung an Jugendgruppen, in denen alle 15-25 Jahre sind. Rauchen ist nicht zugelassen. Bei Nichtbeachtung dieses Verbots wird eine Gebühr von mindestens EUR 420,- erhoben. ACHTUNG: Das Schaukelgerüst ist NICHT mehr am Haus vorhanden.
Unsere Gästebewertungen Externe Bewertungen
Ausstattung
-
Bitte beachten
-
Aktivitätshaus
-
Keine Jugendgruppen auf Anfrage
-
Rauchen ist verboten
-
-
Draußen
-
Geschäft1 km
-
Größe des Grundstücks2146 m²
-
Meer1,6 km
-
Naturstandort
-
Parkplatz beim Haus
-
Terrasse40 m²
-
Werkzeugschuppen
-
-
Einrichtung
-
Anzahl Erwachsene inkl. 4-11 Jahre10
-
Baujahr2017
-
Bebaute Fläche162 m²
-
Ferienhaus
-
Gefrierkapazität (Anzahl Liter)80
-
Haustiere2
-
Holzofen1
-
Waschmaschine1
-
Wäschetrockner1
-
-
Hobbyraum
-
Billard
-
Dart
-
Sportraum
-
Tischfussball
-
Tischtennis
-
-
Küche
-
Anzahl der Keramikkochplatten4
-
Heißluftofen1
-
Kühlschrank1
-
Mikrowelle1
-
Spülmaschine1
-
-
Multimedien
-
> 3 dänische Sender
-
0-3 deutsche Sender
-
Anzahl der Fernseher2
-
Chromecast1
-
Internet drahtlos
-
Radio
-
-
Schlafverhältnisse
-
Anzahl der Schlafzimmer5
-
Doppelbett (Anzahl der Schlafplätze)10
-
Kinderbett1
-
-
WC und Bad
-
Anzahl der Badezimmer2
-
Anzahl der Gästebäder1
-
Duschkabine
-
Fußbodenheizung2
-
Sauna
-
Toiletten3
-
-
Whirlpool
-
Innen-Whirlpool (Anzahl Personen)2
-
-
Zugang zur Ferienunterkunft
-
Schlüsselkasten mit Code
-
Kurzurlaub
Es besteht eine begrenzte Möglichkeit das ganze Jahr einen Kurzurlaub zu machen, typischerweise ausserhalb der Hochsaison.
Preise und Kalender
Kalender
Dauer
Preis
Zeitraum
- Ankunft
- Abreise
- Dauer
- 1 Woche
Personen
Bis zu 10 Personen
Bitte beachten
Ankunftszeit wurde nicht ausgewählt.