Modernes Poolhaus mit Sauna und großem Garten

Ferienhaus - 20 Personen - Brandevej - Fasterholt - 7330 - Brande

20 Personen
Objekt Nr.: 553-741265
Großes, modernisiertes Poolhaus in Fasterholt mit Sauna, Whirlpool und viel Platz für Erholung und Aktivitäten.
  • Schlafzimmer 8
  • Badezimmer 2
  • Wohnfläche 290 m²
  • Grundstück 76.378 m²
  • Haustiere 4
  • Kurzurlaub möglich Ja
  • Entfernung Wasser 70 km
  • Einkaufen 5 km
  • Swimmingpool Ja
  • Whirlpool Ja
  • Sauna Ja
  • Internet Ja
  • Satelliten-/Kabel TV Ja
  • Kaminofen Ja
  • Spiel- und Sportzimmer Ja
  • Waschmaschine Ja
  • Trockner Ja
  • Geschirrspüler Ja
  • Nichtraucher Ja
  • Klimafreundlich Ja

Beschreibung

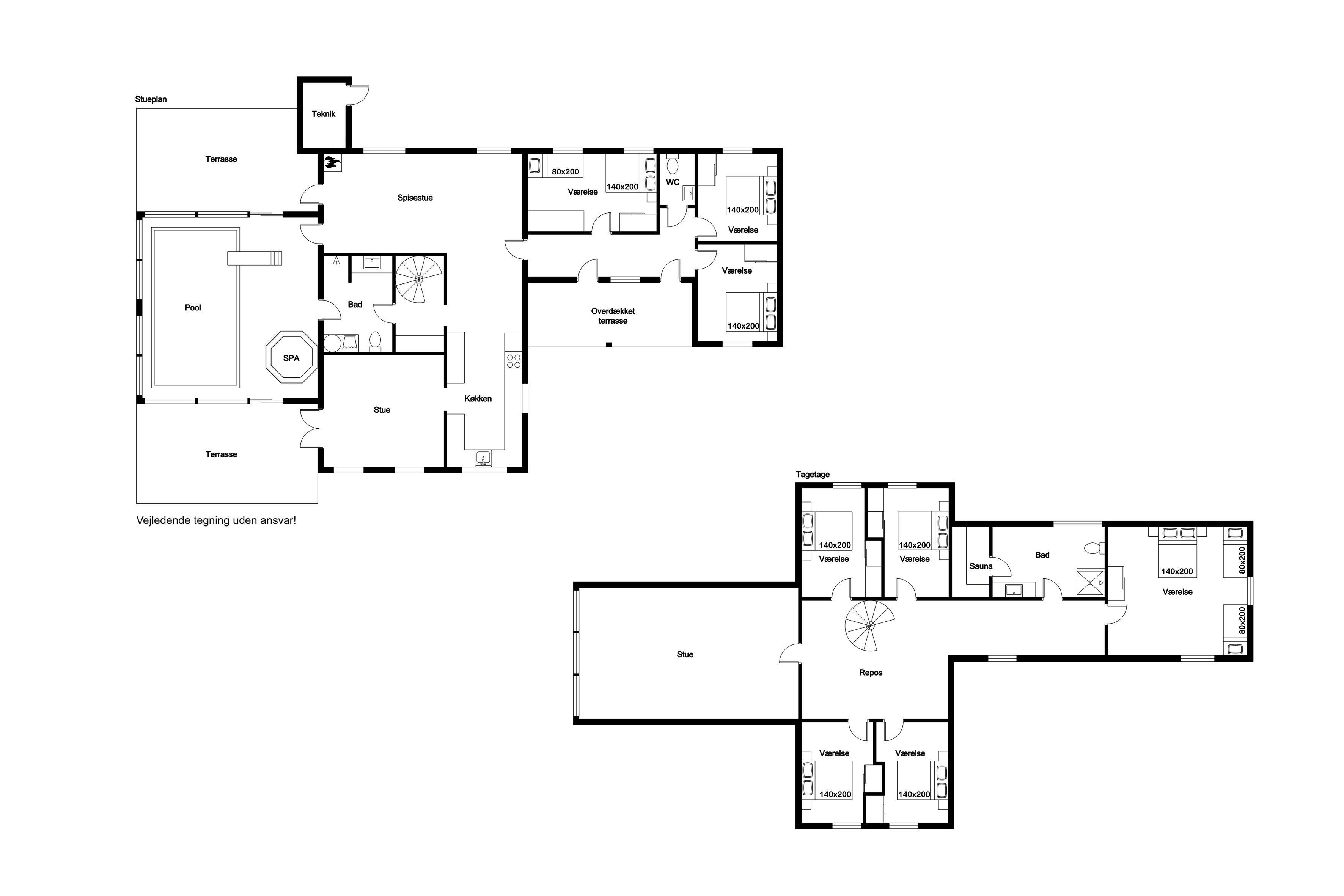
Dieses große Poolhaus am Brandevej 40 in Fasterholt, ist perfekt für große Familien oder Gruppen, die Zeit zusammen in einer malerischen Umgebung verbringen möchten. Das 1996 erbaute und 2020 modernisierte Haus bietet moderne Einrichtungen und einen geräumigen Innenraum, der Platz für bis zu 20 Personen bietet. Mit einem Grundstück von 76.378 Quadratmetern Wald und Heide und einer Hausfläche von 290 Quadratmetern, gibt es viel Platz für Entspannung und Spaß. Die Jagd im angrenzenden Wald oder einfach nur ein Picknick für die ganze Familie, können den Urlaub komplett machen.

Das Haus wird nicht an Jugendgruppen/Party Groups vermietet.

Im Inneren finden Sie acht gut ausgestattete Schlafzimmer, darunter 6 Zimmer mit einem Doppelbett, 1 Zimmer mit 1 Doppelbett und 1 Etagenbett und 1 Zimmer mit 1 Doppelbett und 2 Einzelbetten, die allen Gästen eine komfortable Schlafgelegenheit bieten. Das Haus verfügt insgesamt über zwei Badezimmer und eine Gästetoilette, sodass jeder seinen Tagesablauf problemlos durchführen kann. Die Badezimmer sind mit Dusche und WC ausgestattet, besonders nach einem langen Tag voller Aktivitäten, können Sie ein erfrischendes Bad genießen.

Für diejenigen, die gerne kochen, ist die Küche mit modernen Geräten ausgestattet, darunter eine Mikrowelle, ein Backofen, ein Cerankochfeld, eine Spülmaschine, ein Kühlschrank und ein Gefrierschrank mit einem Fassungsvermögen von 80 Litern. So ist es möglich, köstliche Mahlzeiten für die ganze Gruppe zuzubereiten. Es gibt auch einen Holzofen und eine Wärmepumpe, die rundum für eine angenehme Temperatur sorgt.

Draußen können Sie eine große Terrasse genießen, auf der Sie sich entspannen und die Sonne genießen können. Ihnen steht auch ein Grill zur Verfügung, perfekt für Sommerpartys und Mahlzeiten im Freien. Kinder werden den Spielplatz mit Schaukeln und Sandkasten lieben, während Erwachsene am Pool entspannen können, der auch über ein Schwimmbecken verfügt. hat eine Wasserrutsche für zusätzlichen Spaß. Wer sich verwöhnen lassen möchte, kann sich im Innen-Spa mit Platz für bis zu sieben Personen entspannen und nach einem langen Tag in der Sauna entspannen.

Für Unterhaltung ist mit einem Billardtisch gesorgt und für alle, die eine schnelle Partie spielen möchten, gibt es ein Fußballtor. Das Haus ist mit WLAN und einem Fernseher ausgestattet, der sowohl dänisches als auch deutsches Fernsehen bietet, sodass Sie Ihre Lieblingssendungen verfolgen können.

Dieses Haus ist nicht nur ein Ferienhaus, sondern ein Ort, an dem Erinnerungen entstehen. Egal, ob Sie Zeit mit Familie und Freunden verbringen, die Natur genießen oder einfach nur entspannen möchten, dieses Haus ist die perfekte Wahl. Mit allen verfügbaren Annehmlichkeiten, werden Sie sich vom ersten Moment an wie zu Hause fühlen.

Unsere Gästebewertungen Externe Bewertungen

3,0
Bezogen auf 2 Bewertungen
Letzte Bewertung ist vom 04.11.2025
5
(0)
4
(0)
3
(2)
2
(0)
1
(0)
Kommentare
Keine Bewertungen haben Kommentare auf Deutsch
1 Bewertung hat einen Kommentar in einer anderen Sprache.

Ausstattung

  • Entfernungen

    • Entfernung Wasser
      70 km
    • Abstand Einkauf
      5 km
    • Entfernung Restaurant
      5 km
  • Haus

    • Baujahr
      1996
    • Grundstücksgröße
      76378
    • Hausareal
      290
    • Haustier erlaubt
    • Keine Anzahlung
    • Elektroheizung
    • Renoviert
    • Max. Anzahl Personen
      20
    • Haustier
      4
    • Renoviert im Jahr
      2020
    • Rauchen verboten
    • Anzahl der Sterne
      3
    • Kostenfreie Endreinigung
    • Heizung
    • Böden
      2
    • Jugendgruppen nicht erlaubt
    • Schlüsselkasten am Haus
  • Das Haus – drinnen

    • Kaminofen
    • Toiletten
      3
    • Bäder
      2
    • Hochstuhl
    • Küche
    • Wohnzimmer
      1
    • Wärmepumpe
    • Schornstein
    • Rauchmelder
    • Anzahl der Küchen
      1
    • Dusche
      2
    • Gästetoilette
      1
  • Das Haus - draußen

    • Gartenmöbel
    • Grill
    • Liegestühle
      3
    • Schaukeln
    • Sandkiste
    • Terrasse
    • Parken - GRATIS
  • Aktivitäten

    • Aktivitätsraum
    • Pool/Billard
    • Fussballtore
  • Küchengeräte

    • Waschmaschine
    • Wäschetrockner
    • Spülmaschine
    • Mikrowelle
    • Backofen
    • Gefriertruhe, Liter
      80
    • Kühlschrank
    • Kaffeemaschine
    • Keramikofen
  • Multimedien

    • TV
    • Parabol
    • Kabelloses Internet
    • Anzahl der Fernseher
      1
    • Deutsche Kanäle
    • Dän. TV
  • Wellness

    • Wasserrutsche
    • Sauna
    • Pool
    • Whirlpool
    • Indoor-Spa
    • Pool
    • Whirlpool
      7
    • Indoor-Spa-Leute
      7
    • Indoor sauna
  • Schlafzimmer

    • Kinderbett
    • Schlafzimmer
      8
    • Doppelbetten
      8
    • Einzelbetten
      2
    • Stockbetten
      1
    • Schlafplätze
      20
    • Schlafzimmer 1: Doppelbetten
      1
    • Schlafzimmer 2: Doppelbetten
      1
    • Schlafzimmer 3: Doppelbetten
      1
    • Schlafzimmer 4: Doppelbetten
      1
    • Schlafzimmer 5: Doppelbetten
      1
    • Schlafzimmer 6: Doppelbetten
      1
    • Schlafzimmer 7: Doppelbetten
      1
    • Schlafzimmer 7: Etagenbetten
      1
  • Einrichtung

    • Nichtraucher

Kurzurlaub

Es besteht eine begrenzte Möglichkeit das ganze Jahr einen Kurzurlaub zu machen, typischerweise ausserhalb der Hochsaison.

Preise und Kalender

Kalender

Ankunft
Vorheriger Monat Nächster Monat
  • April 2026
    MoDiMiDoFrSaSo
    1412345
    156789101112
    1613141516171819
    1720212223242526
    1827282930
    19
  • Mai 2026
    MoDiMiDoFrSaSo
    18123
    1945678910
    2011121314151617
    2118192021222324
    2225262728293031
    23
   Verfügbarkeit am ausgewählten Datum prüfen
Frei
Nicht frei
   Ankunft möglich
Dauer

Preis

Zeitraum
Ankunft
Abreise
Dauer
1 Woche
Personen
Bis zu 20 Personen

Bitte beachten

Ankunftszeit wurde nicht ausgewählt.
Vertrags- und Mietbedingungen