Gemütliches Ferienhaus nahe Drøsselbjerg Strand

Ferienhaus - 4 Personen - Delfivej - Drösselbjerg - 4200 - Slagelse

4 Personen
Objekt Nr.: 042-SL122
7 Übernachtungen
Ab EUR 495,-
Inkl. Endreinigung und Versicherung
4 Personen
Gemütliches Steinferienhaus nahe Drøsselbjerg Strand mit Terrasse, Gartenmöbeln und WLAN.
  • Schlafzimmer 2
  • Badezimmer 1
  • Wohnfläche 76 m²
  • Grundstück 1.300 m²
  • Haustiere Nicht erlaubt
  • Kurzurlaub möglich Ja
  • Entfernung Wasser 300 m
  • Einkaufen 4.500 m
  • Internet Ja
  • Satelliten-/Kabel TV Ja
  • Kaminofen Ja
  • Waschmaschine Ja
  • Geschirrspüler Ja
  • Nichtraucher Ja
  • Klimafreundlich Ja

Beschreibung

Ferienhaus aus Stein am Drøsselbjerg Strand

Einrichtung
Die offene Küche und das Wohnzimmer sind miteinander kombiniert. In der kleinen, gut eingerichteten Küche gibt es einen Herd, einen Kühlschrank mit Gefrierfach, Geschirrspüler sowie einen kleinen Essplatz. Gemütliches helles Wohnzimmer mit sowohl Essplatz als auch Sofaecke mit Flachbildschirm. Es gibt einen Holzofen und eine Wärmepumpe mit Kühlfunktion. Badezimmer mit Duschnische und Waschmaschine. 2 Schlafzimmer, eins mit Doppelbett und eins mit zwei Einzelbetten.

Kostenloses WiFi Internet zu verfügung.

Außenbereich
Das Haus liegt auf einem wunderbaren, ungestörten und 1300 m² großen Grundstück. Außerdem gibt es 2 Terrassen, eine davon ist teilweise überdacht, Gartenmöbel, Liegestühle und Grill.

Lage
Von diesem Ferienhaus in einem ruhigen Gebiet am Drøsselbjerg Strand sind es nur 300 m bis ans Wasser und 4,5 km zur nächstgelegenen Einkaufsmöglichkeit in Stillinge Strand. Drøsselbjerg liegt 15 km von Slagelse entfernt, der größten Handelsstadt in Westseeland.


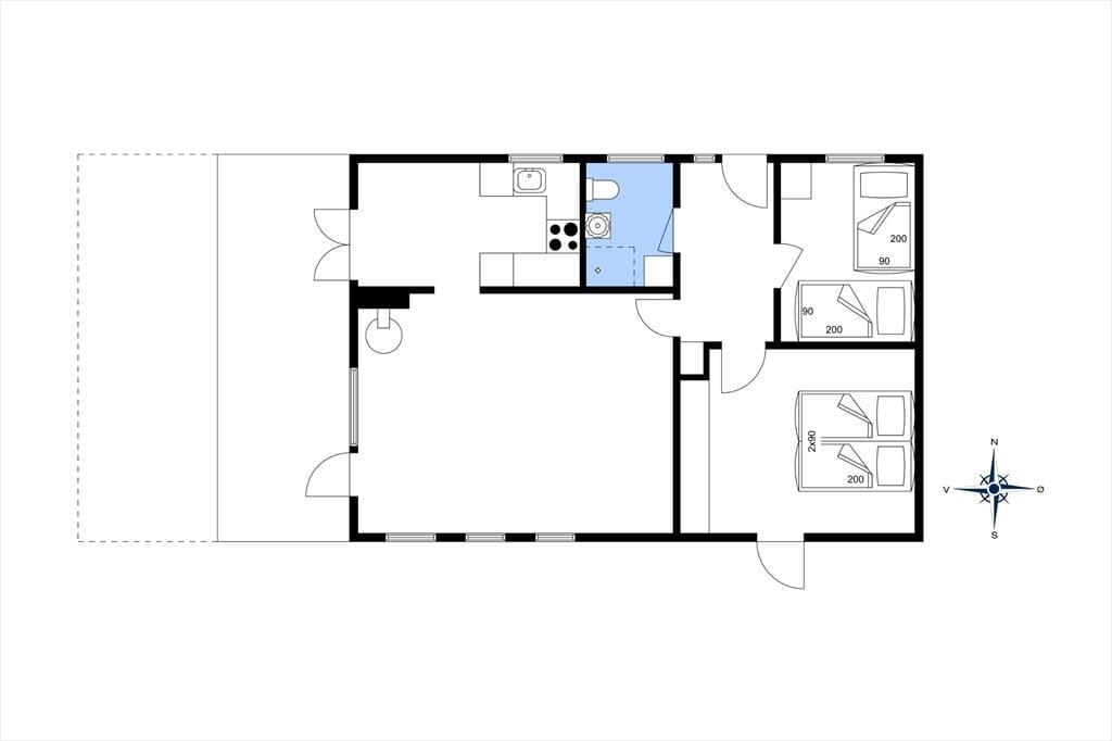
Raumaufteilung

  • Schlafzimmer
    • Doppelbett - 180x200
  • Schlafzimmer
    • Einzelbett - 90x200
    • Einzelbett - 90x200

Unsere Gästebewertungen Externe Bewertungen

3,0
Bezogen auf 1 Bewertung
Bewertung ist vom 29.08.2021
5
(0)
4
(0)
3
(1)
2
(0)
1
(0)
Kommentare
Keine Bewertungen haben Kommentare auf Deutsch
1 Bewertung hat einen Kommentar in einer anderen Sprache.

Ausstattung

  • Hausinfo.

    • Anzahl Erw.
      4
    • Baujahr
      1978
    • Dusche
    • Grundstück / Gartengrund
      1300 m²
    • Hausareal
      76 m²
    • Renovierungsjahr
      1988
    • WC
  • Entfernungen

    • Abstand Einkauf
      4,5 km
    • Entfernung Bahnhof/Zug
      12,9 km
    • Entfernung Bus
      2,1 km
    • Entfernung Küste
      300 m
    • Entfernung Restaurant
      4,5 km
    • Entfernung Schwimmhalle
      16,9 km
    • Entfernung Strand / Sandstrand
      300 m
    • Entfernung zum Golfplatz
      17,8 km
  • Energie/Heizung

    • Elektroheizung
    • Kaminofen
    • Wärmepumpe / Ohne Kühlung
  • Küchengeräte

    • Gefriertruhe
    • Herd
    • Kaffeemaschine
    • Kühlschrank
    • Spülmaschine
    • Waschmaschine
  • Multimedien

    • Deutsche Kanäle
      Sat1, RTL, RTL II, Pro7, 3Sat, ZDF, ARD, Das Erste
    • Dän. TV
      DR1, DR2, DR3, DRK, DR Ramasjang
    • Free Wi-Fi - Unter 5 Mbit
    • Parabol
    • TV
  • Extra

    • Hochstuhl
  • Draußen

    • Gartenmöbel
    • Grill
    • Liegestühle
    • Offene Terrasse
    • Parken auf dem Grundstück
    • Überdachte Terrasse
  • Diverse

    • Holz-/Parkettfussboden
    • Separate Küche
  • Regeln

    • Aufladung von Elektroautos nicht erlaubt
    • HAUSTIER NICHT ERLAUBT
    • Rauchen verboten
  • Preis inbegriffen

    • Wasser inkl.
  • ALT

    • DVD
    • Radio
    • Teppichboden

Kurzurlaub

Es besteht eine begrenzte Möglichkeit das ganze Jahr einen Kurzurlaub zu machen, typischerweise ausserhalb der Hochsaison.

Preise und Kalender

Kalender

Ankunft
Nächster Monat
   Verfügbarkeit am ausgewählten Datum prüfen
Frei
Nicht frei
   Ankunft möglich
Dauer
Personen

Preis

Zeitraum
Ankunft
Abreise
Dauer
1 Woche
Personen
Keine Personen ausgewählt

Bitte beachten

Ankunftszeit wurde nicht ausgewählt.
Es wurden keine Personen ausgewählt.
Vertrags- und Mietbedingungen