Alternative Objekte
Modernes Ferienhaus mit Meerzugang in Arnager
Ferienhaus - 6 Personen - Fosforitvej - Arnager - 3700 - Rönne
6 Personen
Objekt Nr.: 121-95-0266
Modernes Ferienhaus in Arnager, nahe Meer, mit Sauna und Kaminofen.
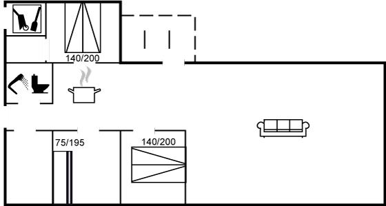
- Schlafzimmer 3
- Badezimmer 1
- Wohnfläche 80 m²
- Grundstück 843 m²
- Haustiere 1
- Kurzurlaub möglich Nein
- Entfernung Wasser 200 m
- Einkaufen 6 km
- Internet Ja
- Satelliten-/Kabel TV Ja
- Kaminofen Ja
- Waschmaschine Ja
- Geschirrspüler Ja
- Nichtraucher Ja
- Ladestation für Elektroauto Ja
- Klimafreundlich Ja
Beschreibung
Im Jahr 2026 ist dieses Haus komplett renoviert worden, sodass es sich modern und mit einem hellen Interieur präsentiert.
Das Ferienhaus liegt im kleinen Fischerdorf Arnager. Am Ende der langen Holzbrücke befindet sich ein kleiner Inselhafen. Dort wurde eine Sauna installiert, die von der Dorfgemeinschaft geschaffen wurde.
Die Küste bei Arnager hat stellenweise einen schmalen Sandstrand. Etwas weiter findest du jedoch einen nahezu ungestörten Sandstrand unterhalb der Klippe, die Schutz von der Landseite bietet – so kannst du das Meer, die Wellen und vielleicht sogar das Leben im kleinen Hafen aus der Ferne genießen.
Das große Wohnzimmer des Ferienhauses hat einen direkten Zugang zur Steinterrasse, wo du – wenn das Wetter es zulässt – dein Mittagessen genießen kannst. Innen erwarten dich helle Wände, aufgehellte Holzdecken und ein schöner Holzfußboden. Neben der Wärmepumpe kannst du auch den Kaminofen nutzen, um die große Wohnküche zu beheizen. Zusätzlich zu den drei Schlafzimmern gibt es einen Hauswirtschaftsraum, der mit dem Eingangsbereich kombiniert ist. Ein separater kleiner Raum mit Waschmaschine ist ebenfalls vorhanden. Das Badezimmer ist gepflegt und modern.
Bitte bring dein eigenes Ladekabel für das Elektroauto mit
Einrichtung
Das Ferienhaus eignet sich für 6 Personen. Die Ferienunterkunft hat eine Wohnfläche von 80 m² und wurde 1972 gebaut. 2026 wurde die Ferienunterkunft renoviert. Es ist erlaubt 1 Haustier mitzubringen. In der Ferienunterkunft ist eine energiesparende Luft zu Luft Wärmepumpe installiert. Die Ferienunterkunft ist mit Waschmaschine ausgestattet. Tiefkühlmöglichkeit mit 30 Liter Nutzinhalt. Es gibt außerdem einen Kaminofen. Für die jüngsten Feriengäste ist 1 Kinderhochstuhl vorhanden.
Draußen
Die Ferienunterkunft liegt auf einem 843 m² großen Naturgrundstück. Die Entfernung zum Meer beträgt 200 m. Die nächste Einkaufsmöglichkeit liegt 6000 m entfernt. In einem Abstand von 5000 m gibt es einen Golfplatz. Es steht ein offenes Terrassenareal zur Verfügung. Geräteraum. Es steht ein Grill zur Verfügung. Es ist ein Ladestecker für Elektroautos installiert. Mit einer Ladeleistung von 11 kW. Parkplatz auf dem Grundstück.
Schlafverhältnisse
Die Schlafplätze verteilen sich auf 3 Schlafräume. 4 Schlafplätze in Doppelbetten. 2 Schlafplätze in einem Etagenbett. Ferner steht ein Kinderbett zur Verfügung.
Küche
Die Küche ist mit Kühlschrank ausgestattet. Außerdem gibt es 4 Keramik-Kochfelder, Umluftofen, Mikrowelle sowie Geschirrspüler.
WC und Bad
Es gibt 1 Badezimmer mit Duschnische und 1 Toilette.. Fußbodenheizung in 1 Badezimmer.
Multimedien
In der Ferienunterkunft gibt es 1 Fernseher mit Smart-TV. Mindestens 4 dänische Fernsehsender. Mindestens 4 deutsche Fernsehsender. Es steht kabellose Internetverbindung zur Verfügung.
Wissenswertes
Keine Vermietung an Jugendgruppen, in denen alle 15-25 Jahre sind. Rauchen ist nicht zugelassen. Bei Nichtbeachtung dieses Verbots wird eine Gebühr von mindestens EUR 420,- erhoben. Bitte bring dein eigenes Ladekabel für das Elektroauto mit.
Einrichtung
Das Ferienhaus eignet sich für 6 Personen. Die Ferienunterkunft hat eine Wohnfläche von 80 m² und wurde 1972 gebaut. 2026 wurde die Ferienunterkunft renoviert. Es ist erlaubt 1 Haustier mitzubringen. In der Ferienunterkunft ist eine energiesparende Luft zu Luft Wärmepumpe installiert. Die Ferienunterkunft ist mit Waschmaschine ausgestattet. Tiefkühlmöglichkeit mit 30 Liter Nutzinhalt. Es gibt außerdem einen Kaminofen. Für die jüngsten Feriengäste ist 1 Kinderhochstuhl vorhanden.
Draußen
Die Ferienunterkunft liegt auf einem 843 m² großen Naturgrundstück. Die Entfernung zum Meer beträgt 200 m. Die nächste Einkaufsmöglichkeit liegt 6000 m entfernt. In einem Abstand von 5000 m gibt es einen Golfplatz. Es steht ein offenes Terrassenareal zur Verfügung. Geräteraum. Es steht ein Grill zur Verfügung. Es ist ein Ladestecker für Elektroautos installiert. Mit einer Ladeleistung von 11 kW. Parkplatz auf dem Grundstück.
Schlafverhältnisse
Die Schlafplätze verteilen sich auf 3 Schlafräume. 4 Schlafplätze in Doppelbetten. 2 Schlafplätze in einem Etagenbett. Ferner steht ein Kinderbett zur Verfügung.
Küche
Die Küche ist mit Kühlschrank ausgestattet. Außerdem gibt es 4 Keramik-Kochfelder, Umluftofen, Mikrowelle sowie Geschirrspüler.
WC und Bad
Es gibt 1 Badezimmer mit Duschnische und 1 Toilette.. Fußbodenheizung in 1 Badezimmer.
Multimedien
In der Ferienunterkunft gibt es 1 Fernseher mit Smart-TV. Mindestens 4 dänische Fernsehsender. Mindestens 4 deutsche Fernsehsender. Es steht kabellose Internetverbindung zur Verfügung.
Wissenswertes
Keine Vermietung an Jugendgruppen, in denen alle 15-25 Jahre sind. Rauchen ist nicht zugelassen. Bei Nichtbeachtung dieses Verbots wird eine Gebühr von mindestens EUR 420,- erhoben. Bitte bring dein eigenes Ladekabel für das Elektroauto mit.
Ausstattung
-
Bitte beachten
-
Keine Jugendgruppen auf Anfrage
-
Rauchen ist verboten
-
-
Draußen
-
Geschäft6 km
-
Golfplatz5 km
-
Grill1
-
Größe des Grundstücks843 m²
-
KW Leistung11
-
Ladegerät für Elektroautos
-
Meer200 m
-
Naturstandort
-
Parkplatz beim Haus
-
Terrasse
-
Werkzeugschuppen
-
-
Einrichtung
-
Anzahl Erwachsene inkl. 4-11 Jahre6
-
Baujahr1972
-
Bebaute Fläche80 m²
-
Ferienhaus
-
Gefrierkapazität (Anzahl Liter)30
-
Haustiere1
-
Hochstuhl1
-
Holzofen1
-
Renovierung2026
-
Waschmaschine1
-
Wärmepumpe
-
Wärmepumpe Luft zu Luft
-
-
Küche
-
Anzahl der Keramikkochplatten4
-
Heißluftofen1
-
Kühlschrank1
-
Mikrowelle1
-
Spülmaschine1
-
-
Multimedien
-
> 3 deutsche Sender
-
> 3 dänische Sender
-
Anzahl der Fernseher1
-
Internet drahtlos
-
Smart TV1
-
-
Schlafverhältnisse
-
Anzahl der Schlafzimmer3
-
Doppelbett (Anzahl der Schlafplätze)4
-
Etagenbett (Anzahl der Schlafplätze)2
-
Kinderbett1
-
-
WC und Bad
-
Anzahl der Badezimmer1
-
Duschkabine
-
Fußbodenheizung1
-
Toiletten1
-
-
Zugang zur Ferienunterkunft
-
Schlüsselkasten mit Code
-
Preise und Kalender
Kalender
Dauer
Preis
Zeitraum
- Ankunft
- Abreise
- Dauer
- 1 Woche
Personen
Bis zu 6 Personen
Bitte beachten
Ankunftszeit wurde nicht ausgewählt.